Vânzări
Închirieri
Vânzare Apartament 2 camere, Central

Apartament 2 camere, 62mp, gradina 91mp, zona Avram Iancu

116.000 eur
ID 3958175
Apartamente | 62 m² | 2 camere
Floresti, Cluj / Central
Zona Central
Număr camere 2
Suprafața utilă 62 m²
Compartimentare Semidecomandat
Confort 1
Etaj parter
An finalizare construcție 2025
Tip imobil Casă/Vilă
Stare proprietate În construcție
Număr niveluri imobil 1
Număr Băi 1
Mobilat/Utilat Nemobilat
Nr. locuri parcare 1

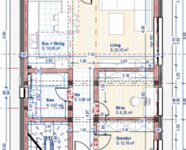
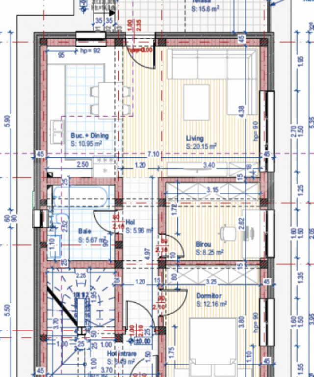
BLITZ ofera spre vanzare apartament de 2 camere, semidecomandat, situat in zona Avram Iancu, aproape de mijloacele de transport in comun, magazine, gradinite si farmacii.
Dispune de o suprafata de 62 mp care se prezinta astfel: hol, living generos cu bucatarie si loc de luat masa, dormitor, baie cu geam, spatiu de depozitare , 2 terase si o gradina de 91mp.
Apartamentul este situat la etajul parter al unui imobil cu regim de inaltime P+1, ce v-a fi finalizat in Iunie 2025. Se vinde la stadiul de semifinisat si dispune si de o parcare.
Pentru mai multe detalii sau pentru a stabili o vizionare, nu ezitați să ne contactați!
Cod ofertă / ID BLITZ: P144474
Id intern: P144474

Solicită vizionarea proprietății

Apartament 2 camere, 62mp, gradina 91mp, zona Avram Iancu

Vizionare
Alege o dată disponibilă:
Luni
23 Martie
Marți
24 Martie
Miercuri
25 Martie
Joi
26 Martie
Anulează
success
Solicitarea ta a fost trimisă cu succes!
Vei fi contactat de către proprietar în cel mai scurt timp posibil.
Contactează utilizatorul
Apartament 2 camere, 62mp, gradina 91mp, zona Avram Iancu
BLITZ Romania Consultant imobiliar BLITZ
07xx - AFIŞEAZĂ
ID 3958175
Vrei sa vinzi simplu si rapid?
Termenii și condițiile de pe site au fost actualizate. Detaliile complete sunt disponibile aici