BLITZ Romania

Consultant imobiliar

Vânzare

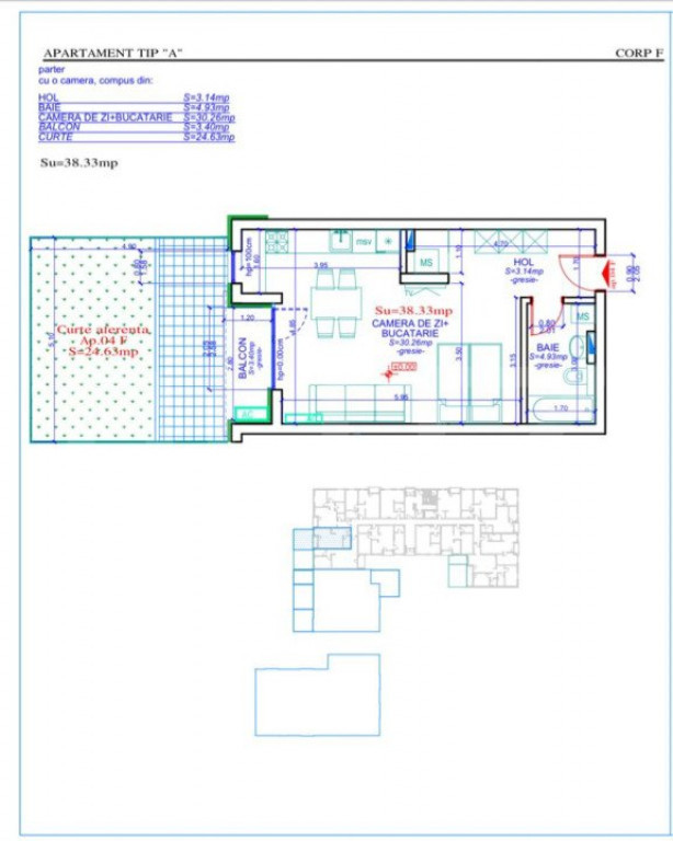
1 camere | 38 m²

Apartament 1 camera,38 mp utili,gradina 24 mp Calea Aradului

Timis / Timisoara
92.800 €

Rată estimată

2.007 Lei/lună

Avans (15%)

69.182 lei

Perioada împrumutului

30 ani

Specificații

Număr camere 1

Suprafața utilă 38 m²

Compartimentare Decomandat

Confort 1

An finalizare construcție 2024

Tip imobil Bloc apartamente

Niveluri imobil 10

Număr Băi 1

Nu include TVA Da

Etaj Parter

Stare proprietate În construcție

Mobilat și Utilat Nemobilat

Tip tranzacție Vânzare

Tip vânzător Companie

Blitz va propune la vanzare  apartamente exclusiviste cu 1, 2 și 3 camere într-o locație de vis din nordul Timișoarei. Proiectul ansamblului  se remarcă prin confort modern și sustenabilitate, fiind conceput pentru cei care își doresc un stil de viață superior sau caută o investiție inteligentă.
Acest proiect imobiliar nou pune accent pe regenerare urbană, păstrând standardele înalte de calitate și durabilitate. Apartamentele  sunt dotate cu facilități de ultimă generație și un design contemporan, perfect pentru o locuire modernă și rafinată. Fiecare detaliu a fost gândit pentru a îmbina estetica cu funcționalitatea, asigurând un mediu sănătos pentru locatari.Locatarii vor beneficia de acces rapid la transportul public și alte servicii esențiale, oferind o accesibilitate excelentă. Proiectul dispune de 355 locuri de parcare, trei căi de acces și spații verzi, creând un echilibru între confort și natură.
Apartamentele se vand la stadiul de finisat si beneficiaza  de locuri de parcare supraterane si subterane pretul lor fiind intre 10-12.000 euro +tva.
La acest model de apartament avem un loc de parcare exterior inclus in pret!
Daca v-am starnit interesul va asteptam cu drag la vizionare!


Cod ofertă / ID BLITZ: P133583
Id intern: P133583

Solicită vizionarea proprietății

Alege o zi disponibilă

10 Februarie
11 Februarie
12 Februarie
13 Februarie

Alege un interval orar

8:00 - 12:00
12:00 - 15:00
15:00 - 18:00
18:00 - 21:00

Următoarele date de contact oferite de tine vor fi accesibile proprietarului:

Locație

Despre zona "Aradului"

păreri exprimate de 246 de utilizatori, pe o scară de la 1 la 10

Află clasamentul acestui cartier
Sănătate și Siguranță

Sănătate și Siguranță

7.2

Sănătate 7.1

Siguranță 7.9

Calitate aer 6.6

Curățenie 7.3

Zone verzi 7.3

Cultură și Educație

Cultură și Educație

7.2

Cultură 7.0

Educație 7.3

Sport 7.3

Ambianță și Lifestyle

Ambianță și Lifestyle

7.2

Nivel de trai 7.6

Magazine 8.3

Localuri 7.6

Parcări 5.8

Zgomot 6.8

Transport în comun

Transport în comun

7.6

Autobuz 8.0

Tramvai 7.3

Metrou 0.0

Contactează utilizatorul

ID: 3804460

Apartament 1 camera,38 mp utili,gradina 24 mp Calea Aradului

1 camere | 38 m² | Timis / Timisoara

92.800 €


Vezi și alte anunțuri imobiliare
Apartamente vânzare Timisoara-tm - Aeroport Case-vile vânzare Timisoara-tm - Aeroport Garsoniere vânzare Timisoara-tm - Aeroport Terenuri vânzare Timisoara-tm - Aeroport Apartamente vânzare Timisoara-tm - Aradului Case-vile vânzare Timisoara-tm - Aradului Garsoniere vânzare Timisoara-tm - Aradului Terenuri vânzare Timisoara-tm - Aradului Apartamente vânzare Timisoara-tm - Baba-Dochia Case-vile vânzare Timisoara-tm - Baba-Dochia Garsoniere vânzare Timisoara-tm - Baba-Dochia Terenuri vânzare Timisoara-tm - Baba-Dochia