BLITZ Romania

Consultant imobiliar

Vânzare

2 camere | 47 m²

Apartament 2 camere, 51mp, semidecomandat, parcare subterana

Iasi / Iasi
142.500 €

Rată estimată

3.082 Lei/lună

Avans (15%)

106.234 lei

Perioada împrumutului

30 ani

Specificații

Număr camere 2

Suprafața utilă 47 m²

Compartimentare Semidecomandat

An finalizare construcție 2025

Niveluri imobil 8

Număr Băi 1

Numărul de locuri de parcare 1

Etaj 2

Stare proprietate Bună

Tip imobil Bloc apartamente

Confort 1

Tip tranzacție Vânzare

Tip vânzător Companie

Blitz vă propune spre vânzare un apartament cu 2 camere în exclusivistul complex Royal Town, situat într-una dintre cele mai apreciate zone ale Iașului – Copou.

Poziția centrală oferă acces rapid la școli, centre comerciale, zone verzi și mijloace de transport, făcând apartamentul potrivit atât pentru locuire, cât și pentru investiție.

AVANTAJE
• Zonă premium, apreciată și liniștită
• Bloc nou, întreținere redusă
• Compartimentare eficientă
• Bloc dotat cu 2 lifturi
• Cale de acces cu telecomandă auto
• Supraveghere video 24/7
• TVA 21% inclus în preț
• Ideal pentru investitori – apartament gata de închiriere

CARACTERISTICI
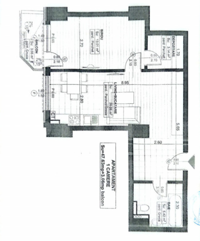
• 2 camere semidecomandate
• 47,63 mp utili + 3,06 mp balcon (51 mp total)
• Etaj 2/8
• Apartament mobilat și utilat complet, mobilă făcută pe comandă

Vă așteptăm la vizionare pentru a descoperi direct avantajele acestui apartament și modul în care poate răspunde nevoilor dvs.
Cod ofertă / ID BLITZ: P163498
Id intern: P163498

Solicită vizionarea proprietății

Alege o zi disponibilă

08 Februarie
09 Februarie
10 Februarie
11 Februarie

Alege un interval orar

8:00 - 12:00
12:00 - 15:00
15:00 - 18:00
18:00 - 21:00

Următoarele date de contact oferite de tine vor fi accesibile proprietarului:

Locație

Despre zona "Copou"

păreri exprimate de 239 de utilizatori, pe o scară de la 1 la 10

Află clasamentul acestui cartier
Sănătate și Siguranță

Sănătate și Siguranță

7.8

Sănătate 7.6

Siguranță 8.0

Calitate aer 7.3

Curățenie 7.5

Zone verzi 8.4

Cultură și Educație

Cultură și Educație

7.3

Cultură 7.0

Educație 7.7

Sport 7.1

Ambianță și Lifestyle

Ambianță și Lifestyle

6.9

Nivel de trai 7.1

Magazine 6.6

Localuri 7.6

Parcări 6.1

Zgomot 7.1

Transport în comun

Transport în comun

7.9

Autobuz 8.0

Tramvai 7.9

Metrou 0.0

Contactează utilizatorul

ID: 4125073

Apartament 2 camere, 51mp, semidecomandat, parcare subterana

2 camere | 47 m² | Iasi / Iasi

142.500 €


Vezi și alte anunțuri imobiliare
Apartamente vânzare Iasi-is - Aeroport Case-vile vânzare Iasi-is - Aeroport Garsoniere vânzare Iasi-is - Aeroport Terenuri vânzare Iasi-is - Aeroport Apartamente vânzare Iasi-is - Aleea cu Ciresi Case-vile vânzare Iasi-is - Aleea cu Ciresi Garsoniere vânzare Iasi-is - Aleea cu Ciresi Terenuri vânzare Iasi-is - Aleea cu Ciresi Apartamente vânzare Iasi-is - Aleea Tudor Neculai Case-vile vânzare Iasi-is - Aleea Tudor Neculai Garsoniere vânzare Iasi-is - Aleea Tudor Neculai Terenuri vânzare Iasi-is - Aleea Tudor Neculai