Anita Plesea

Consultant imobiliar

Vânzare

2 camere | 49 m²

Apartament 2 camere, complet renovat, zona Circumvalatiunii

Timis / Timisoara
119.900 €

Rată estimată

2.627 Lei/lună

Avans (15%)

89.385 lei

Perioada împrumutului

30 ani

Specificații

Preț negociabil Nu

Suprafața utilă 49 m²

Număr camere 2

Tip imobil Bloc apartamente

Compartimentare Decomandat

Număr Băi 1

Etaj 5

Niveluri imobil 10

An finalizare construcție 1977

Confort 2

Ansamblu Rezidențial Nu

Posibilitate parcare Nu

Stare proprietate Renovată

Tip tranzacție Vânzare

Tip vânzător Companie

Apostu Estate va propune spre vanzare un apartament cu 2 camere, decomandat,situat la etajul 5 din 10, in zona Circumvalatiunii/Dacia.
Apartamentul a fost complet renovat, are vedere pe 2 parti si se afla intr-un bloc cu lift.
Ideal atat pentru uz personal cat si pentru investitie fiind aproape de punctele de interes ale orasului.

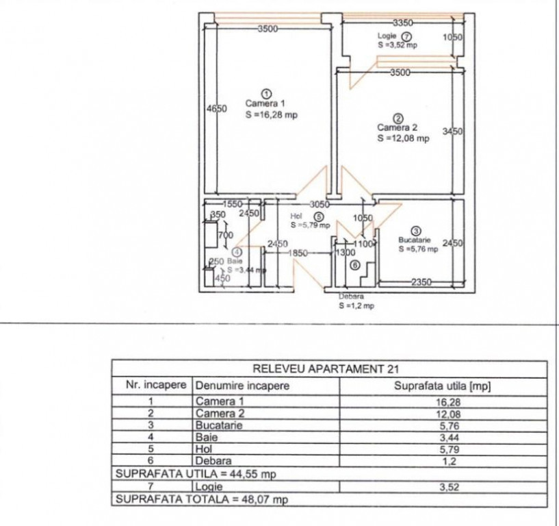
Apartamentul are o suprafata utila de 44,55 mp plus logie de 3,52mp si este compartimentat astfel:
- Hol de acces
- Bucatarie separata
- Baie cu dus walk-in
- Living generos
- Dormitor cu balcon

Confort termic asigurat prin termoficare la reteaua orasului dar se poate monta centrala proprie pe gaz.

Dotari:
-instalatie electrica si sanitara complet schimbate
-exista tevi trase pe pozitie pentru montarea centralei proprii pe gaz
-circuite separate pentru instalatia electrica
-4 apartamente pe etaj 

Distante:
-Piata Dacia la 5 min de mers pe jos
-Kaufland la 4 min de mers pe jos
-Iulius Mall la 10 in de mers pe jos
-Scoli,banci,farmacii,mijloace de transport in comun
-Centrul orasului la 7 min cu masina si 16 min de mers pe jos 

Beneficiati de consultanta bancara gratuita prin partenerii nostri, pentru obtinerea celui mai avantajos credit imobiliar.

Programeaza o vizionare chiar astazi – o oportunitate excelenta in zona Dacia!
Id intern: CP2815912

Solicită vizionarea proprietății

Alege o zi disponibilă

27 Decembrie
28 Decembrie
29 Decembrie
30 Decembrie

Alege un interval orar

8:00 - 12:00
12:00 - 15:00
15:00 - 18:00
18:00 - 21:00

Următoarele date de contact oferite de tine vor fi accesibile proprietarului:

Locație

Despre zona "Circumvalatiunii"

păreri exprimate de 83 de utilizatori, pe o scară de la 1 la 10

Află clasamentul acestui cartier
Sănătate și Siguranță

Sănătate și Siguranță

7.2

Sănătate 7.5

Siguranță 7.9

Calitate aer 6.3

Curățenie 7.2

Zone verzi 7.4

Cultură și Educație

Cultură și Educație

7.6

Cultură 7.2

Educație 8.3

Sport 7.4

Ambianță și Lifestyle

Ambianță și Lifestyle

7.1

Nivel de trai 7.6

Magazine 8.0

Localuri 7.8

Parcări 5.6

Zgomot 6.4

Transport în comun

Transport în comun

8.1

Autobuz 8.0

Tramvai 8.2

Metrou 0.0

Contactează utilizatorul

ID: 4086721

Apartament 2 camere, complet renovat, zona Circumvalatiunii

2 camere | 49 m² | Timis / Timisoara

119.900 €


Vezi și alte anunțuri imobiliare
Apartamente vânzare Timisoara-tm - Aeroport Case-vile vânzare Timisoara-tm - Aeroport Garsoniere vânzare Timisoara-tm - Aeroport Terenuri vânzare Timisoara-tm - Aeroport Apartamente vânzare Timisoara-tm - Aradului Case-vile vânzare Timisoara-tm - Aradului Garsoniere vânzare Timisoara-tm - Aradului Terenuri vânzare Timisoara-tm - Aradului Apartamente vânzare Timisoara-tm - Baba-Dochia Case-vile vânzare Timisoara-tm - Baba-Dochia Garsoniere vânzare Timisoara-tm - Baba-Dochia Terenuri vânzare Timisoara-tm - Baba-Dochia