Florin Mustata

Consultant imobiliar

Vânzare

3 camere | 58 m²

- Apartament 3 camere, confort 1 decomandat, zona Obor.

Braila / Braila
49.500 €

Rată estimată

1.071 Lei/lună

Avans (15%)

36.902 lei

Perioada împrumutului

30 ani

Specificații

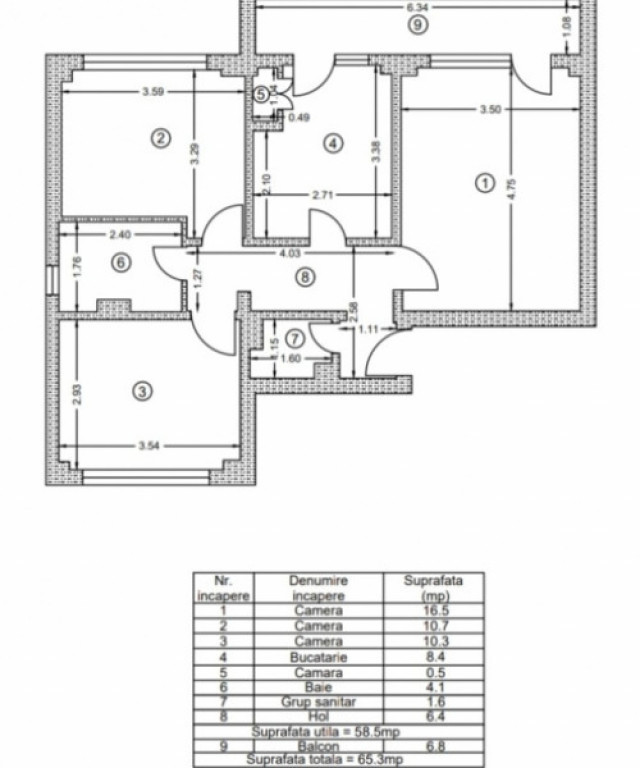
Număr camere 3

Suprafața utilă 58 m²

Compartimentare Decomandat

Confort 1

Etaj 4

An finalizare construcție 1980

Tip imobil Bloc apartamente

Stare proprietate Bună

Niveluri imobil 4

Număr Băi 2

Mobilat și Utilat Nemobilat

Comision cumpărător 2%

Tip tranzacție Vânzare

Tip vânzător Companie

Apartament 3 camere, confort 1 decomandat, zona Obor.
Dotat cu centrala termica, necesita renovare totala la interior.
Etaj 4/4 fara probleme cu hidroizolatia.

Id intern: P225240

Solicită vizionarea proprietății

Alege o zi disponibilă

22 Februarie
23 Februarie
24 Februarie
25 Februarie

Alege un interval orar

8:00 - 12:00
12:00 - 15:00
15:00 - 18:00
18:00 - 21:00

Următoarele date de contact oferite de tine vor fi accesibile proprietarului:

Locație

Despre zona "Obor"

păreri exprimate de 82 de utilizatori, pe o scară de la 1 la 10

Află clasamentul acestui cartier
Sănătate și Siguranță

Sănătate și Siguranță

6.9

Sănătate 7.1

Siguranță 7.3

Calitate aer 7.1

Curățenie 6.6

Zone verzi 6.4

Cultură și Educație

Cultură și Educație

6.6

Cultură 5.7

Educație 7.6

Sport 6.6

Ambianță și Lifestyle

Ambianță și Lifestyle

6.6

Nivel de trai 6.4

Magazine 7.7

Localuri 6.5

Parcări 5.6

Zgomot 7.0

Transport în comun

Transport în comun

7.4

Autobuz 7.5

Tramvai 7.4

Metrou 0.0

Contactează utilizatorul

ID: 4099673

- Apartament 3 camere, confort 1 decomandat, zona Obor.

3 camere | 58 m² | Braila / Braila

49.500 €


Vezi și alte anunțuri imobiliare
Apartamente vânzare Braila-br - Apollo Case-vile vânzare Braila-br - Apollo Garsoniere vânzare Braila-br - Apollo Terenuri vânzare Braila-br - Apollo Apartamente vânzare Braila-br - Bariera Case-vile vânzare Braila-br - Bariera Garsoniere vânzare Braila-br - Bariera Terenuri vânzare Braila-br - Bariera Apartamente vânzare Braila-br - Brailita Case-vile vânzare Braila-br - Brailita Garsoniere vânzare Braila-br - Brailita Terenuri vânzare Braila-br - Brailita