Nina Athanasiu

Consultant imobiliar

Vânzare

4 camere | 95 m²

APARTAMENT 4 CAMERE -PIATA IZVORUL RECE

Bucuresti-Ilfov / Bucuresti
184.500 €

Rată estimată

4.042 Lei/lună

Avans (15%)

137.545 lei

Perioada împrumutului

30 ani

Specificații

Preț negociabil Nu

Suprafața utilă 95 m²

Număr camere 4

Tip imobil Casă / Vilă

Compartimentare Semidecomandat

Număr Băi 2

Etaj 1

Niveluri imobil 2

An finalizare construcție 1941

Confort 1

Ansamblu Rezidențial Nu

Posibilitate parcare Nu

Stare proprietate Bună

Tip tranzacție Vânzare

Tip vânzător Companie

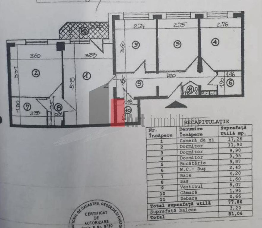
Va  prezentam spre vanzare un apartament de 4 camere spatioase  situat  la etajul 1
                   al unei vile fara risc seismic .
                   Apartamentul se compune din living , 3 dormitoare ,2 grupuri sanitare, boxa la subsol.
                    Locatia este una centrala cu priveliste libera si frumoasa.
                    Pentru alte imformatii sau vizionare sunati la 0722 371 033.

Solicită vizionarea proprietății

Alege o zi disponibilă

12 Ianuarie
13 Ianuarie
14 Ianuarie
15 Ianuarie

Alege un interval orar

8:00 - 12:00
12:00 - 15:00
15:00 - 18:00
18:00 - 21:00

Următoarele date de contact oferite de tine vor fi accesibile proprietarului:

Locație

Despre zona "P-ta Sfantul Stefan"

păreri exprimate de 8 de utilizatori, pe o scară de la 1 la 10

Află clasamentul acestui cartier
Sănătate și Siguranță

Sănătate și Siguranță

7.9

Sănătate 8.9

Siguranță 8.0

Calitate aer 8.0

Curățenie 8.8

Zone verzi 6.0

Cultură și Educație

Cultură și Educație

6.1

Cultură 6.6

Educație 6.9

Sport 5.0

Ambianță și Lifestyle

Ambianță și Lifestyle

8.5

Nivel de trai 8.8

Magazine 8.6

Localuri 8.3

Parcări 7.7

Zgomot 9.0

Transport în comun

Transport în comun

8.9

Autobuz 8.8

Tramvai 9.6

Metrou 8.3

Contactează utilizatorul

ID: 4087017

APARTAMENT 4 CAMERE -PIATA IZVORUL RECE

4 camere | 95 m² | Bucuresti-Ilfov / Bucuresti

184.500 €