Rată estimată
4.021 Lei/lună
Avans (15%)
138.588 lei
Perioada împrumutului
30 ani
Preț negociabil Nu
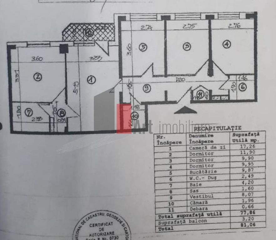
Suprafața utilă 80 m²
Număr camere 4
Tip imobil Bloc apartamente
Compartimentare Semidecomandat
Număr Băi 2
Etaj 2
Niveluri imobil 10
An finalizare construcție 1982
Confort 1
Ansamblu Rezidențial Nu
Posibilitate parcare Nu
Stare proprietate De renovat
Tip tranzacție Vânzare
Tip vânzător Companie
Va prezentam spre vanzare un apartament de 4 camere situat la intersecta
sos. Stefan cel Mare cu str Viitor, construit in anul 1982.
Apartamentul este semidecomandat ,situat intr-un bloc de 10 etaje la etajul 2,
in suprafata de 81 mp utili.
Acest apartament se compune din living , 3 dormitoare, bucatarie mare ,2 bai,
balcon si spatii de depozitare.
Apartamentul este gol si asteapta sa fie renovat dupa preferintelor noilor proprietari.
Pentru vizionare si imformatii suplimentare va rugam sa ne contactati cu incredere.
Alege o zi disponibilă
Alege un interval orar
păreri exprimate de 48 de utilizatori, pe o scară de la 1 la 10
Află clasamentul acestui cartierSănătate și Siguranță
7.1Sănătate 8.2
Siguranță 8.1
Calitate aer 5.3
Curățenie 6.7
Zone verzi 7.5
Cultură și Educație
6.8Cultură 6.0
Educație 7.5
Sport 6.9
Ambianță și Lifestyle
6.4Nivel de trai 7.4
Magazine 7.6
Localuri 7.0
Parcări 4.6
Zgomot 5.5
Transport în comun
8.8Autobuz 8.8
Tramvai 9.0
Metrou 8.7
ID: 4119341
APARTAMENT 4 CAMERE STEFAN CEL MARE
4 camere | 80 m² | Bucuresti-Ilfov / Bucuresti
185.900 €
109.900 eur
3 camere | 70 m² | Bucuresti-Ilfov / Bucuresti
Bucuresti / Bucuresti-Ilfov
125.000 eur
3 camere | 63 m² | Bucuresti-Ilfov / Bucuresti
Bucuresti / Bucuresti-Ilfov
130.000 eur
2 camere | 50 m² | Bucuresti-Ilfov / Bucuresti
Bucuresti / Bucuresti-Ilfov
119.000 eur
2 camere | 60 m² | Bucuresti-Ilfov / Bucuresti
Bucuresti / Bucuresti-Ilfov