Marian Floricu

Consultant imobiliar

Vânzare

2 camere | 44 m²

Apartament cu 2 camere finisat la cheie zona Brana din Selim

Sibiu / Sibiu
105.500 €

Rată estimată

2.271 Lei/lună

Avans (15%)

78.650 lei

Perioada împrumutului

30 ani

Specificații

Consum total de energie primară 0

Indicele de emisii echivalent CO2 0

Consum total din surse regenerabile 0

Număr camere 2

Număr Băi 1

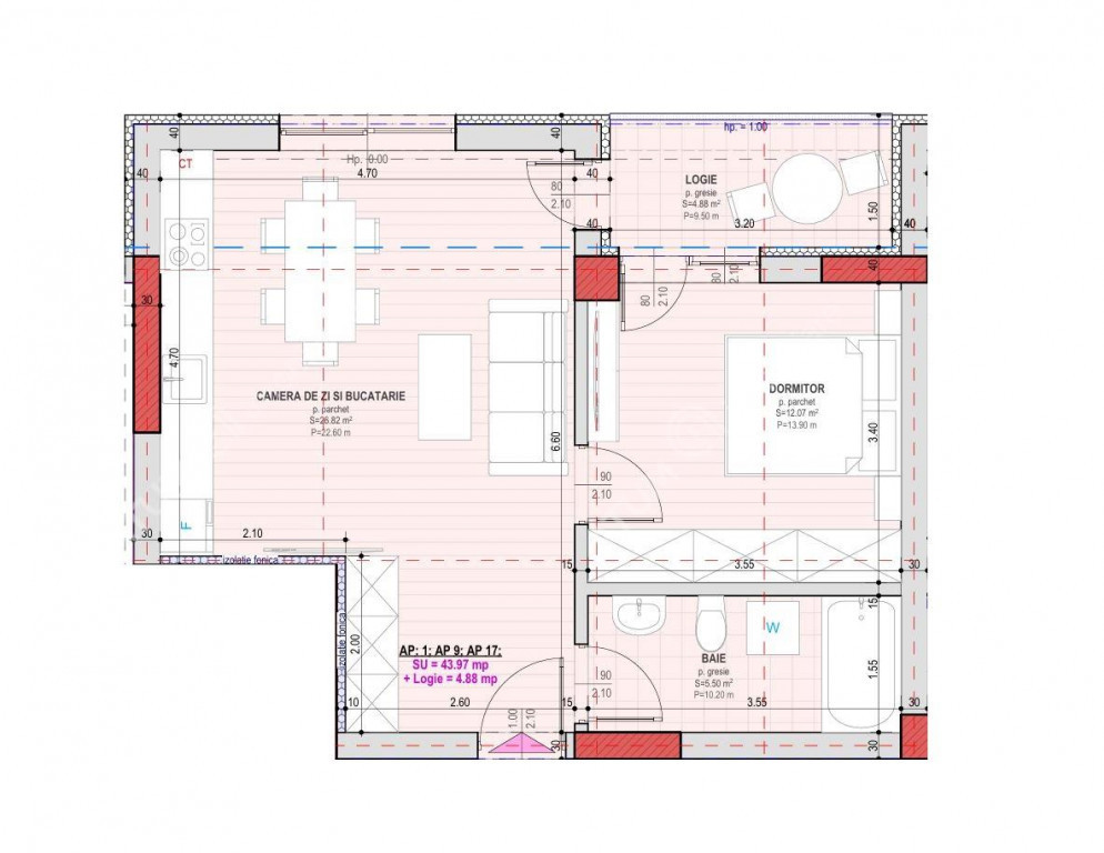
Suprafața utilă 44 m²

Compartimentare Decomandat

Confort 1

An finalizare construcție 2026

Nu include TVA Nu

Niveluri imobil 3

Mobilat și Utilat Nemobilat

Posibilitate parcare Da

Numărul de locuri de parcare 1

Tip imobil Bloc apartamente

Stare proprietate Bună

Etaj 1

Tip tranzacție Vânzare

Tip vânzător Companie

Va propunem spre vanzare un apartament modern cu 2 camere decomandate, pozitionat la etajul intermediar 1 al unui imobil nou din Selimbar, situat pe strada Pictor Brana, ce face parte dintr-un ansamblu rezidential bine organizat, ce dispune de parcari private, loc de joaca pentru copii, spatii verzi amenajate, zone comerciale si infrastructura completa cu strazi si trotuare asfaltate, complexul fiind alcatuit din 9 cladiri cu regim redus de inaltime P 3E.
Apartamentul dispune de o suprafata utila de 44 mp si este compartimentat eficient in camera de zi cu bucatarie open-space in suprafata de 26.82 mp, un dormitor matrimonial de 12,07 mp ce permite amenajarea unui dressing generos, o baie spatioasa de 5.53 mp si un hol generos cu spatiu pentru pantofar si cuier. Separat de suprafata utila, apartamentul dispune si de un balcon tip loggie in suprafata de 4.88 mp in care accesul se face atat din dormitor cat si din bucatarie.
In pretul de achizitie este inculs si un loc privat de parcare inscriptionat si delimitat.
Apartamentul este la stadiul de cheie, fiind echipat cu usa metalica antiefractie placata cu panou MDF, centrala termica proprie Vaillant Ecotec de 24 kW cu incalzire in pardoseala marca Purmo si termostatare individuala pentru fiecare incapere, tamplarie PVC Kommerling cu 7 camere si geam tripan, instalatie electrica din cupru cu tablou general si sigurante separate, instalatii complete pentru utilitati cu contorizare individuala, interfon si instalatie pregatita pentru aer conditionat. Finisajele includ pereti tencuiti, gletuiti si zugraviti in lavabila, pardoseli din parchet SPC de 10 mm in camere si hol, gresie in bucatarie si bai, pereti placati cu faianta in bai, obiecte sanitare montate, usi interioare Naturen si prize si intrerupatoare Schneider.
Spatiile comune ale imobilului sunt realizate la standarde moderne, casa scarii fiind finisata cu gresie antiderapanta, balustrade metalice si iluminat cu senzori, iar exteriorul complexului este complet amenajat cu alei pietonale, zone verzi cu gazon si arbusti decorativi si acces auto facil. In pretul de achizitie este inclus un loc de parcare privat amplasat in fata imobilului, iar proiectul ofera un cadru organizat si aerisit, cu distante generoase intre cladiri si acces rapid catre punctele de interes din oras.
Pretul de vanzare este de 105.500 euro cu TVA de 21% inclus, iar achizitia se poate realiza si prin credit bancar cu un avans minim de 15%. ID intern: 3249.

Solicită vizionarea proprietății

Alege o zi disponibilă

25 Aprilie
26 Aprilie
27 Aprilie
28 Aprilie

Alege un interval orar

8:00 - 12:00
12:00 - 15:00
15:00 - 18:00
18:00 - 21:00

Următoarele date de contact oferite de tine vor fi accesibile proprietarului:

Locație

Despre zona "Vasile Aaron"

păreri exprimate de 188 de utilizatori, pe o scară de la 1 la 10

Află clasamentul acestui cartier
Sănătate și Siguranță

Sănătate și Siguranță

6.8

Sănătate 6.7

Siguranță 7.5

Calitate aer 6.7

Curățenie 7.0

Zone verzi 6.2

Cultură și Educație

Cultură și Educație

6.1

Cultură 5.5

Educație 7.5

Sport 5.5

Ambianță și Lifestyle

Ambianță și Lifestyle

6.9

Nivel de trai 7.0

Magazine 8.1

Localuri 6.9

Parcări 5.6

Zgomot 6.6

Transport în comun

Transport în comun

7.8

Autobuz 7.8

Tramvai 0.0

Metrou 0.0

Contactează utilizatorul

ID: 4164882

Apartament cu 2 camere finisat la cheie zona Brana din Selim

2 camere | 44 m² | Sibiu / Sibiu

105.500 €


Vezi și alte anunțuri imobiliare
Apartamente vânzare Sibiu-sb - Aeroport Case-vile vânzare Sibiu-sb - Aeroport Garsoniere vânzare Sibiu-sb - Aeroport Terenuri vânzare Sibiu-sb - Aeroport Apartamente vânzare Sibiu-sb - Broscarie Case-vile vânzare Sibiu-sb - Broscarie Garsoniere vânzare Sibiu-sb - Broscarie Terenuri vânzare Sibiu-sb - Broscarie Apartamente vânzare Sibiu-sb - Calea Cisnadiei Case-vile vânzare Sibiu-sb - Calea Cisnadiei Garsoniere vânzare Sibiu-sb - Calea Cisnadiei Terenuri vânzare Sibiu-sb - Calea Cisnadiei