Ureche Pavel

Consultant imobiliar

Vânzare

2 camere | 55 m²

Apartament cu 2 camere la cheie la etajul 1 in Selimbar zona

Sibiu / Sibiu
125.000 €

Rată estimată

2.704 Lei/lună

Avans (15%)

93.188 lei

Perioada împrumutului

30 ani

Specificații

Consum total de energie primară 0

Indicele de emisii echivalent CO2 0

Consum total din surse regenerabile 0

Număr camere 2

Număr Băi 1

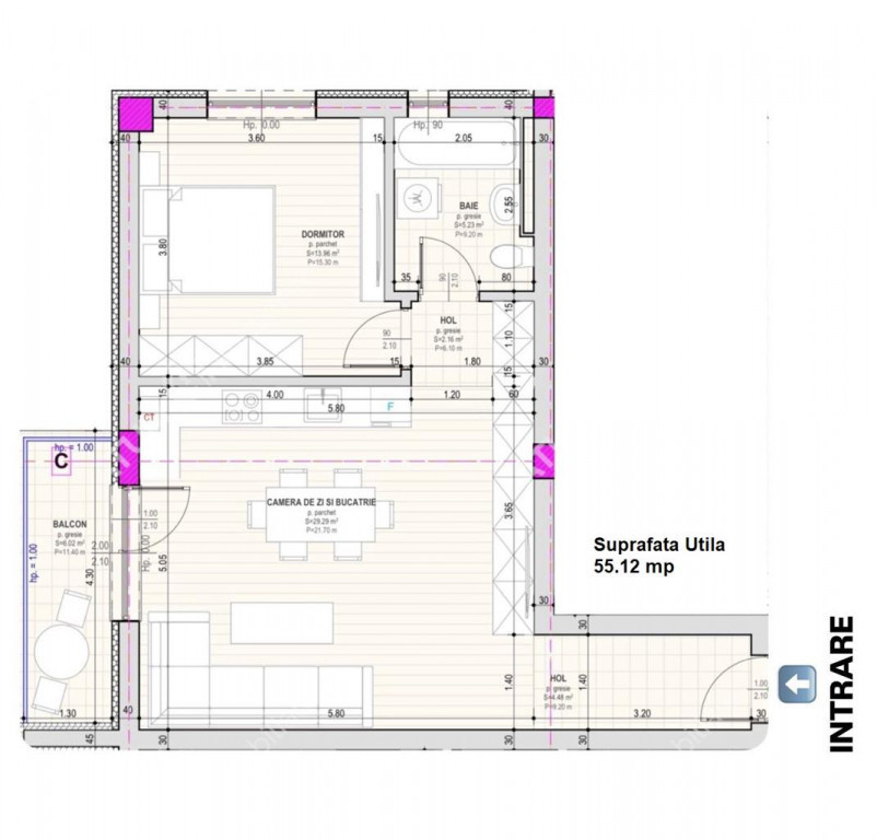
Suprafața utilă 55 m²

Compartimentare Decomandat

Confort 1

An finalizare construcție 2025

Nu include TVA Nu

Niveluri imobil 3

Mobilat și Utilat Nemobilat

Posibilitate parcare Da

Numărul de locuri de parcare 1

Tip imobil Bloc apartamente

Stare proprietate Bună

Etaj 1

Tip tranzacție Vânzare

Tip vânzător Companie

De vanzare in Selimbar zona Pictor Brana apartament complet finisat la cheie cu 2 camere decomandate si balcon, in suprafata totala de 72 mp, situat la etajul intermediar 1 al unui imobil modern constructie 2025 cu doar 3 etaje ce dispune de locuri de parcare private destinate locatarilor, zone verzi, strazi si trotuare amenajate.
Suprafata utila a locuintei este de 55.12 mp, acesta este compus din camera de zi cu bucatarie tip open space de 29.29 mp unde poate fi amenajat un dinning pentru mesele in familie, dormitorul de 13.96 mp, baia 5.23 mp dotata cu geam de aerisire si cada si 2 holuri dintre care cel de acces 4.48 mp unde se poate amenaja zona de primire cu pantofar si cuier iar a doilea de 2.16 mp unde poate fi pozitionat un dressing.
In pretul de achizitie este inclus si un loc de parcare privat in fata imobilului.
Predarea apartamentului se face in decursul lunii Mai 2026, complet finisat la cheie si include dotari precum:
-Usa metalica de acces antiefractie placata cu panou MDF;
-Centrala termica de apartament marca Vailant Ecotec cu o putere de 24 kW pentru incalzire si 28 kW pentru apa calda cu sistem de incalzire in pardoseala marca Purmo cu termostatare individuala a fiecarei incaperi;
-Tamplarie PVC cu 7 camere si geam tripan (3 foi de sticla) marca Kommerling;
-Instalatie electrica din cupru montata prin copex cu tablou general si sigurante pentru consumatorii de putere;
-Racorduri apa-canal icirc;n bucatarie si bai, racord gaz metan la bucatarie, instalatii pentru gaz, curent electric si apa, contorizare individuala si contoare montate;
-Interfon;
Finisajele cu care se preda apartamentul cuprind:
-Pereti tencuiti pe baza de var si ciment, gletuiti si zugraviti cu lavabila;
-Pardoseli placate cu parchet laminat SPC 10mm in camere si hol;
-Pardoseli placata cu gresie in bucatarie si cele doua bai;
-Peretii bailor sunt placati cu faianta;
-Obiecte sanitare montate; 
-Usi interioare marca Naturen;
-Prize si intrerupatoare marca Schneider;
Din punct de vedere al spatiilor comune interioare precum este casa scarii aceasta se va preda placata cu gresie antiderapanta, balustrazi din teava rectangulara, plafoniere cu senzor si zugraveli in vopsea lavabila alba iar spatiile comune exterioare se predau complet amenajate si includ caile de acces din interiorul complexului, trotuare, toate acestea fiind pavate si zone verzi decorative amenajate cu gazon si arbusti decorativi.
Valoarea de achizitie este de 125.000 euro cu TVA 21% inclus si se poate achizitiona si prin credit bancar cu avans de 15% din suma. ID intern: 3246.

Solicită vizionarea proprietății

Alege o zi disponibilă

22 Februarie
23 Februarie
24 Februarie
25 Februarie

Alege un interval orar

8:00 - 12:00
12:00 - 15:00
15:00 - 18:00
18:00 - 21:00

Următoarele date de contact oferite de tine vor fi accesibile proprietarului:

Locație

Despre zona "Vasile Aaron"

păreri exprimate de 188 de utilizatori, pe o scară de la 1 la 10

Află clasamentul acestui cartier
Sănătate și Siguranță

Sănătate și Siguranță

6.8

Sănătate 6.7

Siguranță 7.5

Calitate aer 6.7

Curățenie 7.0

Zone verzi 6.2

Cultură și Educație

Cultură și Educație

6.1

Cultură 5.5

Educație 7.5

Sport 5.5

Ambianță și Lifestyle

Ambianță și Lifestyle

6.9

Nivel de trai 7.0

Magazine 8.1

Localuri 6.9

Parcări 5.6

Zgomot 6.6

Transport în comun

Transport în comun

7.8

Autobuz 7.8

Tramvai 0.0

Metrou 0.0

Contactează utilizatorul

ID: 4120997

Apartament cu 2 camere la cheie la etajul 1 in Selimbar zona

2 camere | 55 m² | Sibiu / Sibiu

125.000 €


Vezi și alte anunțuri imobiliare
Apartamente vânzare Sibiu-sb - Aeroport Case-vile vânzare Sibiu-sb - Aeroport Garsoniere vânzare Sibiu-sb - Aeroport Terenuri vânzare Sibiu-sb - Aeroport Apartamente vânzare Sibiu-sb - Broscarie Case-vile vânzare Sibiu-sb - Broscarie Garsoniere vânzare Sibiu-sb - Broscarie Terenuri vânzare Sibiu-sb - Broscarie Apartamente vânzare Sibiu-sb - Calea Cisnadiei Case-vile vânzare Sibiu-sb - Calea Cisnadiei Garsoniere vânzare Sibiu-sb - Calea Cisnadiei Terenuri vânzare Sibiu-sb - Calea Cisnadiei