Alina Stroe

Consultant imobiliar

Vânzare

2 camere | 65 m²

Apartament cu 2 camere, la doar 80 m de plajă – Mamaia No

Constanta / Mamaia Sat
110.000 €

Rată estimată

2.410 Lei/lună

Avans (15%)

82.005 lei

Perioada împrumutului

30 ani

Specificații

Număr camere 2

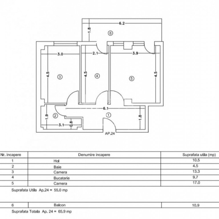
Suprafața utilă 65 m²

Compartimentare Decomandat

Confort 1

Etaj 4

An finalizare construcție 2020

Tip imobil Bloc apartamente

Stare proprietate Bună

Niveluri imobil 5

Număr Băi 1

Mobilat și Utilat Complet

Comision cumpărător 2%

Tip tranzacție Vânzare

Tip vânzător Companie

Situat în Mamaia Nord, pe strada D8, acest apartament se află la doar 80 de metri de plajă, într-una dintre cele mai căutate zone de pe litoralul românesc. Zona este intens frecventată în sezonul estival, fiind preferată de turiști pentru accesul rapid la plajă, restaurante, beach baruri și cluburi exclusiviste.

Apartamentul este poziționat la etajul 4 al unui imobil nou, cu 5 niveluri și lift, oferind o suprafață utilă de 65,9 mp, din care 10,9 mp reprezintă un balcon spațios – ideal pentru momente de relaxare în aer liber.

Se vinde complet mobilat și utilat, exact așa cum se vede în poze, fiind pregătit pentru utilizare imediată. Fie că îl achiziționezi pentru uz personal sau ca investiție, proprietatea beneficiază de un potențial excelent de închiriere pe termen scurt, în special în sezonul estival.
Id intern: P3281

Solicită vizionarea proprietății

Alege o zi disponibilă

27 Decembrie
28 Decembrie
29 Decembrie
30 Decembrie

Alege un interval orar

8:00 - 12:00
12:00 - 15:00
15:00 - 18:00
18:00 - 21:00

Următoarele date de contact oferite de tine vor fi accesibile proprietarului:

Locație

Contactează utilizatorul

ID: 3982040

Apartament cu 2 camere, la doar 80 m de plajă – Mamaia No

2 camere | 65 m² | Constanta / Mamaia Sat

110.000 €