Cristi Stroe

Consultant imobiliar

Vânzare

2 camere | 58 m²

Apartament cu 2 camere pe malul lacului, Mamaia – zonă ce

Constanta / Mamaia
101.000 €

Rată estimată

2.213 Lei/lună

Avans (15%)

75.296 lei

Perioada împrumutului

30 ani

Specificații

Număr camere 2

Suprafața utilă 58 m²

Compartimentare Decomandat

Confort 1

An finalizare construcție 2024

Tip imobil Bloc apartamente

Niveluri imobil 8

Număr Băi 1

Comision cumpărător 0%

Nu include TVA Da

Etaj 3

Stare proprietate Bună

Tip tranzacție Vânzare

Tip vânzător Companie

Într-una dintre cele mai apreciate zone ale Stațiunii Mamaia, pe malul lacului și în imediata vecinătate a hotelurilor Iaki, Riviera și Rex, se dezvoltă un imobil modern cu regim de înălțime P+8.

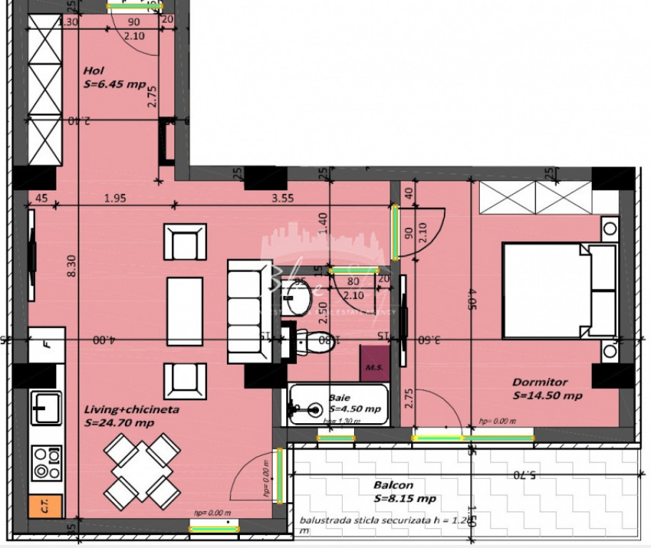
Sunt disponibile apartamente cu 2 camere, având o suprafață utilă de 58,30 mp din care balcon 8,15 mp, situate între etajele 1 și 5 ale clădirii. Acestea oferă spații generoase și bine compartimentate, gândite pentru un stil de viață confortabil.

Apartamentele se predau finisate la alb, cu încălzire în pardoseală și centrală termică proprie, oferind libertatea de personalizare după preferințe.

Finalizarea construcției este programată pentru februarie 2026.

*Prețul afișat nu include TVA.
Id intern: P3354

Solicită vizionarea proprietății

Alege o zi disponibilă

20 Ianuarie
21 Ianuarie
22 Ianuarie
23 Ianuarie

Alege un interval orar

8:00 - 12:00
12:00 - 15:00
15:00 - 18:00
18:00 - 21:00

Următoarele date de contact oferite de tine vor fi accesibile proprietarului:

Locație

Contactează utilizatorul

ID: 4036636

Apartament cu 2 camere pe malul lacului, Mamaia – zonă ce

2 camere | 58 m² | Constanta / Mamaia

101.000 €