Ureche Pavel

Consultant imobiliar

Vânzare

3 camere | 78 m²

Apartament cu 3 camere 2 bai si 2 balcoane etaj 1 zona Doamn

Sibiu / Sibiu
149.435 €

Rată estimată

3.232 Lei/lună

Avans (15%)

111.404 lei

Perioada împrumutului

30 ani

Specificații

Consum total de energie primară 0

Indicele de emisii echivalent CO2 0

Consum total din surse regenerabile 0

Număr camere 3

Număr Băi 2

Suprafața utilă 78 m²

Compartimentare Decomandat

Confort attribute_options.confort.1 sporit

An finalizare construcție 2025

Nu include TVA Nu

Niveluri imobil 3

Posibilitate parcare Da

Numărul de locuri de parcare 1

Tip imobil Bloc apartamente

Stare proprietate Bună

Etaj 1

Tip tranzacție Vânzare

Tip vânzător Companie

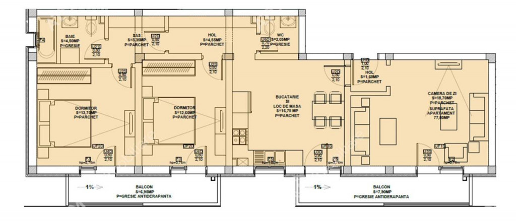
De vanzare in zona Doamna Stanca din Selimbar apartament cu 3 camere decomandate, 2 bai, 2 balcoane si loc propriu de parcare, situat la etajul intermediar 1 din 3 al unui imobil constructie noua 2025 care face parte dintr-un ansamblu rezidential format din 8 blocuri cu regim de inaltime Parter 3 Etaje Pod care dispune de locuri de parcare atat pentru locatari cat si pentru vizitatori, spatii verzi comune si gradini proprii dedicate apartamentelor de la parter, loc de joaca pentru copii si spatii comerciale situate in imobilele pozitionate la strada Doamna Stanca.
Din punct de vedere structural imobilele sunt edificate pe structura din beton si zidarie din caramida cu grosimea de 30 cm, anvelopare termica exterioara realizata din polistiren expandat de 10 cm cu densitatea EPS 80 si zugravit cu decorativa siliconata de exterior, usa de acces din PVC cu inchidere electro-magnetica si interfon, acoperis tip sarpanta cu invelitoare din tigla marca Bramac, plansee din beton intre etaje inclusiv intre etajul 3 si pod.
Apartamentul are 77,80 mp utili, acesta fiind compus din camera de zi 18.70 mp, cele doua dormitoare dintre care cel matrimonial de 13,70 mp iar cel secundar 12,60 mp, bucataria separata cu dinning de 16,75 mp, 2 bai iar cea principala de 4.50 mp dotata cu geam pentru aerisirea naturala si cada si o toaleta de serviciu 2.05 mp, hol de acces 1,60 mp si un alt hol de 7,90 mp prin intermediul caruia se face accesul in camere si unde poate fi pozitionat un dressing generos.
Separat de suprafata utila a apartamentului acesta dispune si de 2 balcoane, unul de 7.90 mp in care accesul se face din camera de zi si bucatarie si un altul de 6,95 in care se face accesul din dormitoare.
Parcarea se realizeaza pe propriul loc de parcare situat in fata blocului.
Apartamentul se preda la stadiul de alb si dispune de urmatoarele dotari si finisaje:
-Usa de metal anti-efractie la intrarea in apartament placata cu MDF;
-Pereti tencuiti ( tencuiala pe baza de var-ciment ), gletuiti si zugraviti cu lavabila alba in 2 straturi;
-Pardoseli amenajate cu sapa autonivelanta semiuscata elicopterizata pregatite pentru parchet-gresie;
-Tamplarie PVC marca Sallamander cu 5 camere si 3 foi de sticla cu Low-E, glafuri exterioare de aluminiu si PVC interior;
-Centrala proprie pe gaz marca Bosch in condensare si incalzire in pardoseala;
-Distribuitor pentru instalatia de incalzire;
- Racorduri apa-canal in bucatarie si bai;
- Racord gaz metan la bucatarie;
-Instalatii electrice trase pe pozitie cu tablou general si sigurante pentru consumatorii de putere;
-Instalatii pentru TV si internet trase pe pozitie.
Valoarea apartamentului la plata unui avans de 15% este de 149.435 TVA Inclus, se poate achizitiona si prin credit ipotecarID intern: 3007.

Solicită vizionarea proprietății

Alege o zi disponibilă

21 Februarie
22 Februarie
23 Februarie
24 Februarie

Alege un interval orar

8:00 - 12:00
12:00 - 15:00
15:00 - 18:00
18:00 - 21:00

Următoarele date de contact oferite de tine vor fi accesibile proprietarului:

Locație

Despre zona "Mihai Viteazul"

păreri exprimate de 123 de utilizatori, pe o scară de la 1 la 10

Află clasamentul acestui cartier
Sănătate și Siguranță

Sănătate și Siguranță

7.4

Sănătate 7.2

Siguranță 8.2

Calitate aer 7.2

Curățenie 7.5

Zone verzi 7.0

Cultură și Educație

Cultură și Educație

7.3

Cultură 7.0

Educație 7.7

Sport 7.2

Ambianță și Lifestyle

Ambianță și Lifestyle

7.3

Nivel de trai 7.6

Magazine 8.0

Localuri 7.8

Parcări 6.2

Zgomot 6.8

Transport în comun

Transport în comun

8.1

Autobuz 8.1

Tramvai 0.0

Metrou 0.0

Contactează utilizatorul

ID: 4064336

Apartament cu 3 camere 2 bai si 2 balcoane etaj 1 zona Doamn

3 camere | 78 m² | Sibiu / Sibiu

149.435 €


Vezi și alte anunțuri imobiliare
Apartamente vânzare Sibiu-sb - Aeroport Case-vile vânzare Sibiu-sb - Aeroport Garsoniere vânzare Sibiu-sb - Aeroport Terenuri vânzare Sibiu-sb - Aeroport Apartamente vânzare Sibiu-sb - Broscarie Case-vile vânzare Sibiu-sb - Broscarie Garsoniere vânzare Sibiu-sb - Broscarie Terenuri vânzare Sibiu-sb - Broscarie Apartamente vânzare Sibiu-sb - Calea Cisnadiei Case-vile vânzare Sibiu-sb - Calea Cisnadiei Garsoniere vânzare Sibiu-sb - Calea Cisnadiei Terenuri vânzare Sibiu-sb - Calea Cisnadiei