Sorin Blajan

Consultant imobiliar

Vânzare

3 camere | 64 m²

Apartament cu trei camere decomandat Bd. Cetatii

Timis / Timisoara
115.000 €

Rată estimată

2.520 Lei/lună

Avans (15%)

85.733 lei

Perioada împrumutului

30 ani

Specificații

Preț negociabil Da

Suprafața utilă 64 m²

Număr camere 3

Tip imobil Bloc apartamente

Compartimentare Decomandat

Număr Băi 1

Etaj 9

Niveluri imobil 10

An finalizare construcție 1975

Confort 1

Ansamblu Rezidențial Nu

Posibilitate parcare Nu

Stare proprietate Bună

Tip tranzacție Vânzare

Tip vânzător Companie

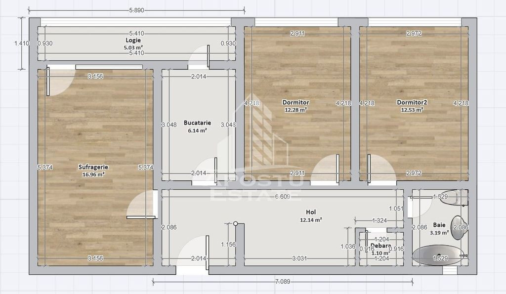
APOSTU ESTATE va propune spre vanzare in exclusivitate, cu comision zero la cumparator, un apartament cu 3 camere, decomandat, situat ta etajul 9 din 10, intr-un bloc cu doua lifturi, pe bulevardul Cetatii, la doar cateva minute de mers pe jos pana la Iulius Town, cu boxa inscrisa in CF.

Apartamentul are suprafata totala de 68.5 mp, incluzand logia de aproximativ 5 mp, inchisa in tamplarie PVC cu geam termopan. 

Compartimentare:
-hol de acces larg;
-bucatarie cu acces la balconul de tip logie;
-living spatios cu acces la balconul de tip logie;
-baie cu vana;
-doua dormitoare;
-debara care se poate transforma in baie de serviciu.

Apartamentul se afla intr-o stare excelenta si a fost renovat partial, este zugravit proaspat, cu usi si geamuri noi, bucataria este echipata cu mobilier nou, masina de spalat vase, aragaz cu cuptor electric, frigider si cuptor cu microunde.

In living se gaseste un aparat de aer conditionat. In debara avem masina de spalat rufe. 

La subsol avem o boxa spatioasa care este inscrisa in CF.

Nu se percepe comision la cumparator.

Va invitam la o vizionare chiar astazi!

CP2536738

Solicită vizionarea proprietății

Alege o zi disponibilă

07 Decembrie
08 Decembrie
09 Decembrie
10 Decembrie

Alege un interval orar

8:00 - 12:00
12:00 - 15:00
15:00 - 18:00
18:00 - 21:00

Următoarele date de contact oferite de tine vor fi accesibile proprietarului:

Locație

Despre zona "Dacia"

păreri exprimate de 80 de utilizatori, pe o scară de la 1 la 10

Află clasamentul acestui cartier
Sănătate și Siguranță

Sănătate și Siguranță

7.3

Sănătate 7.8

Siguranță 7.6

Calitate aer 6.5

Curățenie 7.1

Zone verzi 7.4

Cultură și Educație

Cultură și Educație

7.4

Cultură 6.4

Educație 8.1

Sport 7.6

Ambianță și Lifestyle

Ambianță și Lifestyle

6.8

Nivel de trai 7.1

Magazine 8.0

Localuri 7.1

Parcări 4.9

Zgomot 6.8

Transport în comun

Transport în comun

7.7

Autobuz 7.4

Tramvai 7.9

Metrou 0.0

Contactează utilizatorul

ID: 3968043

Apartament cu trei camere decomandat Bd. Cetatii

3 camere | 64 m² | Timis / Timisoara

115.000 €


Vezi și alte anunțuri imobiliare
Apartamente vânzare Timisoara-tm - Aeroport Case-vile vânzare Timisoara-tm - Aeroport Garsoniere vânzare Timisoara-tm - Aeroport Terenuri vânzare Timisoara-tm - Aeroport Apartamente vânzare Timisoara-tm - Aradului Case-vile vânzare Timisoara-tm - Aradului Garsoniere vânzare Timisoara-tm - Aradului Terenuri vânzare Timisoara-tm - Aradului Apartamente vânzare Timisoara-tm - Baba-Dochia Case-vile vânzare Timisoara-tm - Baba-Dochia Garsoniere vânzare Timisoara-tm - Baba-Dochia Terenuri vânzare Timisoara-tm - Baba-Dochia