Ureche Pavel

Consultant imobiliar

Vânzare

2 camere | 58 m²

Apartament cu 2 camere la etajul 2 zona Doamna Stanca

Sibiu / Sibiu
115.000 €

Rată estimată

2.520 Lei/lună

Avans (15%)

85.733 lei

Perioada împrumutului

30 ani

Specificații

Consum total de energie primară 0

Indicele de emisii echivalent CO2 0

Consum total din surse regenerabile 0

Număr camere 2

Număr Băi 1

Suprafața utilă 58 m²

Compartimentare Decomandat

Confort attribute_options.confort.1 sporit

An finalizare construcție 2024

Nu include TVA Nu

Niveluri imobil 3

Mobilat și Utilat Nemobilat

Posibilitate parcare Da

Numărul de locuri de parcare 1

Tip imobil Bloc apartamente

Stare proprietate Bună

Etaj 2

Tip tranzacție Vânzare

Tip vânzător Companie

Apartament cu 2 camere decomandate, balcon si boxa de vanzare in Selimbar, in suprafata totala de 76 mp, pozitionat la etajul intermediar 2 din 3 al unui nou complex rezidential localizat pe Str. Doamna Stanca in apropierea magazinului Dedeman. Complexul de apartamente pune la dispozitia locatarilor locuri de parcare private si pentru musafiri, acces securizat in complex cu bariera si gradini apartamentelor pozitionate la parterul inalt.
Din punct de vedere structural aceasta este edificat pe structura tip cadru cu stalpi si grinzi din beton armat, zidarie din caramida cu grosimea de 30 cm, anvelopare termica cu polisitren expandat de 10 cm acoperit cu vopsea decorativa de exterior, acoperis tip sarpanta.
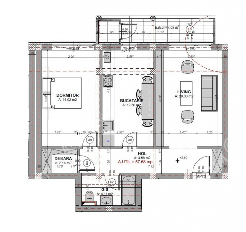
Suprafata utila a apartamentului este de 57,68, acesta fiind compus din camera de zi 20.33 mp, dormitorul de 14.02 mp, bucataria separata de 12.50 mp unde se poate pozitiona si locul de luat masa, debara de 2,14 mp care poate fi amenajata ca si dressing cu acces din dormitor, baia 4.11 mp, si un hol de 4.58 mp unde se poate pozitiona si un dressing.
Separat de suprafata utila a apartamentului acesta beneficiaza si de un balcon de 7.03 mp in care accesul se face atat din camera de zi cat si din bucatarie, balcon unde se afla si o boxa pentru depozitare.
Parcarea se realizeaza pe propriul loc de parcare amenajat in fata imobilului.
Apartamentul se preda la stadiul de alb si dispune de urmatoarele dotari si finisaje:
-Usa de metal anti-efractie la intrarea in apartament placata cu MDF;
-Pereti tencuiti ( tencuiala pe baza de var-ciment ), gletuiti si zugraviti cu lavabila alba in 2 straturi;
-Pardoseli amenajate cu sapa autonivelanta semiuscata elicopterizata pregatite pentru parchet-gresie;
-Tamplarie PVC marca Sallamander cu 5 camere si 3 foi de sticla cu Low-E, glafuri exterioare de aluminiu si PVC interior;
-Centrala proprie pe gaz marca Bosch in condensare si incalzire in pardoseala;
-Distribuitor pentru instalatia de incalzire;
- Racorduri apa-canal in bucatarie si bai;
- Racord gaz metan la bucatarie;
-Instalatii electrice trase pe pozitie cu tablou general si sigurante pentru consumatorii de putere;
-Instalatii pentru TV si internet trase pe pozitie.
- Balcon inchis cu parapet de caramida si sticla cu leduri, finisat si placat cu gresie antiderapanta;
Valoarea de achizitie a locuintei este de 115.000 euro, aceasta poate fi achizitionata si prin accesarea unui credit bancar. ID intern: 2495.

Solicită vizionarea proprietății

Alege o zi disponibilă

07 Decembrie
08 Decembrie
09 Decembrie
10 Decembrie

Alege un interval orar

8:00 - 12:00
12:00 - 15:00
15:00 - 18:00
18:00 - 21:00

Următoarele date de contact oferite de tine vor fi accesibile proprietarului:

Locație

Despre zona "Mihai Viteazul"

păreri exprimate de 123 de utilizatori, pe o scară de la 1 la 10

Află clasamentul acestui cartier
Sănătate și Siguranță

Sănătate și Siguranță

7.4

Sănătate 7.2

Siguranță 8.2

Calitate aer 7.2

Curățenie 7.5

Zone verzi 7.0

Cultură și Educație

Cultură și Educație

7.3

Cultură 7.0

Educație 7.7

Sport 7.2

Ambianță și Lifestyle

Ambianță și Lifestyle

7.3

Nivel de trai 7.6

Magazine 8.0

Localuri 7.8

Parcări 6.2

Zgomot 6.8

Transport în comun

Transport în comun

8.1

Autobuz 8.1

Tramvai 0.0

Metrou 0.0

Contactează utilizatorul

ID: 3813609

Apartament cu 2 camere la etajul 2 zona Doamna Stanca

2 camere | 58 m² | Sibiu / Sibiu

115.000 €


Vezi și alte anunțuri imobiliare
Apartamente vânzare Sibiu-sb - Aeroport Case-vile vânzare Sibiu-sb - Aeroport Garsoniere vânzare Sibiu-sb - Aeroport Terenuri vânzare Sibiu-sb - Aeroport Apartamente vânzare Sibiu-sb - Broscarie Case-vile vânzare Sibiu-sb - Broscarie Garsoniere vânzare Sibiu-sb - Broscarie Terenuri vânzare Sibiu-sb - Broscarie Apartamente vânzare Sibiu-sb - Calea Cisnadiei Case-vile vânzare Sibiu-sb - Calea Cisnadiei Garsoniere vânzare Sibiu-sb - Calea Cisnadiei Terenuri vânzare Sibiu-sb - Calea Cisnadiei