Ureche Pavel

Consultant imobiliar

Vânzare

2 camere | 59 m²

Apartament cu 2 camere la etajul 2 zona Doamna Stanca

Sibiu / Sibiu
118.000 €

Rată estimată

2.585 Lei/lună

Avans (15%)

87.969 lei

Perioada împrumutului

30 ani

Specificații

Consum total de energie primară 0

Indicele de emisii echivalent CO2 0

Consum total din surse regenerabile 0

Număr camere 2

Număr Băi 1

Suprafața utilă 59 m²

Compartimentare Decomandat

Confort attribute_options.confort.1 sporit

An finalizare construcție 2024

Nu include TVA Nu

Niveluri imobil 3

Mobilat și Utilat Nemobilat

Posibilitate parcare Da

Numărul de locuri de parcare 1

Tip imobil Bloc apartamente

Stare proprietate Bună

Etaj 2

Tip tranzacție Vânzare

Tip vânzător Companie

De vanzare in Selimbar pe Str. Doamna Stanca apartament de 2 camere decomandate cu balcon si boxa pentru depozitare, in suprafata totala de 79 mp, pozitionat la etajul intermediar 2 din 3 al unui bloc constructie noua 2024 aflat intr-un complex rezidential modern unde toti locatarii au locuri de parcare private, gradini destinate locatarilor de la parter, strada asfaltata si iluminata si acces securizat.
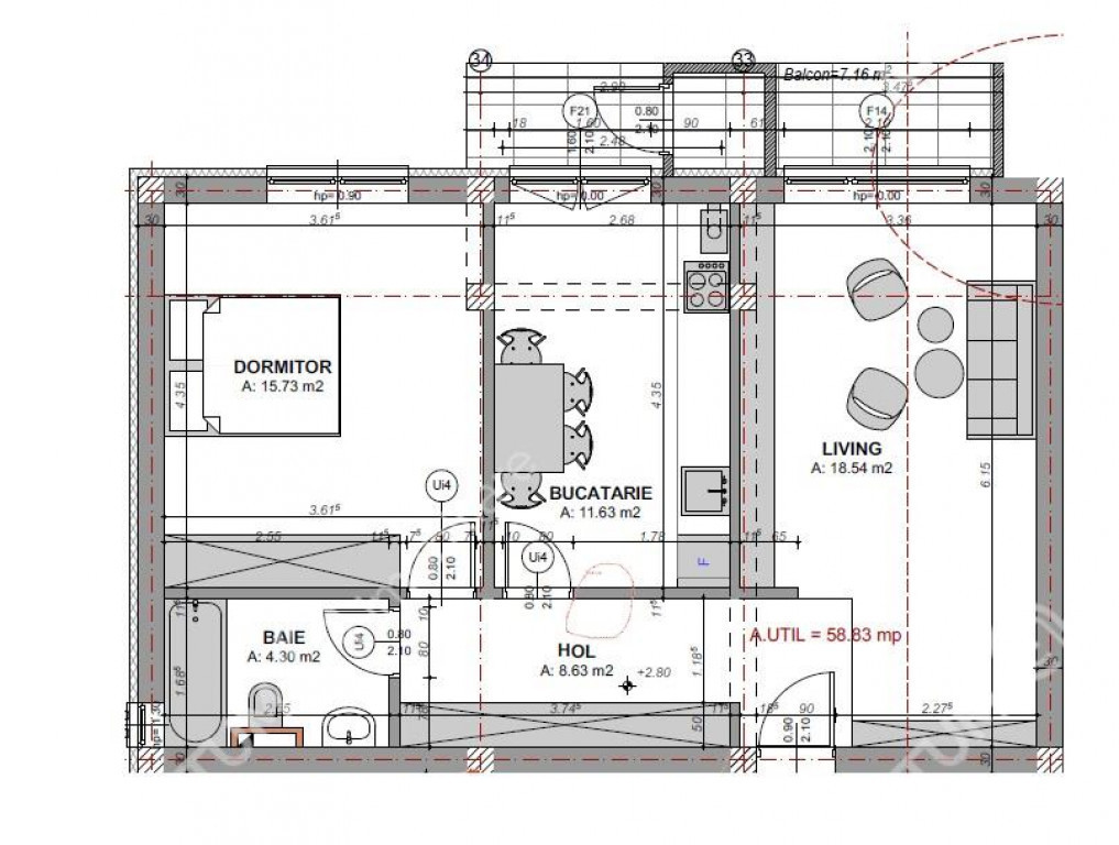
Apartamentul are suprafata utila de 58.83 mp, acesta este compus din camera de zi 18.54 mp, dormitorul 15.73 mp, bucataria separata de 11,63 mp, baia spatioasa de 4.30 mp, hol spatios de 8.63 mp unde se poate amenaja zona de primire cu pantofar si cuier cat si pozitionarea unui dressing generos.
Separat de suprafata utila apartamentul beneficiaza si de un balcon generos de 7.16 mp delimitat in 2 balcoane de o boxa destinata depozitarii, accesul se poate face atat din camera de zi cat si din bucatarie.
Parcarea se realizeaza pe propriul loc de parcare amenajat in fata imobilului.
Apartamentul se preda la stadiul de alb si dispune de urmatoarele dotari si finisaje:
-Usa de metal anti-efractie la intrarea in apartament placata cu MDF;
-Pereti tencuiti ( tencuiala pe baza de var-ciment ), gletuiti si zugraviti cu lavabila alba in 2 straturi;
-Pardoseli amenajate cu sapa autonivelanta semiuscata elicopterizata pregatite pentru parchet-gresie;
-Tamplarie PVC marca Sallamander cu 5 camere si 3 foi de sticla cu Low-E, glafuri exterioare de aluminiu si PVC interior;
-Centrala proprie pe gaz marca Bosch in condensare si incalzire in pardoseala;
-Distribuitor pentru instalatia de incalzire;
- Racorduri apa-canal in bucatarie si bai;
- Racord gaz metan la bucatarie;
-Instalatii electrice trase pe pozitie cu tablou general si sigurante pentru consumatorii de putere;
-Instalatii pentru TV si internet trase pe pozitie.
- Balcon inchis cu parapet de caramida si sticla cu leduri, finisat si placat cu gresie antiderapanta;
Valoarea de achizitie a locuintei este de 118.000 euro, aceasta poate fi achizitionata si prin credit bancar. ID intern: 2499.

Solicită vizionarea proprietății

Alege o zi disponibilă

23 Decembrie
24 Decembrie
25 Decembrie
26 Decembrie

Alege un interval orar

8:00 - 12:00
12:00 - 15:00
15:00 - 18:00
18:00 - 21:00

Următoarele date de contact oferite de tine vor fi accesibile proprietarului:

Locație

Despre zona "Mihai Viteazul"

păreri exprimate de 123 de utilizatori, pe o scară de la 1 la 10

Află clasamentul acestui cartier
Sănătate și Siguranță

Sănătate și Siguranță

7.4

Sănătate 7.2

Siguranță 8.2

Calitate aer 7.2

Curățenie 7.5

Zone verzi 7.0

Cultură și Educație

Cultură și Educație

7.3

Cultură 7.0

Educație 7.7

Sport 7.2

Ambianță și Lifestyle

Ambianță și Lifestyle

7.3

Nivel de trai 7.6

Magazine 8.0

Localuri 7.8

Parcări 6.2

Zgomot 6.8

Transport în comun

Transport în comun

8.1

Autobuz 8.1

Tramvai 0.0

Metrou 0.0

Contactează utilizatorul

ID: 3816121

Apartament cu 2 camere la etajul 2 zona Doamna Stanca

2 camere | 59 m² | Sibiu / Sibiu

118.000 €


Vezi și alte anunțuri imobiliare
Apartamente vânzare Sibiu-sb - Aeroport Case-vile vânzare Sibiu-sb - Aeroport Garsoniere vânzare Sibiu-sb - Aeroport Terenuri vânzare Sibiu-sb - Aeroport Apartamente vânzare Sibiu-sb - Broscarie Case-vile vânzare Sibiu-sb - Broscarie Garsoniere vânzare Sibiu-sb - Broscarie Terenuri vânzare Sibiu-sb - Broscarie Apartamente vânzare Sibiu-sb - Calea Cisnadiei Case-vile vânzare Sibiu-sb - Calea Cisnadiei Garsoniere vânzare Sibiu-sb - Calea Cisnadiei Terenuri vânzare Sibiu-sb - Calea Cisnadiei