Mihai Ghior

Consultant imobiliar

Vânzare

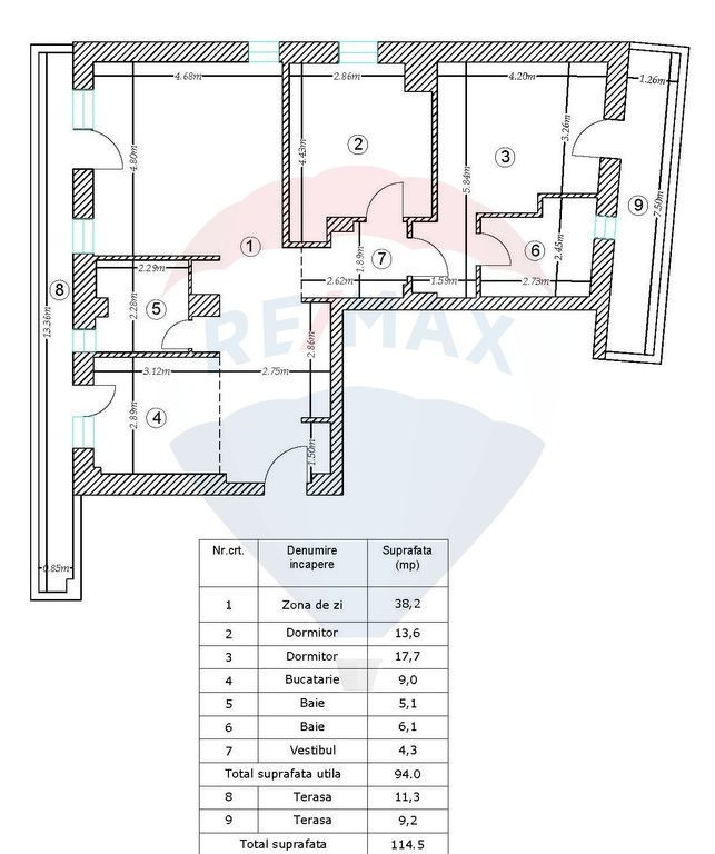
3 camere | 94 m²

Apartament unicat 3 camere supradimensionat, Damaroaia - ...

Bucuresti-Ilfov / Bucuresti
177.000 €

Rată estimată

3.829 Lei/lună

Avans (15%)

131.954 lei

Perioada împrumutului

30 ani

Specificații

Preț negociabil Nu

Nu include TVA Nu

Suprafața utilă 94 m²

Număr camere 3

Tip imobil Bloc apartamente

Compartimentare Semidecomandat

Număr Băi 2

Etaj 3

Niveluri imobil 3

An finalizare construcție 2020

Confort 1

Ansamblu Rezidențial Nu

Posibilitate parcare Nu

Mobilat și Utilat Nemobilat

Stare proprietate Rezonabilă

Tip tranzacție Vânzare

Tip vânzător Companie

Va propun spre vanzare cel mai frumos apartament din complex, un apartament de 3 camere supradimensionat, cu suprafata de 4 camere, compartimentat inteligent, cu zona de zi separata de zona de noapte si dispunere pe ambele laturi ale blocului, ceea ce ii ofera atat ventilatie naturala excelenta, cat si umbra si soare in acelasi timp in functie de zona in care alegeti sa stati. Este un apartament foarte luminos. Zona de zi este dispusa pe partea estica, fiind deci scaldata in lumina in prima parte a zilei. Lumina pica absolut spectaculos in zona de zi dimineata, asa ca veti avea cele mai frumoase inceputui de zi la dumneavoastra acasa. In zilele toride de vara aici va puteti bucura de umbra si racoare dupa pranz.  Zona de noapte este dispusa catre apus, aici putand sa va bucurati de umbra dimineata si apusuri superbe seara.

Un element suplimentar care contribuie la atuurile acestui apartamnt este teiul parfumat de sub terasa zonei de zi, care in fiecare an timp de o luna cat sta inflorit, va va bucura simturile si inima.

Este compus dintr-o zona de zi foarte generoasa de peste 38 mp, o bucatarie de 9 mp care se va putea inchide daca se va dori, doua dormitoare, dintre care unul matrimonial cu baie proprie, un hol, o baie secundara, pozitionata ideal in zona de zi, intre living si bucatarie, precum si un spatiu gandit special pentru masina de spalat rufe/uscator. Apartamentul are deja gandite spatii generoase pentru dressing si cuier.

Apartamentul beneficaza de centrala proprie si videointerfon digital clour touch panel ELECTRA. Aparamentul este izolat fonic, atat in pardoseli, cat si in pereti si plafoane. Sistemul de aspirare centralizata este optional.

in materie de finsaje, avem parchet laminat flotant, tamplarie PVC Salamander cu 7 camere si sticla tripan St-Gobain, usile interioare sunt celulare laminate EXEA Italia, usa de intrare blindata MAESTRO Italia, inclazirea se face integral prin pardoseala, iar racirea printr-un sistem pe tubulatura CITIZEN cu grile in plafon.

Structura de rezistenta este din beton armat in sistem de cadre, peretii exteriori din caramida Porotherm de 24 cm, peretii de separatie dintre apartamente din caramida Porotherm de 12 cm, peretii de compartimentare, tencuielile interioare si plafoanele sunt din gips-carton si vata minerala, plansee le sunt izolate cu izolant fonic de 30mm si sapa armata, iar fatada este izolata cu termosistem de 10 cm.

Locurile de parcare pot fi achzitionate separat pentru pretul de 9000 EUR+TVA in suprateran sau 13000 EUR+TVA in subteran. Datorida dispunerii in spatiu singurele boxe ramase disponibile se pot achizitiona doar impreuna cu un loc de parcare subteran pentru pretul de 18000 EUR + TVA.

Zona este in continua dezvoltare, in imediata vecinatate deschizandu-se de curand cea mai mare plaja urbana din Europa, Lagoon Park. Scola germana este, de asemenea, foarte aproape. Este un loc preferat de cei care isi doresc sa locuiasca in nordul orasului, avand acces facil catre cele doua aeroporturi si iesirea din oras catre munte. In zona sunt mai multe restaurante cunoscute, unitati medicale, cluburi de fitness, magazine, LIDL fiind la 5 minute de mers. Zona este conectata cu restul orasului prin liniile de autobuz 112, 149, 205 si 261.

La pretul afisat se adauga TVA. 

Pentru mai multe detalii si stabilirea unei vizionari, va stau la dispozitie.

Indici de performanta energetica: Nota Energetica: 100, Clasa energetică: A, Consumul anual specific de energie: 81.03 kWh/m2an, Indicele de emisii echivalent CO2: 19.59 kgCO2/m2an

Solicită vizionarea proprietății

Alege o zi disponibilă

02 Aprilie
03 Aprilie
04 Aprilie
05 Aprilie

Alege un interval orar

8:00 - 12:00
12:00 - 15:00
15:00 - 18:00
18:00 - 21:00

Următoarele date de contact oferite de tine vor fi accesibile proprietarului:

Locație

Staţii de tramvai

Aeroport Băneasa 1.2 kilometri

Cartier Dămăroaia 1.2 kilometri

Staţii de autobuz

Nuferilor 173 metri

Foradex 204 metri

Staţii de tren

Staţie tren 853 metri

CFR București Băneasa 909 metri

Staţii de metrou

Metrou Parc Bazilescu 2.3 kilometri

Metrou 1 Mai 2.6 kilometri

Despre zona "Damaroaia"

păreri exprimate de 59 de utilizatori, pe o scară de la 1 la 10

Află clasamentul acestui cartier
Sănătate și Siguranță

Sănătate și Siguranță

8.2

Sănătate 7.2

Siguranță 8.4

Calitate aer 8.1

Curățenie 8.5

Zone verzi 8.6

Cultură și Educație

Cultură și Educație

7.1

Cultură 5.7

Educație 8.5

Sport 7.0

Ambianță și Lifestyle

Ambianță și Lifestyle

7.6

Nivel de trai 8.4

Magazine 8.3

Localuri 5.5

Parcări 7.0

Zgomot 8.6

Transport în comun

Transport în comun

8.1

Autobuz 8.5

Tramvai 8.1

Metrou 7.7

Contactează utilizatorul

ID: 3882309

Apartament unicat 3 camere supradimensionat, Damaroaia - ...

3 camere | 94 m² | Bucuresti-Ilfov / Bucuresti

177.000 €