Vânzări
Închirieri
Vânzare Casă - Vilă 4 camere, Central

BÂRNOVA - Casă individuală P+M+POD, 145 mp + 789 mp teren

109.000 eur
ID 4131737
Case - Vile | 145 m² | 4 camere
Barnova, Iasi / Central
Zona Central
Număr camere 4
Suprafața utilă 145 m²
Suprafață teren 470 m²
An finalizare construcție 2021
Stare proprietate Nouă
Număr niveluri imobil 1
Număr Băi 2
Mobilat/Utilat Nemobilat
Nr. locuri parcare 2
Utilități Curent,    Apă,    Gaz

*** DESTINE IMOBILIARE vă prezintă spre vânzare:
** Casă individuală 4 camere – BÂRNOVA

Preț: 109.000 €
INFORMAȚII GENERALE:
An construcție: 2021
Construită în regie proprie
Regim de înălțime: P+M+Pod
Suprafață utilă: 145 mp + balcon 4,70 mp

Teren: 789 mp, cu tot cu cale de acces

DETALII CONSTRUCȚIE:
Fundație din beton armat
Centuri și stâlpi din fier beton
Zidărie din cărămidă
Izolație exterioară cu polistiren expandat

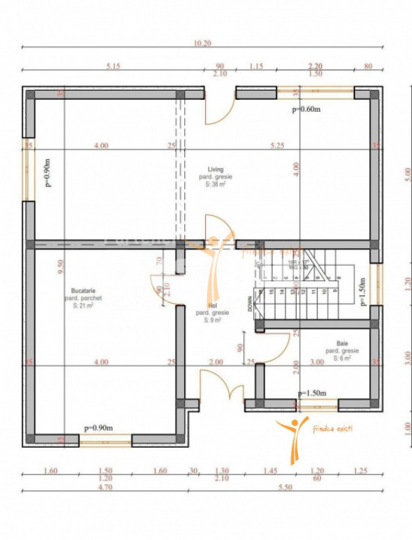
COMPARTIMENTARE:
~ PARTER: living generos, bucătărie, baie cu geam, hol
~ ETAJ: 3 dormitoare, baie cu geam, hol, balcon
~ POD pentru depozitare

???? Proprietatea se vinde LA GRI, oferind viitorului proprietar libertatea de a o amenaja și finisa exact după propriul gust și buget.

✔ Poziționată în planul 2 față de strada principală
✔ Cale de acces privată
✔ Zonă liniștită, aer curat și priveliște frumoasă
???? La doar 2,5 km de Primăria Bârnova

Ideală pentru o familie care își dorește liniște, spațiu generos și acces rapid către oraș.

> Pentru vizionări sau informații suplimentare:
-> 0750.299.322 - Atasiei Mihaela
*Cod ofertă : P4780

???? Această proprietate poate fi achiziționată prin intermediul unui credit, iar noi suntem aici să vă facilităm acest proces. Datorită parteneriatelor noastre strânse cu cele mai importante instituții bancare, vă putem oferi asistență în obținerea finanțării potrivite pentru dumneavoastră.
✨Nu ezitați să ne contactați pentru mai multe informații despre opțiunile de finanțare disponibile! ✨
Id intern: P4780

Solicită vizionarea proprietății

BÂRNOVA - Casă individuală P+M+POD, 145 mp + 789 mp teren

Vizionare
Alege o dată disponibilă:
Vineri
24 Aprilie
Sâmbătă
25 Aprilie
Duminică
26 Aprilie
Luni
27 Aprilie
Anulează
success
Solicitarea ta a fost trimisă cu succes!
Vei fi contactat de către proprietar în cel mai scurt timp posibil.
Contactează utilizatorul
BÂRNOVA - Casă individuală P+M+POD, 145 mp + 789 mp teren
Mihaela Atasiei Consultant imobiliar Destine Imobiliare SRL
07xx - AFIŞEAZĂ
ID 4131737
Anunțuri similare
Număr de telefon verificat
209.000 eur BÂRNOVA - Casă individuală P+1+POD, 140 mp + 380 mp teren
4 camere  •  133 m²  •  2019  •  mobilat complet
Construcţie nouă
Barnova, IS, Central
ieri, 16:05
Distribuie anunțul Adaugă la favorite
Număr de telefon verificat
350.000 eur BÂRNOVA - Casă individuală P+POD, 156 mp + 1000 mp teren
4 camere  •  122 m²  •  2019  •  nemobilat
Construcţie nouă
Barnova, IS, Central
ieri, 16:02
Distribuie anunțul Adaugă la favorite
Număr de telefon verificat
210.000 eur Vilă P+1E în Bârnova | Execuție tehnică superioară | 0
4 camere  •  125 m²  •  2026
Construcţie nouă
Barnova, IS, Central
17 apr.
Distribuie anunțul Adaugă la favorite
Număr de telefon verificat
115.000 eur Casa individuala, 162 mp utili, 440 mp teren, zona Barnova
4 camere  •  162 m²  •  2022  •  nemobilat
Construcţie nouă
Barnova, IS, Central
17 apr.
Distribuie anunțul Adaugă la favorite
Vrei sa vinzi simplu si rapid?
Termenii și condițiile de pe site au fost actualizate. Detaliile complete sunt disponibile aici