BLITZ Romania

Consultant imobiliar

Vânzare

3 camere | 44 m²

Casă 3 camere la cheie, cu teren și posibilitate mansardar

Bucuresti-Ilfov / Bucuresti
230.000 €

Rată estimată

5.039 Lei/lună

Avans (15%)

171.465 lei

Perioada împrumutului

30 ani

Specificații

Număr camere 3

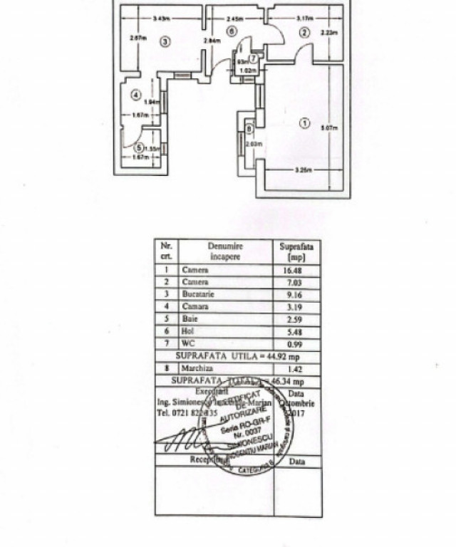
Suprafața utilă 44 m²

An finalizare construcție 1960

Suprafață teren 87 m²

Număr Băi 1

Stare proprietate Bună

Mobilat și Utilat Complet

Utilități Curent, Apă, Canalizare, Gaz, Climă

Tip tranzacție Vânzare

Tip vânzător Companie

Vânzare casă parter cu potențial mansardare – Parcul Carol / Piața Unirii

La câțiva pași de Parcul Carol și Piața Unirii, vă prezentăm o proprietate unică pe piață: casă parter, 3 camere, 47 m² utili (60 m² construiți), cu posibilitatea de extindere și mansardare (regim final P+M).

???? Descriere proprietate:

Casă parter, 3 camere, compartimentare practică: living, dormitor, bucătărie, baie, dressing, spații de depozitare și o marchiză elegantă

Pod la roșu cu două intrări, pregătit pentru mansardare

Structură consolidată în 2013, pereți groși.

Finisaje moderne realizate în 2016, inclusiv șemineu funcțional și dressing

Instalație electrică refăcută complet (2016), cu 13 circuite separate + circuit dedicat pentru mansardă

Centrală termică proprie

Horn funcțional în primul dormitor

Magazie construită în 2013, cu placă de beton – posibilitate de terasă deasupra


???? Acte și autorizații:

Certificat de urbanism pentru extindere și mansardare

Documentație completă

Teren construibil, cu potențial de extindere

???? Avantaje locație:

Poziționare excelentă, pe o stradă liniștită, cu acces facil la Parcul Carol și Piața Unirii

Vecini civilizați; acces separat față de restul proprietăților

Aproape de transport public, spații verzi, restaurante și centre culturale

???? Beneficii suplimentare:

Casă consolidată și renovată – mutare imediată

Posibilitate extindere (P+M) sau amenajare terasă

Potențial investițional ridicat – se poate închiria pe Airbnb la 100 €/noapte datorită poziției centrale

???? Un imobil rar pe piață, cu istoric solid, perfect atât pentru rezidență, cât și pentru investiție.
Cod ofertă / ID BLITZ: P150694
Id intern: P150694

Solicită vizionarea proprietății

Alege o zi disponibilă

27 Decembrie
28 Decembrie
29 Decembrie
30 Decembrie

Alege un interval orar

8:00 - 12:00
12:00 - 15:00
15:00 - 18:00
18:00 - 21:00

Următoarele date de contact oferite de tine vor fi accesibile proprietarului:

Locație

Despre zona "Parcul Carol"

păreri exprimate de 19 de utilizatori, pe o scară de la 1 la 10

Află clasamentul acestui cartier
Sănătate și Siguranță

Sănătate și Siguranță

7.5

Sănătate 7.3

Siguranță 8.3

Calitate aer 6.8

Curățenie 7.1

Zone verzi 8.3

Cultură și Educație

Cultură și Educație

7.4

Cultură 7.3

Educație 7.7

Sport 7.1

Ambianță și Lifestyle

Ambianță și Lifestyle

7.1

Nivel de trai 7.2

Magazine 6.9

Localuri 7.2

Parcări 6.5

Zgomot 7.6

Transport în comun

Transport în comun

8.1

Autobuz 8.1

Tramvai 8.1

Metrou 8.0

Contactează utilizatorul

ID: 4028046

Casă 3 camere la cheie, cu teren și posibilitate mansardar

3 camere | 44 m² | Bucuresti-Ilfov / Bucuresti

230.000 €