BLITZ Romania

Consultant imobiliar

Vânzare

3 camere | 76 m²

Casa de vanzare, cu 3 camere, moderna, zona Dumbrava

Iasi / Iasi
120.000 €

Rată estimată

2.629 Lei/lună

Avans (15%)

89.460 lei

Perioada împrumutului

30 ani

Specificații

Număr camere 3

Suprafața utilă 76 m²

Niveluri imobil 1

Suprafață teren 300 m²

Număr Băi 2

Stare proprietate Nouă

Mobilat și Utilat Nemobilat

Utilități Curent, Apă

Tip tranzacție Vânzare

Tip vânzător Companie

An finalizare construcție 2024

Blitz va propune pt achizitie o casa moderna cu 3 camere in Dumbrava in imediata vecinatate a drumului judetean.

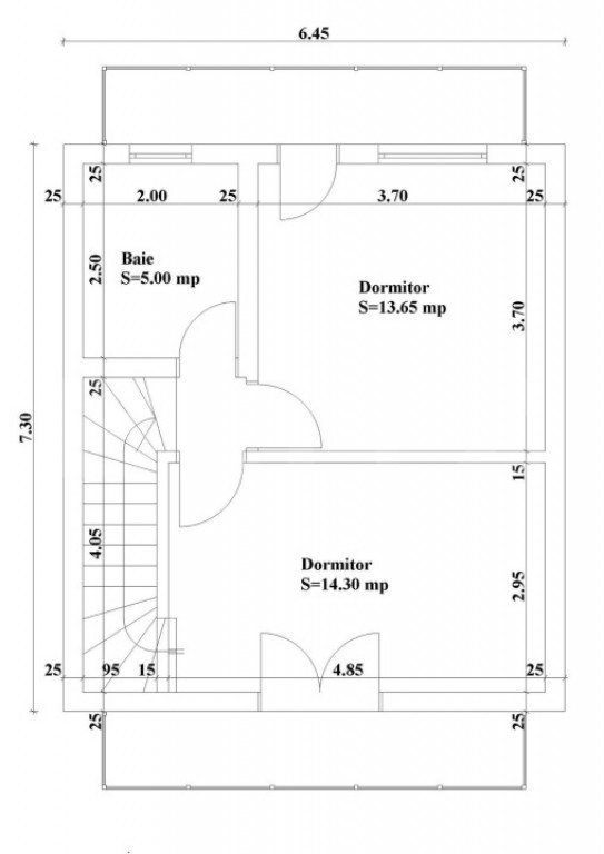
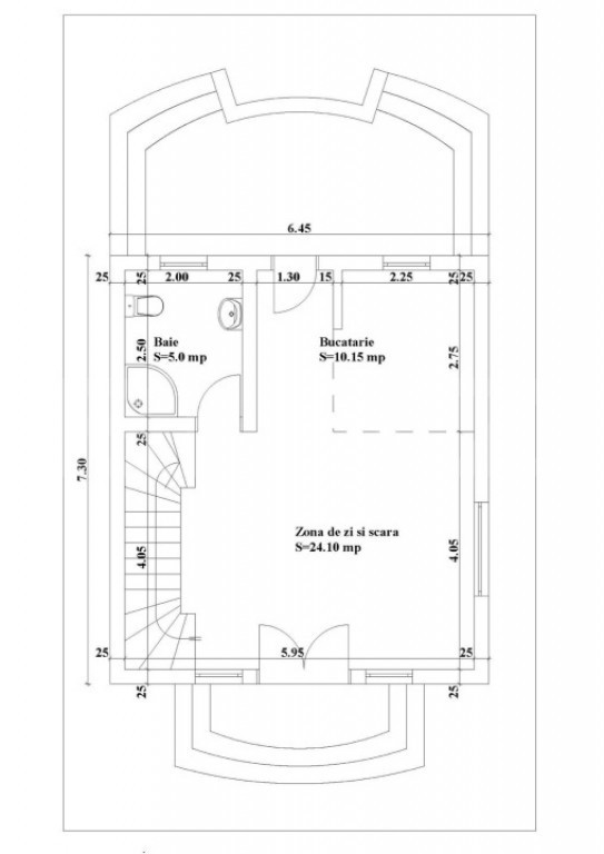
Casa are aproape 80 mp utili compartimentata pe doua nivele
Parter: Living, Bucatarie, Baie
Etaj: 2 Dormitoare, dressing si baie

Curtea are 300 mp teren cu deschidere mare la drum. 

Utilitati: Apa, Curent electric si canalizare prin fosa. 

Este o casa simpla, moderna, cu semineu in Living si bucatarie open space care la nevoie se poate inchide. Dormitoarele ofera o panorama superba asupra dealurilor din preajma. Este o casa pozitionata foarte bine fata de drumul judetean. Este o alternativa sanatoasa la un apartament in oras si care ofera tot confortul unei case. 

Casa se preda asa cum este in stadiul actual la 110.000 euro sau finalizata si mobilata, utilata la 130k
Cod ofertă / ID BLITZ: P147869
Id intern: P147869

Solicită vizionarea proprietății

Alege o zi disponibilă

08 Decembrie
09 Decembrie
10 Decembrie
11 Decembrie

Alege un interval orar

8:00 - 12:00
12:00 - 15:00
15:00 - 18:00
18:00 - 21:00

Următoarele date de contact oferite de tine vor fi accesibile proprietarului:

Locație

Contactează utilizatorul

ID: 3994038

Casa de vanzare, cu 3 camere, moderna, zona Dumbrava

3 camere | 76 m² | Iasi / Iasi

120.000 €


Vezi și alte anunțuri imobiliare
Apartamente vânzare Iasi-is - Aeroport Case-vile vânzare Iasi-is - Aeroport Garsoniere vânzare Iasi-is - Aeroport Terenuri vânzare Iasi-is - Aeroport Apartamente vânzare Iasi-is - Aleea cu Ciresi Case-vile vânzare Iasi-is - Aleea cu Ciresi Garsoniere vânzare Iasi-is - Aleea cu Ciresi Terenuri vânzare Iasi-is - Aleea cu Ciresi Apartamente vânzare Iasi-is - Aleea Tudor Neculai Case-vile vânzare Iasi-is - Aleea Tudor Neculai Garsoniere vânzare Iasi-is - Aleea Tudor Neculai Terenuri vânzare Iasi-is - Aleea Tudor Neculai