BLITZ Romania

Consultant imobiliar

Vânzare

5 camere | 178 m²

Casa 5 camere– spațiu, liniște și tehnologie verde pent

Cluj / Salicea
399.000 €

Rată estimată

8.742 Lei/lună

Avans (15%)

297.455 lei

Perioada împrumutului

30 ani

Specificații

Număr camere 5

Suprafața utilă 178 m²

An finalizare construcție 2026

Niveluri imobil 1

Suprafață teren 1100 m²

Număr Băi 3

Numărul de locuri de parcare 1

Stare proprietate În construcție

Mobilat și Utilat Nemobilat

Utilități Apă, Gaz

Tip tranzacție Vânzare

Tip vânzător Companie

Salicea oferă liniște, aer curat și acces rapid către Cluj-Napoca. Perfect pentru familii, profesioniști care lucrează remote sau persoane care caută un refugiu modern aproape de oraș.

Proprietate individuală în Salicea, în curs de construire, ideală pentru familii moderne sau persoane care își doresc un stil de viață liniștit, aproape de natură. Casa are 180 mp utili și este amplasată pe un teren generos de 1100 mp. Se predă semifinisată, oferind libertatea de personalizare după propriul gust.

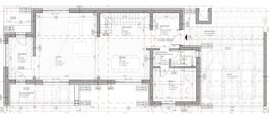
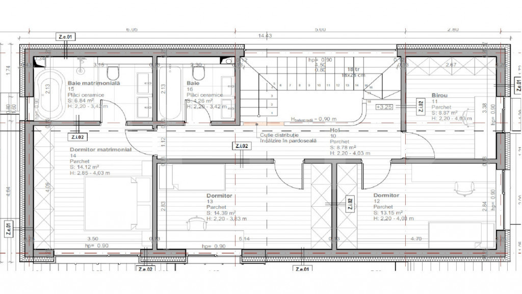
Compartimentare:
Parter: living spațios, dining, bucătărie, cameră pentru birou sau musafiri, baie, terasă de 12 mp și balcon.
Etaj: dormitor matrimonial cu baie proprie, trei camere suplimentare și o baie comună.

Construcție și Tehnologii:
Structură din beton, zidărie de cărămidă, acoperiș din țiglă izolat cu vată bazaltică. Casă construită la standarde NZEB, cu pompă de căldură, panouri fotovoltaice, încălzire în pardoseală și mini stație de epurare. Eficiență ridicată și costuri minime de întreținere.

Exterior și Facilități:
Garaj pentru două mașini, foișor de 40 mp, curte împrejmuită cu gard din beton și tablă. Teren de 1100 mp, ideal pentru grădină, spațiu de joacă sau zonă de relaxare.

Beneficii Cheie

Costuri reduse datorită tehnologiei NZEB;
Spațiu generos interior și exterior;
Construcție solidă și eficiență energetică;
Garaj dublu și foișor inclus.

Haide la vizionare la casa visurilor tale!
Cod ofertă / ID BLITZ: P160232
Id intern: P160232

Solicită vizionarea proprietății

Alege o zi disponibilă

18 Decembrie
19 Decembrie
20 Decembrie
21 Decembrie

Alege un interval orar

8:00 - 12:00
12:00 - 15:00
15:00 - 18:00
18:00 - 21:00

Următoarele date de contact oferite de tine vor fi accesibile proprietarului:

Locație

Contactează utilizatorul

ID: 4100382

Casa 5 camere– spațiu, liniște și tehnologie verde pent

5 camere | 178 m² | Cluj / Salicea

399.000 €