Lorian-Emanuel Gherasim

Consultant imobiliar

Vânzare

3 camere | 67 m²

Casa de vanzare, 3 camere, 2 bai, 379mp teren. zona Visani,

Iasi / Iasi
90.000 €

Rată estimată

1.972 Lei/lună

Avans (15%)

67.095 lei

Perioada împrumutului

30 ani

Specificații

Număr camere 3

Suprafața utilă 67 m²

An finalizare construcție 2018

Suprafață teren 379 m²

Număr Băi 2

Numărul de locuri de parcare 2

Comision cumpărător 3%

Stare proprietate Nouă

Utilități Curent, Apă, Canalizare, Gaz

Tip tranzacție Vânzare

Tip vânzător Companie

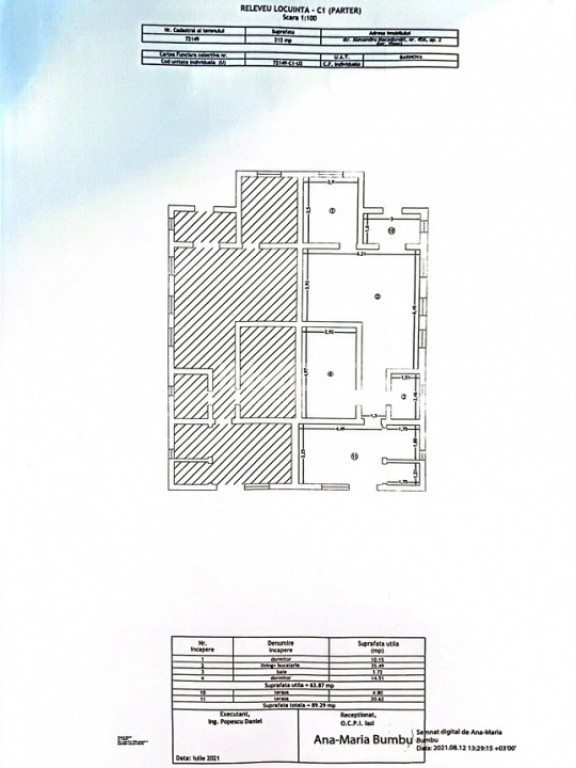
Invest Imobiliare vă propune spre vânzare o casă tip duplex, cu regim de înălțime Parter + Pod mansardabil, amplasată pe o suprafață de teren de 379 mp, cu acces asfaltat și iluminat public. Proprietatea este situată în zona Bucium-Vișani, pe Strada Alexandru Macedonski nr. 40. Pentru mai multe detalii, vă stăm la dispoziție la numărul de telefon afișat.

Imobilul este construit din cadre de beton, cu compartimentări din BCA și izolație exterioară din polistiren, pereți tencuiți la interior și tâmplărie PVC. Locuința are o suprafață utilă de 67 mp, iar suprafața totală este de 98 mp. Construcția a fost finalizată în anul 2018 și este compartimentată astfel:
- Parter: 2 dormitoare, 2 băi, living, bucătărie, terasă închisă, cameră tehnică.
- Pod: mansardabil, cu o suprafață utilă de 50 mp.
- Terenul are o suprafață totală de 379 mp, din care 279 mp reprezintă teren liber.
Imobilul este racordat la utilități: apă, gaze, electricitate și fosă septică, iar canalizarea se află la strada principală.

Proprietatea se vinde în stadiul actual – „la gri” în interior, cu instalațiile electrice trase, lăsând posibilitatea viitorului proprietar să personalizeze spațiile după propriul gust.

Locație: situată într-o zonă liniștită, aproape de mijloace de transport în comun care fac legătura cu orașul, cu acces facil, asfaltat și iluminat public, într-un cartier exclusiv de case.


 Pentru mai multe detalii sau pentru a stabili o vizionare, contactați:
0757 669 325 – Lorian Gherasim
Id intern: P8258

Solicită vizionarea proprietății

Alege o zi disponibilă

28 Decembrie
29 Decembrie
30 Decembrie
31 Decembrie

Alege un interval orar

8:00 - 12:00
12:00 - 15:00
15:00 - 18:00
18:00 - 21:00

Următoarele date de contact oferite de tine vor fi accesibile proprietarului:

Locație

Despre zona "Bucium"

păreri exprimate de 126 de utilizatori, pe o scară de la 1 la 10

Află clasamentul acestui cartier
Sănătate și Siguranță

Sănătate și Siguranță

6.9

Sănătate 6.1

Siguranță 7.7

Calitate aer 7.7

Curățenie 7.2

Zone verzi 6.0

Cultură și Educație

Cultură și Educație

5.8

Cultură 4.9

Educație 6.3

Sport 6.3

Ambianță și Lifestyle

Ambianță și Lifestyle

6.9

Nivel de trai 7.5

Magazine 5.9

Localuri 7.2

Parcări 6.3

Zgomot 7.6

Transport în comun

Transport în comun

6.0

Autobuz 7.2

Tramvai 4.9

Metrou 0.0

Contactează utilizatorul

ID: 4088602

Casa de vanzare, 3 camere, 2 bai, 379mp teren. zona Visani,

3 camere | 67 m² | Iasi / Iasi

90.000 €


Vezi și alte anunțuri imobiliare
Apartamente vânzare Iasi-is - Aeroport Case-vile vânzare Iasi-is - Aeroport Garsoniere vânzare Iasi-is - Aeroport Terenuri vânzare Iasi-is - Aeroport Apartamente vânzare Iasi-is - Aleea cu Ciresi Case-vile vânzare Iasi-is - Aleea cu Ciresi Garsoniere vânzare Iasi-is - Aleea cu Ciresi Terenuri vânzare Iasi-is - Aleea cu Ciresi Apartamente vânzare Iasi-is - Aleea Tudor Neculai Case-vile vânzare Iasi-is - Aleea Tudor Neculai Garsoniere vânzare Iasi-is - Aleea Tudor Neculai Terenuri vânzare Iasi-is - Aleea Tudor Neculai