Lorian-Emanuel Gherasim

Consultant imobiliar

Vânzare

3 camere | 67 m²

Casă tip duplex de vânzare 380 MP teren, zona Vișani - IA

Iasi / Iasi
90.000 €

Rată estimată

1.938 Lei/lună

Avans (15%)

67.095 lei

Perioada împrumutului

30 ani

Specificații

Număr camere 3

Suprafața utilă 67 m²

Suprafață teren 379 m²

An finalizare construcție 2018

Stare proprietate Nouă

Număr Băi 2

Comision cumpărător 0%

Numărul de locuri de parcare 2

Utilități Curent, Apă, Canalizare, Gaz

Tip tranzacție Vânzare

Tip vânzător Companie

Invest Imobiliare vă propune spre vânzare o casă tip duplex, cu regim de înălțime Parter + Pod mansardabil, amplasată pe o suprafață de teren de 379 mp, cu acces asfaltat și iluminat public. 
Proprietatea este situată în zona Bucium-Vișani, pe Strada Alexandru Macedonski nr. 40. 

Pentru mai multe detalii, nu ezitați să ne contactați la numărul: ???? 0757 669 325 – Lorian Gherasim

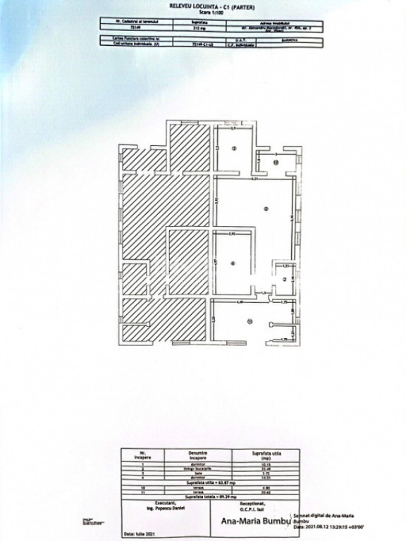
Imobilul este construit din cadre de beton, cu compartimentări din BCA și izolație exterioară din polistiren, pereți tencuiți la interior și tâmplărie PVC. Locuința are o suprafață utilă de 67 mp, iar suprafața totală este de 98 mp. Construcția a fost finalizată în anul 2018 și este compartimentată astfel:
- Parter: 2 dormitoare, 2 băi, living, bucătărie, terasă închisă, cameră tehnică.
- Pod: mansardabil, cu o suprafață utilă de 50 mp.
- Terenul are o suprafață totală de 379 mp, din care 279 mp reprezintă teren liber.
Imobilul este racordat la utilități: apă, gaze, electricitate și fosă septică, iar canalizarea se află la strada principală.

Proprietatea se vinde în stadiul actual – „la gri” în interior, cu instalațiile electrice trase, lăsând posibilitatea viitorului proprietar să personalizeze spațiile după propriul gust.

Locație: situată într-o zonă liniștită, aproape de mijloace de transport în comun care fac legătura cu orașul, cu acces facil, asfaltat și iluminat public, într-un cartier exclusiv de case.

Pentru mai multe detalii sau pentru a stabili o vizionare, contactați:
0757 669 325 – Lorian Gherasim

Comision 0%
Id intern: P8928

Solicită vizionarea proprietății

Alege o zi disponibilă

26 Aprilie
27 Aprilie
28 Aprilie
29 Aprilie

Alege un interval orar

8:00 - 12:00
12:00 - 15:00
15:00 - 18:00
18:00 - 21:00

Următoarele date de contact oferite de tine vor fi accesibile proprietarului:

Locație

Despre zona "Bucium"

păreri exprimate de 126 de utilizatori, pe o scară de la 1 la 10

Află clasamentul acestui cartier
Sănătate și Siguranță

Sănătate și Siguranță

6.9

Sănătate 6.1

Siguranță 7.7

Calitate aer 7.7

Curățenie 7.2

Zone verzi 6.0

Cultură și Educație

Cultură și Educație

5.8

Cultură 4.9

Educație 6.3

Sport 6.3

Ambianță și Lifestyle

Ambianță și Lifestyle

6.9

Nivel de trai 7.5

Magazine 5.9

Localuri 7.2

Parcări 6.3

Zgomot 7.6

Transport în comun

Transport în comun

6.0

Autobuz 7.2

Tramvai 4.9

Metrou 0.0

Contactează utilizatorul

ID: 4153787

Casă tip duplex de vânzare 380 MP teren, zona Vișani - IA

3 camere | 67 m² | Iasi / Iasi

90.000 €


Vezi și alte anunțuri imobiliare
Apartamente vânzare Iasi-is - Aeroport Case-vile vânzare Iasi-is - Aeroport Garsoniere vânzare Iasi-is - Aeroport Terenuri vânzare Iasi-is - Aeroport Apartamente vânzare Iasi-is - Aleea cu Ciresi Case-vile vânzare Iasi-is - Aleea cu Ciresi Garsoniere vânzare Iasi-is - Aleea cu Ciresi Terenuri vânzare Iasi-is - Aleea cu Ciresi Apartamente vânzare Iasi-is - Aleea Tudor Neculai Case-vile vânzare Iasi-is - Aleea Tudor Neculai Garsoniere vânzare Iasi-is - Aleea Tudor Neculai Terenuri vânzare Iasi-is - Aleea Tudor Neculai