Rareș Bucovineanu

Consultant imobiliar

Vânzare

4 camere | 125 m²

Casă INDIVIDUALĂ 4C Breazu-Iași COMISION 0%

Iasi / Iasi
235.000 €

Rată estimată

5.083 Lei/lună

Avans (15%)

175.193 lei

Perioada împrumutului

30 ani

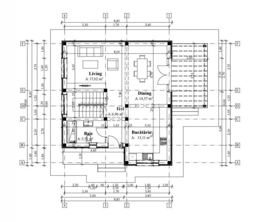
Specificații

Număr camere 4

Suprafața utilă 125 m²

Suprafață teren 437 m²

An finalizare construcție 2025

Stare proprietate Bună

Niveluri imobil 1

Număr Băi 2

Mobilat și Utilat Nemobilat

Comision cumpărător 0%

Numărul de locuri de parcare 2

Utilități Curent, Apă, Canalizare, Gaz

Tip tranzacție Vânzare

Tip vânzător Companie

Vă propun spre vânzare o casă spațioasă și bine compartimentată, situată în localitatea Rediu, Breazu , într-o zonă rezidențială liniștită cu iluminat stradal si acces rapid către oraș.
Imobilul dispune de 125 mp utili și este amplasat pe un teren de 424 mp, oferind confort, intimitate și posibilități multiple de amenajare.
Compartimentare:
Parter: living luminos cu bucătărie ce poate fi separată, baie si hol generos. 
Etaj: 3 dormitoare spațioase, baie, hol + pod
Exterior: 2 terase si 2 locuri de parcare betonate.
Dispune de planseu de beton, camere de supraveghere, porti electrice, scari din lemn masiv.
Pentru a va putea personaliza casa: parchetul, usile interioare si scarile se aleg de catre cumparator.
Proprietatea este intabulată, cu acte la zi, gata pentru vânzare și pentru a fi preluată imediat.
Este ideală pentru o familie care își dorește un cămin modern, bine organizat, într-o zonă în plină dezvoltare, aproape de toate facilitățile din Iași cu scoala la 500 m si statie transport public in comun la 200 m.
Comision 0%
Pentru mai multe detalii, vizionări sau alte variante vă așteptăm cu drag la numărul de telefon afișat
Id intern: P8599

Solicită vizionarea proprietății

Alege o zi disponibilă

02 Februarie
03 Februarie
04 Februarie
05 Februarie

Alege un interval orar

8:00 - 12:00
12:00 - 15:00
15:00 - 18:00
18:00 - 21:00

Următoarele date de contact oferite de tine vor fi accesibile proprietarului:

Locație

Despre zona "Popas Pacurari"

păreri exprimate de 33 de utilizatori, pe o scară de la 1 la 10

Află clasamentul acestui cartier
Sănătate și Siguranță

Sănătate și Siguranță

6.1

Sănătate 5.1

Siguranță 7.4

Calitate aer 6.5

Curățenie 6.2

Zone verzi 5.5

Cultură și Educație

Cultură și Educație

5.4

Cultură 5.1

Educație 5.8

Sport 5.3

Ambianță și Lifestyle

Ambianță și Lifestyle

6.7

Nivel de trai 7.4

Magazine 6.8

Localuri 6.5

Parcări 5.8

Zgomot 7.1

Transport în comun

Transport în comun

5.7

Autobuz 6.4

Tramvai 5.1

Metrou 0.0

Contactează utilizatorul

ID: 4120996

Casă INDIVIDUALĂ 4C Breazu-Iași COMISION 0%

4 camere | 125 m² | Iasi / Iasi

235.000 €


Vezi și alte anunțuri imobiliare
Apartamente vânzare Iasi-is - Aeroport Case-vile vânzare Iasi-is - Aeroport Garsoniere vânzare Iasi-is - Aeroport Terenuri vânzare Iasi-is - Aeroport Apartamente vânzare Iasi-is - Aleea cu Ciresi Case-vile vânzare Iasi-is - Aleea cu Ciresi Garsoniere vânzare Iasi-is - Aleea cu Ciresi Terenuri vânzare Iasi-is - Aleea cu Ciresi Apartamente vânzare Iasi-is - Aleea Tudor Neculai Case-vile vânzare Iasi-is - Aleea Tudor Neculai Garsoniere vânzare Iasi-is - Aleea Tudor Neculai Terenuri vânzare Iasi-is - Aleea Tudor Neculai