Ovidiu Stefan

Consultant imobiliar

Vânzare

4 camere | 125 m²

Casă individuală pe strada Sportului, Prejmer – Spaț...

Brasov / Prejmer
183.000 €

Rată estimată

3.959 Lei/lună

Avans (15%)

136.427 lei

Perioada împrumutului

30 ani

Specificații

Preț negociabil Nu

Nu include TVA Nu

Suprafața utilă 125 m²

Suprafață teren 608 m²

Număr camere 4

Niveluri imobil 12+

An finalizare construcție 2026

Număr Băi 3

Numărul de locuri de parcare 1

Ansamblu Rezidențial Nu

Posibilitate parcare Da

Mobilat și Utilat Nemobilat

Stare proprietate Bună

Utilități Curent, Apă, Canalizare, Gaz, Încălzire

Tip tranzacție Vânzare

Tip vânzător Companie

Vă propunem o oportunitate de locuire într-o zonă liniștită a localității Prejmer, cu termen de finalizare în cursul anului 2026. Această proprietate este ideală pentru cei care își doresc să facă tranziția de la aglomerația orașului către un mediu mai aerisit, beneficiind deja de conectarea la toate utilitățile (gaz, curent, apă și canalizare). Locuința a fost gândită pentru a oferi echilibrul necesar unei familii moderne, punând accent pe un teren generos de peste 600 mp și o compartimentare interioară eficientă, totul într-un cadru natural autentic.

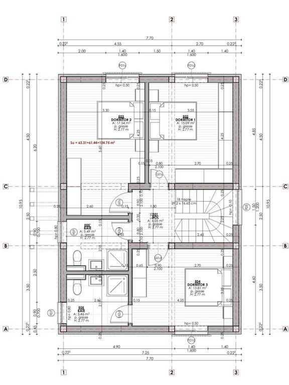
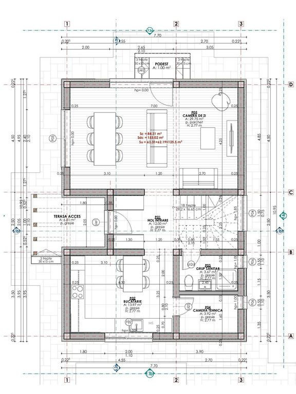
COMPARTIMENTARE
Parter: Zona de zi este organizată eficient și cuprinde o cameră de zi spațioasă, bucătărie separată, baie, hol, casa scării și o cameră tehnică pentru echipamentele casei.
Mansardă: Nivelul superior este dedicat odihnei și include un dormitor matrimonial dotat cu baie proprie, două dormitoare pentru copii cu acces la o a doua baie comună, hol și zona casei scării.

DATE TEHNICE & CONSTRUCȚIE
Configurație: 4 camere, bucătărie separată, 3 băi.
Suprafețe: 125 mp utili | 165 mp construiți desfășurați (amprentă la sol de 81 mp).
Teren: 608 mp cu o deschidere de 20 m la strada Sportului (drum pietruit).
Structură: Construcție din cărămidă cu învelitoare din țiglă, o soluție recunoscută pentru capacitatea de a menține o temperatură plăcută în mansardă.
An construcție: Proiect cu termen de finalizare estimat pentru anul 2026.

DOTĂRI ȘI EFICIENȚĂ
Confort Termic: Sistem de încălzire prin pardoseală la ambele niveluri, alimentat de o centrală termică pe gaz, asigurând un mediu cald și costuri optimizate de întreținere.
Izolație: Exteriorul este protejat cu vată bazaltică de 10 cm, material ales pentru performanțele sale de protecție împotriva focului și pentru izolarea fonică superioară.
Tâmplărie: Ferestre tripan (3 foi de sticlă) cu profil PVC, montate pentru a asigura o etanșare optimă și pierderi minime de energie.
Status Predare: Locuința se predă cu finisaje interioare (parchet, gresie, faianță), iar băile sunt dotate cu obiecte sanitare standard.

UTILITĂȚI ȘI ENERGII ALTERNATIVE
Proprietatea dispune de toate branșamentele necesare unei locuiri moderne: curent monofazic, gaz, apă curentă și canalizare. Infrastructura zonei este pregătită pentru conectarea la rețeaua de fibră optică pentru internet și televiziune.

LOCAȚIE & ACCESIBILITATE
Facilități: Supermarket Penny la aproximativ 700 m și școală gimnazială la 1,4 km.
Transport: Stația de autobuz (Colegiul Țara Bârsei) este situată la 700 m, oferind legături prin liniile 520 și 540 către cartierul Triaj și Gara Brașov.
Agrement: În proximitate se află diverse opțiuni pentru timpul liber, inclusiv centre de echitație, karting și zone de pescuit.

FORMA DE ACHIZIȚIE & COSTURI
Termen de finalizare: Decembrie 2026.
Modalități de plată: Sunt acceptate atât plata din surse proprii, cât și achiziția prin credit ipotecar.
Comision: 0% pentru cumpărător.
Note financiare: Prețul tranzacției include TVA în cotă de 21%.

Solicită vizionarea proprietății

Alege o zi disponibilă

24 Februarie
25 Februarie
26 Februarie
27 Februarie

Alege un interval orar

8:00 - 12:00
12:00 - 15:00
15:00 - 18:00
18:00 - 21:00

Următoarele date de contact oferite de tine vor fi accesibile proprietarului:

Locație

Contactează utilizatorul

ID: 4131943

Casă individuală pe strada Sportului, Prejmer – Spaț...

4 camere | 125 m² | Brasov / Prejmer

183.000 €