Ramona Urjuma

Consultant imobiliar

Vânzare

2 camere | 60 m²

Casa si teren, comuna Ceanu Mare, Jud Cluj

Cluj / Ceanu Mare
26.800 €

Rată estimată

580 Lei/lună

Avans (15%)

19.979 lei

Perioada împrumutului

30 ani

Specificații

Număr camere 2

Suprafața utilă 60 m²

Suprafață teren 1000 m²

An finalizare construcție 1980

Stare proprietate Bună

Niveluri imobil 12+

Număr Băi 3+

Posibilitate parcare Nu

Utilități Curent, Apă, Canalizare

Preț negociabil Nu

Ansamblu Rezidențial Nu

Tip tranzacție Vânzare

Tip vânzător Companie

Se vinde la licitatie!
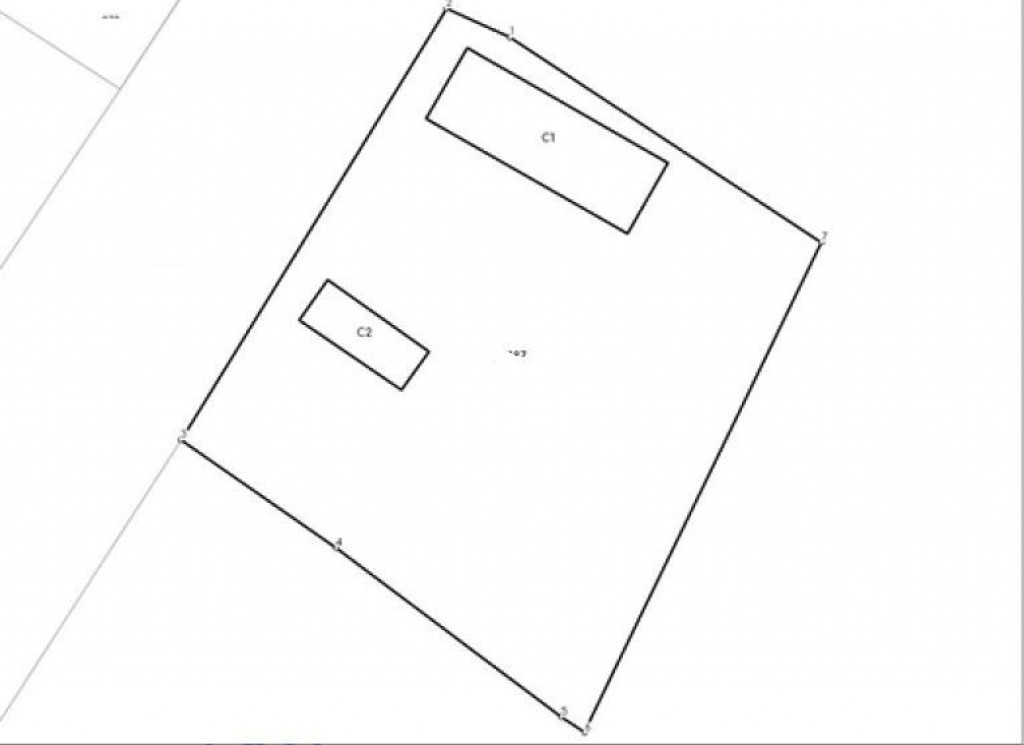
Proprietatea este situata in sat Boian din comuna Ceanu Mare si este formata dintr-un teren in suprafata de 1000 mp pe care sunt edificate doua constructii.
S.construita la sol: 77mp; Casa familiala compusa din 2 camere, bucatarie si antreu;
S.construita la sol: 24 mp;
Anexe gospodaresti constand in sura si poiata;
Tip drum de acces: strada asfaltataVecinatati: case, terenuri intravilane/extravilane

Solicită vizionarea proprietății

Alege o zi disponibilă

05 Februarie
06 Februarie
07 Februarie
08 Februarie

Alege un interval orar

8:00 - 12:00
12:00 - 15:00
15:00 - 18:00
18:00 - 21:00

Următoarele date de contact oferite de tine vor fi accesibile proprietarului:

Locație

Contactează utilizatorul

ID: 4110115

Casa si teren, comuna Ceanu Mare, Jud Cluj

2 camere | 60 m² | Cluj / Ceanu Mare

26.800 €