Loredana

Consultant imobiliar

Vânzare

5 camere | 110 m²

Casa tip Duplez,zona Centura Sud

Cluj / Floresti
210.000 €

Rată estimată

4.601 Lei/lună

Avans (15%)

156.555 lei

Perioada împrumutului

30 ani

Specificații

Număr camere 5

Suprafața utilă 110 m²

Suprafață teren 200 m²

An finalizare construcție 2025

Stare proprietate Nouă

Număr Băi 3

Posibilitate parcare Da

Numărul de locuri de parcare 2

Utilități Curent, Apă, Canalizare, Gaz

Tip tranzacție Vânzare

Tip vânzător Companie

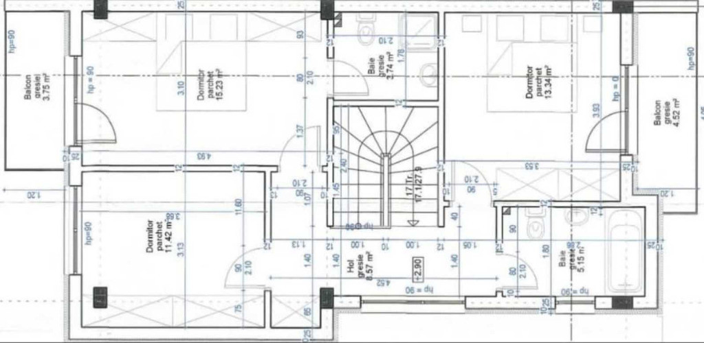
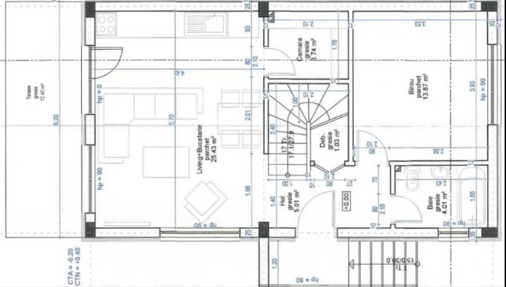
Vă propunem spre vânzare o casă tip duplex situată într-o zonă deosebit de liniștită și verde din localitatea Florești, în apropierea zonei Magnoliei și la doar câteva minute de centrul comercial VIVO, cu acces facil și rapid spre Cluj-Napoca. Imobilul face parte dintr-o construcție nouă, realizată cu materiale de calitate, fiind ideal pentru o familie care își dorește confort, intimitate și acces facil la toate punctele de interes. Casa are o suprafață utilă de 110 mp și este amplasată pe un teren de 200 mp, oferind un echilibru perfect între spațiul interior generos și curtea proprie, care poate fi amenajată ca grădină sau zonă de relaxare. Locuința este dispusă pe două niveluri: la parter se regăsesc holul de intrare, un living spațios, bucătăria separată cu cămară, precum și o baie cu geam pentru lumină naturală și ventilație. Etajul este compartimentat eficient și cuprinde trei dormitoare, dintre care unul matrimonial cu baie proprie, o baie comună și două balcoane ce oferă priveliști spre împrejurimile verzi ale zonei. Accesul auto în curte, terasa amenajabilă, grădina și liniștea cartierului contribuie la un stil de viață relaxat, departe de agitația urbană, dar totodată foarte bine conectat la oraș. Apropierea de stația de autobuz asigură o legătură rapidă și convenabilă cu Cluj-Napoca, fiind o opțiune excelentă și pentru cei care fac naveta zilnic. Construită pe fundație de beton, cu zidărie din cărămidă, acoperiș din tablă și izolație exterioară, casa beneficiază de finisaje moderne și dotări esențiale precum centrală proprie, ferestre termopan cu profil PVC și ușă de intrare din PVC. Aceasta este o oportunitate excelentă pentru cei care caută un cămin într-o zonă aerisită, aproape de natură, dar cu acces facil la toate facilitățile urbane. Pentru mai multe detalii sau vizionări, vă așteptăm cu drag la sediul EDIL Florești, pe Str. Eroilor, Nr. 25, Ap. 15 (et. 1), sau ne puteți contacta telefonic.id:246789

Solicită vizionarea proprietății

Alege o zi disponibilă

27 Decembrie
28 Decembrie
29 Decembrie
30 Decembrie

Alege un interval orar

8:00 - 12:00
12:00 - 15:00
15:00 - 18:00
18:00 - 21:00

Următoarele date de contact oferite de tine vor fi accesibile proprietarului:

Locație

Contactează utilizatorul

ID: 4068714

Casa tip Duplez,zona Centura Sud

5 camere | 110 m² | Cluj / Floresti

210.000 €