Andrei Huțanu

Consultant imobiliar

Vânzare

3 camere | 80 m²

DUPLEX 3 CAMERE, 2 BAI, 250 MP TEREN, VOROVESTI-MIROSLAVA

Iasi / Iasi
107.500 €

Rată estimată

2.315 Lei/lună

Avans (15%)

80.141 lei

Perioada împrumutului

30 ani

Specificații

Număr camere 3

Suprafața utilă 80 m²

An finalizare construcție 2026

Niveluri imobil 1

Suprafață teren 250 m²

Număr Băi 2

Numărul de locuri de parcare 2

Comision cumpărător 3%

Nu include TVA Da

Stare proprietate În construcție

Utilități Curent, Apă, Canalizare, Gaz

Tip tranzacție Vânzare

Tip vânzător Companie

INVEST IMOBILIARE va propune spre vanzare un duplex cu 3 camere situatat in zona VOROVESTI-MIROSLAVA .

Imobilul are o suprafata utila de 80 mp si este situat pe un teren aferent de 250 mp .

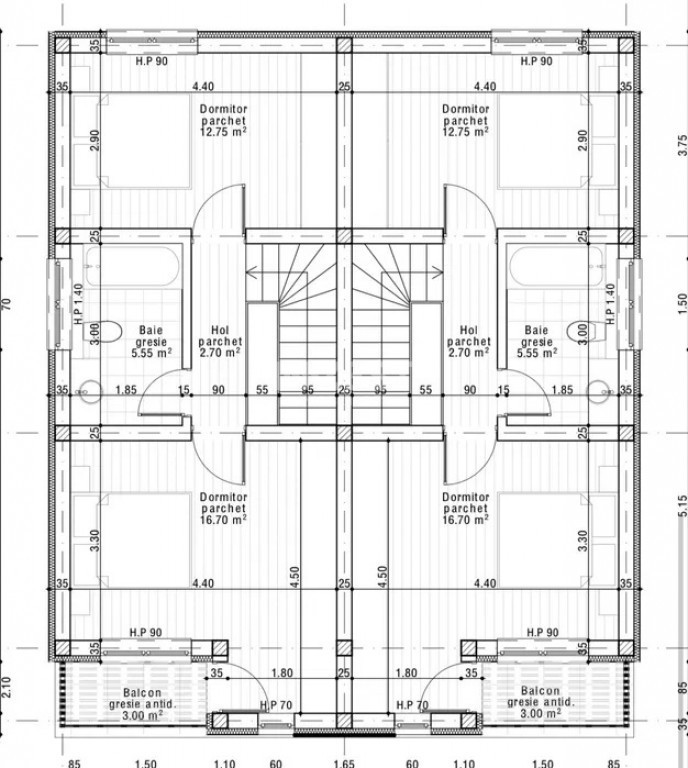
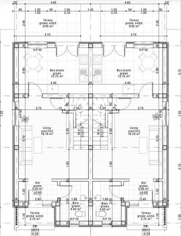
Compartimentarea este urmatoarea :
*PARTER:
-Baie - 4.5 mp
-Living - 19 mp
-Bucatarie - 13 mp
-Hol - 3 mp
-Terasa acoperită intrare - 3 mp
-Terasă neacoperită - 10 mp
* ETAJ:
-Dormitor 1 - 17 mp
-Dormitor 3 - 13 mp
-Hol - 3 mp
-Baie - 6mp

Structura constructiei este integral din beton si zidarie de caramida portanta.  La pretul afisat se adauga si TVA .
Imobilul momentan este in constructie, cu termen de predare luna aprilie 2026 iar momentan exista posibilitatea de alegere a finisajelor .


Pentru detalii complete și programarea unei vizionări, contactează-mă telefonic chiar acum!

Andrei Hutanu
???? 0743 657 754

Id intern: P8937

Solicită vizionarea proprietății

Alege o zi disponibilă

19 Aprilie
20 Aprilie
21 Aprilie
22 Aprilie

Alege un interval orar

8:00 - 12:00
12:00 - 15:00
15:00 - 18:00
18:00 - 21:00

Următoarele date de contact oferite de tine vor fi accesibile proprietarului:

Locație

Despre zona "Miroslava"

păreri exprimate de 71 de utilizatori, pe o scară de la 1 la 10

Află clasamentul acestui cartier
Sănătate și Siguranță

Sănătate și Siguranță

6.5

Sănătate 5.7

Siguranță 7.4

Calitate aer 7.3

Curățenie 6.8

Zone verzi 5.5

Cultură și Educație

Cultură și Educație

5.8

Cultură 5.1

Educație 6.1

Sport 6.2

Ambianță și Lifestyle

Ambianță și Lifestyle

6.4

Nivel de trai 6.7

Magazine 6.3

Localuri 5.7

Parcări 6.2

Zgomot 7.3

Transport în comun

Transport în comun

5.9

Autobuz 6.6

Tramvai 5.2

Metrou 0.0

Contactează utilizatorul

ID: 4151438

DUPLEX 3 CAMERE, 2 BAI, 250 MP TEREN, VOROVESTI-MIROSLAVA

3 camere | 80 m² | Iasi / Iasi

107.500 €


Vezi și alte anunțuri imobiliare
Apartamente vânzare Iasi-is - Aeroport Case-vile vânzare Iasi-is - Aeroport Garsoniere vânzare Iasi-is - Aeroport Terenuri vânzare Iasi-is - Aeroport Apartamente vânzare Iasi-is - Aleea cu Ciresi Case-vile vânzare Iasi-is - Aleea cu Ciresi Garsoniere vânzare Iasi-is - Aleea cu Ciresi Terenuri vânzare Iasi-is - Aleea cu Ciresi Apartamente vânzare Iasi-is - Aleea Tudor Neculai Case-vile vânzare Iasi-is - Aleea Tudor Neculai Garsoniere vânzare Iasi-is - Aleea Tudor Neculai Terenuri vânzare Iasi-is - Aleea Tudor Neculai