BLITZ Romania

Consultant imobiliar

Vânzare

4 camere | 120 m²

Duplexuri 4 camere, 120 mp, 90 mp teren, zona Lidl

Cluj / Floresti
200.000 €

Rată estimată

4.382 Lei/lună

Avans (15%)

149.100 lei

Perioada împrumutului

30 ani

Specificații

Număr camere 4

Suprafața utilă 120 m²

An finalizare construcție 2022

Niveluri imobil 1

Suprafață teren 150 m²

Număr Băi 3

Numărul de locuri de parcare 2

Stare proprietate Nouă

Mobilat și Utilat Nemobilat

Tip tranzacție Vânzare

Tip vânzător Companie

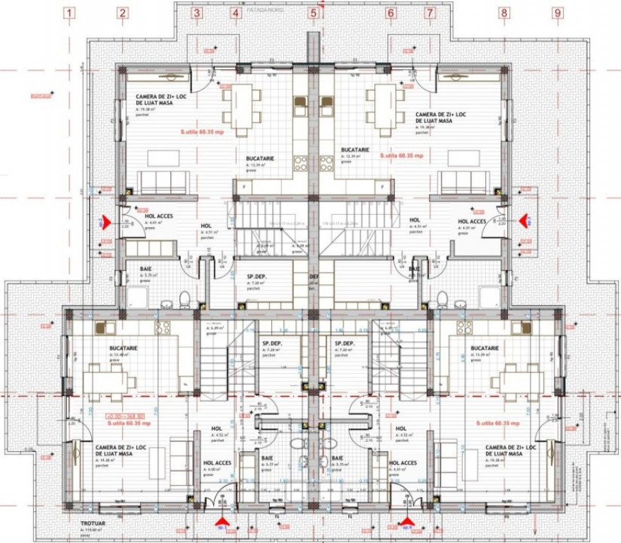
Blitz vinde duplex cu 4 camere, situat intr-un complex de 12 unitati locative cu acces privat doar pentru locatari. 

Duplexul are constructia din caramida de 25 cm, cu acoperis de beton si tabla , cu un regim de inaltime P+1E. Suprafata utila este de 120 mp, iar suprafata aferenta de teren varieaza intre 90 si 150 mp , cu un front stradal de 12 ml. 

Compartimentarea se prezinta astfel: -parter: hol acces , baie, spatiu depozitare, spatiu depozitare, bucatarie + camera de zi. Etaj: hol, 3 dormitoare , doua bai, dressing si balcon . Se vinde la stadiul de semifinisat, cu sapa autonivelanta si instalatii trase la pozitie, incalzire in pardoseala parter si etaj, peretii gletuiti, centrala termica si geamuri termopan cu 3 randuri de sticla si profil de 6 camere. Duplexul este cu rost de dilatatie. Intre cele doua unitati locative este un strat de 10 cm de polistiren. 
Duplexul dispune de doua locuri de parcare amenajate. Complexul beneficiaza de drum de servitute de 7 mp latime care va fi amenajat. 

Terenul este delimitat si imprejmuit. 

De remarcat pozitionarea foarte buna, calitatea de executie si a materialelor de constructie. 

!!! Pretul include TVA !!!

Cod ofertă / ID BLITZ: P3008
Id intern: P3008

Solicită vizionarea proprietății

Alege o zi disponibilă

31 Decembrie
01 Ianuarie
02 Ianuarie
03 Ianuarie

Alege un interval orar

8:00 - 12:00
12:00 - 15:00
15:00 - 18:00
18:00 - 21:00

Următoarele date de contact oferite de tine vor fi accesibile proprietarului:

Locație

Contactează utilizatorul

ID: 3627608

Duplexuri 4 camere, 120 mp, 90 mp teren, zona Lidl

4 camere | 120 m² | Cluj / Floresti

200.000 €