Alexandra Serban

Consultant imobiliar

Vânzare

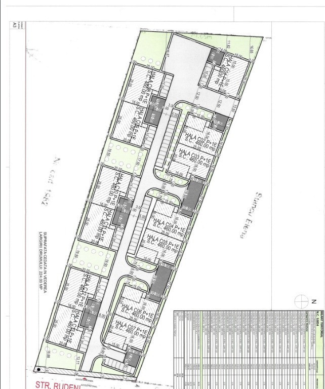
OPORTUNITATE!! TEREN IN CURS DE AUTORIZARE PARC INDUSTRIAL 13 HALE!!

Bucuresti-Ilfov / Chitila
2.087.500 €

Rată estimată

45.737 Lei/lună

Avans (15%)

1.556.231 lei

Perioada împrumutului

30 ani

Specificații

Suprafață teren 16700 m²

Tip teren Construibil

Clasificare teren Intravilan

Comision cumpărător 0%

Preț negociabil Da

Nu include TVA Da

Utilități Curent, Apă, Canalizare, Gaz

Tip tranzacție Vânzare

Tip vânzător Companie

Teren 16.700 mp Centură, în curs de autorizare

Sunteți în căutarea unei noi oportunități imobiliare pentru investițiile dumneavoastră? Vă invităm să descoperiți un teren ideal, în suprafață de 16.700 mp, pentru dezvoltarea unui parc logistic/ industrial extins în imediata apropiere a Șoselei de Centură – Chitila. 
Terenul beneficiază de multiple puncte forte, printre care:
•	Toate utilitățile pregătite pentru racordare, la limita de proprietate a terenului;
•	Racordare la apă și canalizare, previzionată a fi implementată în viitorul apropiat;
•	Locație strategică: amplasat în imediată apropiere de zona de descărcare a viitorului Drum radial 3 - Giulești Expres, dintre București și Chitila, cu legatură directă până în A0;
•	Terenul se află într-o zonă în plină dezvoltare, unde drumul va fi lărgit la două benzi pe sens;
•	Terenul beneficiază de Certificat de urbanism și este în curs de autorizare pentru dezvoltarea unui parc logistic de 13 hale;
•	Ideal pentru activități industriale, producție și/ sau logistice;
•	Tranzacție direct de la proprietar, fără comisioane suplimentare;
•	Front stradal - 67 metri liniari, lotul se lărgește spre spatele terenului până la 79,65 metri liniari;
•	Indici urbanistici: POT - 60%.

Prețul suportă taxare inversă la achiziționarea de către persoane juridice, respectiv se adaugă T.V.A. pentru persoane fizice.

Vecinătăți:
Șos. de Centură – 1 min.
A1 – București – Pitești – 8 min.
D.N. 1 – 9 min.
A3 – București – Ploiești – 16 min.

Solicită vizionarea proprietății

Alege o zi disponibilă

27 Decembrie
28 Decembrie
29 Decembrie
30 Decembrie

Alege un interval orar

8:00 - 12:00
12:00 - 15:00
15:00 - 18:00
18:00 - 21:00

Următoarele date de contact oferite de tine vor fi accesibile proprietarului:

Locație

Contactează utilizatorul

ID: 3875663

OPORTUNITATE!! TEREN IN CURS DE AUTORIZARE PARC INDUSTRIAL 13 HALE!!

Bucuresti-Ilfov / Chitila

2.087.500 €