Madalin Datu

Consultant imobiliar

Vânzare

2 camere | 60 m²

Parcul Herastrau-Nicolae Caranfil

Bucuresti-Ilfov / Bucuresti
310.000 €

Rată estimată

6.706 Lei/lună

Avans (15%)

231.105 lei

Perioada împrumutului

30 ani

Specificații

Preț negociabil Nu

Suprafața utilă 60 m²

Număr camere 2

Tip imobil Bloc apartamente

Compartimentare Semidecomandat

Număr Băi 1

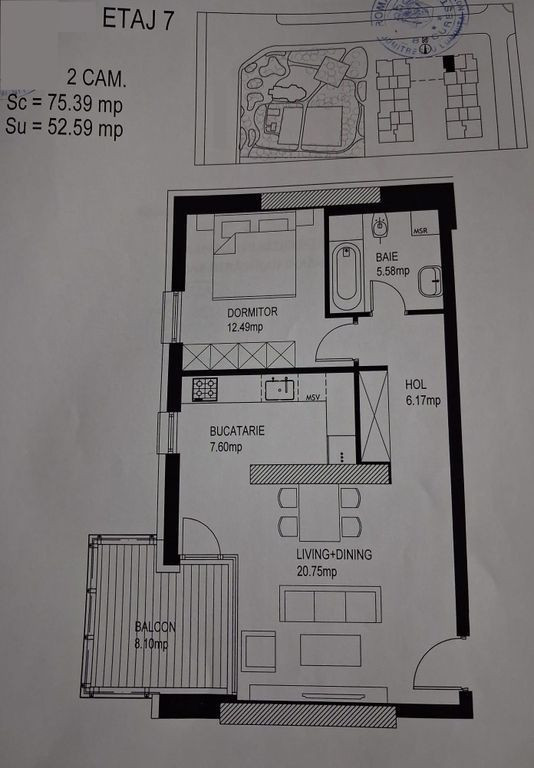
Etaj 7

Niveluri imobil 12+

An finalizare construcție 2024

Confort 1

Ansamblu Rezidențial Nu

Posibilitate parcare Nu

Stare proprietate Nouă

Tip tranzacție Vânzare

Tip vânzător Companie

Imobiliar Expert Grup va propune spre vanzare un apartament cu 2 camere, amplasat la etajul 7 al unui bloc construit in anul 2024.Apartamentul are 60 mp,terasa de 10mp,incalzire in pardoseala,fatada ventilata,este mobilat si utilat cu produse de foarte buna calitate.
 Apartamentul face parte dintr-un  ansamblu imobiliar de lux, care dispunde de lobby cu zona de aseptare pentru oaspeti, lifturi spectaculoase precum si cafenele si restaurante la parterul complexului si sala de fitness.
Proprietatea beneficiaza de loc de parcare si boxa.

Solicită vizionarea proprietății

Alege o zi disponibilă

12 Februarie
13 Februarie
14 Februarie
15 Februarie

Alege un interval orar

8:00 - 12:00
12:00 - 15:00
15:00 - 18:00
18:00 - 21:00

Următoarele date de contact oferite de tine vor fi accesibile proprietarului:

Locație

Despre zona "Herastrau"

păreri exprimate de 5 de utilizatori, pe o scară de la 1 la 10

Află clasamentul acestui cartier
Sănătate și Siguranță

Sănătate și Siguranță

7.6

Sănătate 8.0

Siguranță 7.5

Calitate aer 7.0

Curățenie 6.5

Zone verzi 9.0

Cultură și Educație

Cultură și Educație

7.4

Cultură 7.5

Educație 7.5

Sport 7.3

Ambianță și Lifestyle

Ambianță și Lifestyle

6.8

Nivel de trai 6.5

Magazine 6.3

Localuri 7.5

Parcări 6.0

Zgomot 7.5

Transport în comun

Transport în comun

6.2

Autobuz 6.5

Tramvai 5.5

Metrou 6.5

Contactează utilizatorul

ID: 4127349

Parcul Herastrau-Nicolae Caranfil

2 camere | 60 m² | Bucuresti-Ilfov / Bucuresti

310.000 €