Vânzări
Închirieri
Vânzare Apartament 5 camere, Matei Voievod

Penthouse 5 Camere - 325 m.p. | Parcare | Zona Matei Voievod

800.000 eur
ID 4075841
Apartamente | 223 m² | 5 camere
Bucuresti, Bucuresti-Ilfov / Matei Voievod
Număr camere 5
Suprafața utilă 223 m²
Compartimentare Decomandat
Confort 1
Etaj 5
An finalizare construcție 2010
Tip imobil Bloc de apartamente
Stare proprietate Bună
Număr niveluri imobil 6
Număr Băi 4
Mobilat/Utilat Nemobilat

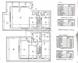
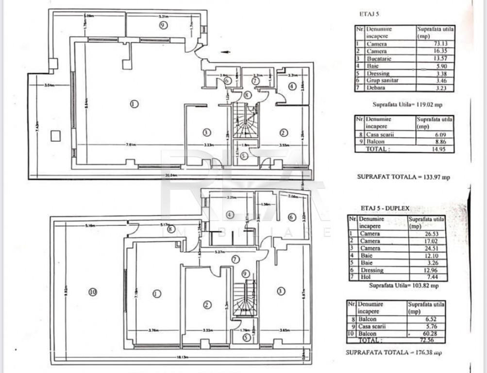
R.E.A. Imobiliare va ofera spre vanzare un penthouse pe doua niveluri cu 5 camere, situat in zona Matei Voievod, pe str. Agricultori.
Imobilul se afla intr-un bloc de apartamente, construit in anul 2010, la etajele 5 și 6/6 si detine o suprafata totala de 325 m.p, din care suprafata utila este 233 m.p, 3 balcoane in suprafata de 27 m.p. si doua terase de 83 m.p, iar diferenta pana la suprafata totala este reprezentata de casa scarii.
Locuinta este alcatuita din 3 dormitoare, doua livinguri, o bucatarie, 4 băi, două holuri, doua terase și 3 balcoane.
La cerere, se pot achizitiona locuri de parcare situate la subteran, acestea sunt disponibile in sistem klaus ( 25.000 € pentru locul inferior si 30.000 € pentru locul superior ), precum si un loc de parcare individual , la pretul de 50.000 €.

Confortul termic este realizat cu ajutorul centralei proprii pe gaz.
In imediata apropiere se intalnesc puncte farmaceutice, medicale, comerciale, educationale, de divertisment, bancare, parcuri, piete etc.
Accesul la mijloacele de transport in comun facil: 6-7 minute pana la statia de metrou/autobuz/tramvai.

Se accepta toate modalitatile de plata.
Informatiile tehnice au caracter orientativ, acestea fiind preluate de la proprietari.
Pentru mai multe detalii si vizionari, ne puteti contacta telefonic, specificand codul de identificare P9030.
Id intern: P9030

Solicită vizionarea proprietății

Penthouse 5 Camere - 325 m.p. | Parcare | Zona Matei Voievod

Vizionare
Alege o dată disponibilă:
Marți
24 Martie
Miercuri
25 Martie
Joi
26 Martie
Vineri
27 Martie
Anulează
success
Solicitarea ta a fost trimisă cu succes!
Vei fi contactat de către proprietar în cel mai scurt timp posibil.
Contactează utilizatorul
Penthouse 5 Camere - 325 m.p. | Parcare | Zona Matei Voievod
Emanuel Lapadatu Consultant imobiliar Rea Imobiliare
07xx - AFIŞEAZĂ
ID 4075841
Anunțuri similare
Număr de telefon verificat
460.000 eur Hala industriala, pretabila, fabrica, productie, service aut
Producţie/servicii  •  421 m²  •  1 încăpere  •  parcare
Construcţie nouă
Domnesti, IF, Central
17 mar.
Distribuie anunțul Adaugă la favorite
Număr de telefon verificat
550.000 eur Hala industriala, pretabila, fabrica, productie, service aut
Producţie/servicii  •  592 m²  •  1 încăpere  •  parcare
Construcţie nouă
Domnesti, IF, Central
15 mar.
Distribuie anunțul Adaugă la favorite
Număr de telefon verificat
480.000 eur Depozit/hala/spatiu industrial Domnesti - Centura, Ilfov
Producţie/servicii  •  485 m²  •  3 încăperi
Construcţie nouă
Domnesti, IF, Central
20 mar.
Distribuie anunțul Adaugă la favorite
Număr de telefon verificat
960.000 eur Depozit/hala/spatiu industrial Domnesti - Centura, Ilfov
Producţie/servicii  •  970 m²  •  6 încăperi
Construcţie nouă
Domnesti, IF, Central
20 mar.
Distribuie anunțul Adaugă la favorite
Vrei sa vinzi simplu si rapid?
Termenii și condițiile de pe site au fost actualizate. Detaliile complete sunt disponibile aici