Marina Gavrilă

Consultant imobiliar

Vânzare

300 m²

Pretabil Clinica, AfterSchool, Productie, Show-Room

Brasov / Brasov
250.000 €

Rată estimată

5.477 Lei/lună

Avans (15%)

186.375 lei

Perioada împrumutului

30 ani

Specificații

Preț negociabil Nu

Tip imobil Alte tipuri

Suprafața utilă 300 m²

Suprafață totală 500 m

An finalizare construcție 1995

Vitrină 4_0 m

Număr încăperi 10

Înălțime spațiu 2_7 m

Posibilitate parcare Nu

Stadiu construcție Finalizat

Tip tranzacție Vânzare

Tip vânzător Companie

Casa si Atelier cu  regim de inaltime P+1E; 

LOCALIZARE:
Proprietatea este pozitionata in zona Bartolomeu, in imediata apropiere a Cimitirului Municipal.

COMPARTIMENTARE:
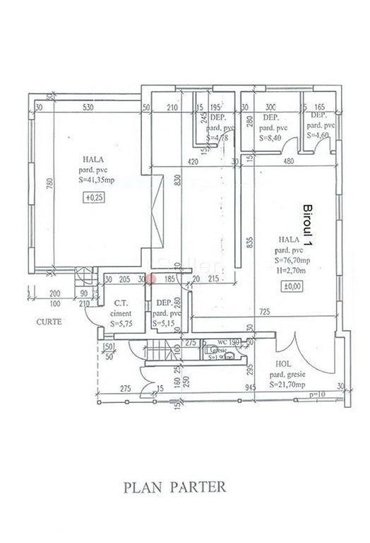
Parterul este compartimentat in 2 Ateliere de lucru in suprafete de 76.7 mp respectiv 41.35 mp, 5 spatii de depozitare si hol cu casa scarii;
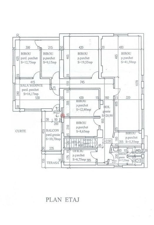
Etajul este impartit in 6 birouri, sala de conferinte, bucatarie, 2 wc, un spatiu de depozitare si un balcon inchis cu o terasa deschisa.

DESTINATIE:
- Productie;
- Depozitare;
- Show-Room;
- Gradinita/Scoala privata;
- Clinica

INALTIME: 2.4 - 2.7 m;

DOTARI:
- curent 380 V, 
- conectata la toate utilitatile;

IMPREJURIMI:
Imobilul este situat intr-o zona de vile.

ATRACTII ZONA: Magazine, restaurante, parcuri, școli.
ACCESIBILITATE: Transport public în apropiere.
FORMA ACHIZITIONARE: Se accepta plata prin accesare credit.

NOTA:
Comision Intermediere 2%+ TVA;
Informatiile prezentate reflecta situatia reala a proprietatii, fara a constitui o oferta contractuala.
Aceste date au fost obtinute verbal, de la titularul de drept al imobilului.

Structura acestei prezentari nu poate fi reprodusa, fara acordul scris al The Seller and Partners.

Solicită vizionarea proprietății

Alege o zi disponibilă

28 Decembrie
29 Decembrie
30 Decembrie
31 Decembrie

Alege un interval orar

8:00 - 12:00
12:00 - 15:00
15:00 - 18:00
18:00 - 21:00

Următoarele date de contact oferite de tine vor fi accesibile proprietarului:

Locație

Despre zona "Bartolomeu"

păreri exprimate de 301 de utilizatori, pe o scară de la 1 la 10

Află clasamentul acestui cartier
Sănătate și Siguranță

Sănătate și Siguranță

7.0

Sănătate 6.6

Siguranță 7.3

Calitate aer 7.0

Curățenie 7.2

Zone verzi 6.8

Cultură și Educație

Cultură și Educație

6.3

Cultură 5.9

Educație 7.2

Sport 6.0

Ambianță și Lifestyle

Ambianță și Lifestyle

6.8

Nivel de trai 6.9

Magazine 7.3

Localuri 6.4

Parcări 6.5

Zgomot 7.1

Transport în comun

Transport în comun

7.5

Autobuz 7.5

Tramvai 0.0

Metrou 0.0

Contactează utilizatorul

ID: 3952228

Pretabil Clinica, AfterSchool, Productie, Show-Room

300 m² | Brasov / Brasov

250.000 €


Vezi și alte anunțuri imobiliare
Apartamente vânzare Brasov-bv - 13 Decembrie Case-vile vânzare Brasov-bv - 13 Decembrie Garsoniere vânzare Brasov-bv - 13 Decembrie Terenuri vânzare Brasov-bv - 13 Decembrie Apartamente vânzare Brasov-bv - 15 Noiembrie Case-vile vânzare Brasov-bv - 15 Noiembrie Garsoniere vânzare Brasov-bv - 15 Noiembrie Terenuri vânzare Brasov-bv - 15 Noiembrie Apartamente vânzare Brasov-bv - Astra Case-vile vânzare Brasov-bv - Astra Garsoniere vânzare Brasov-bv - Astra Terenuri vânzare Brasov-bv - Astra