Marina Gavrilă

Consultant imobiliar

Vânzare

106 m²

Pretabil Spatiu de Birouri

Brasov / Brasov
185.000 €

Rată estimată

4.053 Lei/lună

Avans (15%)

137.918 lei

Perioada împrumutului

30 ani

Specificații

Preț negociabil Nu

Nu include TVA Da

Tip imobil Alte tipuri

Suprafața utilă 106 m²

Suprafață totală 125 m

An finalizare construcție 2024

Vitrină 10_0 m

Numărul de locuri de parcare 1

Număr încăperi 1

Posibilitate parcare Da

Stadiu construcție Finalizat

Tip tranzacție Vânzare

Tip vânzător Companie

LOCALIZARE:
Proprietatea este pozitionata in zona Tractorul, in imediata apropiere a Coresi Shopping Resort.

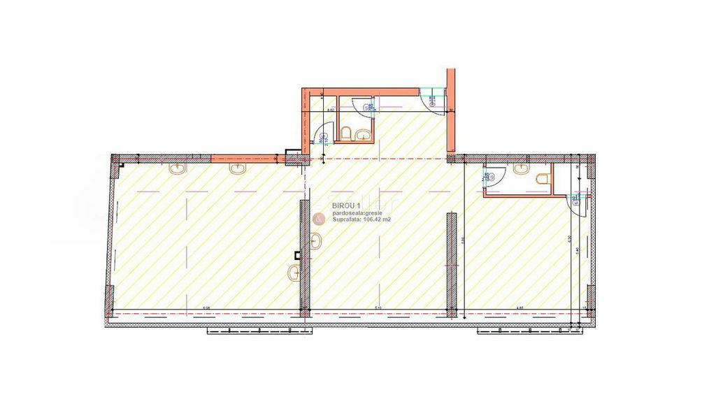
COMPARTIMENTARE:
Suprafata utila a spatiului este de 106.42 mp si este compartimentata openspace.

DESTINATIE:
-Birouri
- Clinica

DOTARI:
- instalatii electrice si sanitare;
- tamplarie pvc cu geam termopan;
- usa metalica;

IMPREJURIMI:
Imobilul este situat intr-o bloc rezidential cu spatii comerciale.

ATRACTII ZONA: Magazine, restaurante, parcuri, școli.
ACCESIBILITATE: Transport public în apropiere.
OBSERVATII: Imobil in curs de intabulare;

NOTA:
Comision Intermediere 2%+ TVA;
Informatiile prezentate reflecta situatia reala a proprietatii, fara a constitui o oferta contractuala.
Aceste date au fost obtinute verbal, de la titularul de drept al imobilului.

Structura acestei prezentari nu poate fi reprodusa, fara acordul scris al The Seller and Partners.

Solicită vizionarea proprietății

Alege o zi disponibilă

28 Decembrie
29 Decembrie
30 Decembrie
31 Decembrie

Alege un interval orar

8:00 - 12:00
12:00 - 15:00
15:00 - 18:00
18:00 - 21:00

Următoarele date de contact oferite de tine vor fi accesibile proprietarului:

Locație

Despre zona "Tractorul"

păreri exprimate de 271 de utilizatori, pe o scară de la 1 la 10

Află clasamentul acestui cartier
Sănătate și Siguranță

Sănătate și Siguranță

7.5

Sănătate 7.8

Siguranță 7.7

Calitate aer 7.1

Curățenie 7.3

Zone verzi 7.9

Cultură și Educație

Cultură și Educație

7.6

Cultură 7.0

Educație 8.0

Sport 7.7

Ambianță și Lifestyle

Ambianță și Lifestyle

7.3

Nivel de trai 7.3

Magazine 8.1

Localuri 7.2

Parcări 6.7

Zgomot 7.1

Transport în comun

Transport în comun

7.8

Autobuz 7.8

Tramvai 0.0

Metrou 0.0

Contactează utilizatorul

ID: 3952260

Pretabil Spatiu de Birouri

106 m² | Brasov / Brasov

185.000 €


Vezi și alte anunțuri imobiliare
Apartamente vânzare Brasov-bv - 13 Decembrie Case-vile vânzare Brasov-bv - 13 Decembrie Garsoniere vânzare Brasov-bv - 13 Decembrie Terenuri vânzare Brasov-bv - 13 Decembrie Apartamente vânzare Brasov-bv - 15 Noiembrie Case-vile vânzare Brasov-bv - 15 Noiembrie Garsoniere vânzare Brasov-bv - 15 Noiembrie Terenuri vânzare Brasov-bv - 15 Noiembrie Apartamente vânzare Brasov-bv - Astra Case-vile vânzare Brasov-bv - Astra Garsoniere vânzare Brasov-bv - Astra Terenuri vânzare Brasov-bv - Astra