BLITZ Romania

Consultant imobiliar

Vânzare

5 camere | 160 m²

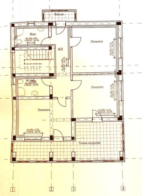
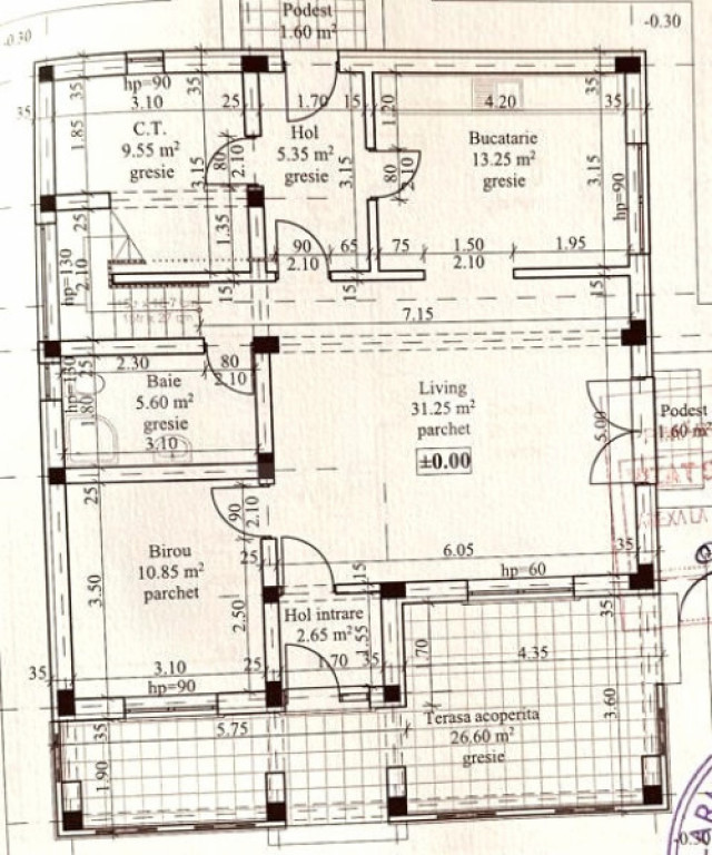
Proiect Casă + garaj în construcție – teren 553 mp, Hol

Iasi / Iasi
78.900 €

Rată estimată

1.729 Lei/lună

Avans (15%)

58.820 lei

Perioada împrumutului

30 ani

Specificații

Număr camere 5

Suprafața utilă 160 m²

An finalizare construcție 2025

Niveluri imobil 1

Suprafață teren 550 m²

Număr Băi 2

Stare proprietate În construcție

Mobilat și Utilat Nemobilat

Utilități Curent, Apă, Canalizare, Gaz

Tip tranzacție Vânzare

Tip vânzător Companie

Blitz va prezinta o casă (faza proiect) + garaj în construcție – teren 553 mp, Holboca
Se vinde proiect de casă și garaj, aflat în stadiu de construcție, situat pe un teren de 553 mp în centrul comunei Holboca
✅ Detalii construcție și utilități:

Proiect de casă-160 mp utili și garaj aprobat, cu toate avizele necesare

Racord la canalizare și apă

Energie electrică racordată în regim de șantier

Acoperiș nou cu tablă Bilka

Gard de piatră, aproape finalizat

Garaj tencuit interior, conceput practic ca o a doua locuință (dispune de baie mică și bucătărie)

Grădină în curs de amenajare

???? Avantaje:

Locație centrală, acces facil la toate punctele de interes din Holboca

Construcție deja autorizată, cu avize obținute – nu mai este nevoie de alte aprobări

Investiție ideală pentru locuință permanentă sau casă de vacanță
Cod ofertă / ID BLITZ: P151561
Id intern: P151561

Solicită vizionarea proprietății

Alege o zi disponibilă

09 Decembrie
10 Decembrie
11 Decembrie
12 Decembrie

Alege un interval orar

8:00 - 12:00
12:00 - 15:00
15:00 - 18:00
18:00 - 21:00

Următoarele date de contact oferite de tine vor fi accesibile proprietarului:

Locație

Despre zona "Dancu"

păreri exprimate de 96 de utilizatori, pe o scară de la 1 la 10

Află clasamentul acestui cartier
Sănătate și Siguranță

Sănătate și Siguranță

6.3

Sănătate 6.5

Siguranță 6.9

Calitate aer 6.1

Curățenie 5.8

Zone verzi 6.6

Cultură și Educație

Cultură și Educație

5.7

Cultură 4.6

Educație 7.3

Sport 5.3

Ambianță și Lifestyle

Ambianță și Lifestyle

6.4

Nivel de trai 6.6

Magazine 6.9

Localuri 5.7

Parcări 6.3

Zgomot 6.8

Transport în comun

Transport în comun

7.1

Autobuz 6.6

Tramvai 7.6

Metrou 0.0

Contactează utilizatorul

ID: 4036655

Proiect Casă + garaj în construcție – teren 553 mp, Hol

5 camere | 160 m² | Iasi / Iasi

78.900 €


Vezi și alte anunțuri imobiliare
Apartamente vânzare Iasi-is - Aeroport Case-vile vânzare Iasi-is - Aeroport Garsoniere vânzare Iasi-is - Aeroport Terenuri vânzare Iasi-is - Aeroport Apartamente vânzare Iasi-is - Aleea cu Ciresi Case-vile vânzare Iasi-is - Aleea cu Ciresi Garsoniere vânzare Iasi-is - Aleea cu Ciresi Terenuri vânzare Iasi-is - Aleea cu Ciresi Apartamente vânzare Iasi-is - Aleea Tudor Neculai Case-vile vânzare Iasi-is - Aleea Tudor Neculai Garsoniere vânzare Iasi-is - Aleea Tudor Neculai Terenuri vânzare Iasi-is - Aleea Tudor Neculai