bianca

Consultant imobiliar

Vânzare

2 camere | 47 m²

Proiect NOU Apartament 2 camere Eroilor

Cluj / Floresti
89.500 €

Rată estimată

1.961 Lei/lună

Avans (15%)

66.722 lei

Perioada împrumutului

30 ani

Specificații

Număr camere 2

Suprafața utilă 47 m²

Compartimentare Semidecomandat

Confort 1

Etaj 3

An finalizare construcție 2025

Tip imobil Bloc apartamente

Stare proprietate Nouă

Niveluri imobil 3

Număr Băi 1

Mobilat și Utilat Nemobilat

Tip tranzacție Vânzare

Tip vânzător Companie

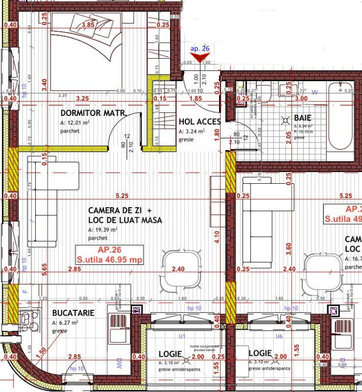
Nu ratați oferta noastră sub prețul pieței! EDIL Florești vă oferă un apartament situat într-o construcție nouă, la etajul 3 din 3, într-o zonă excelentă, aproape de centrul Floreștiului, în apropiere de zona Eroilor. Acesta dispune de o suprafață utilă de 47mp și este compus din 2 camere, fiind ideal pentru un cuplu sau o persoană singură. Apartamentul este confort 1 semidecomandat și este dotat cu centrală proprie, încălzire în pardoseală, faianță și gresie moderne, precum și parchet laminat de calitate. Compartimentarea acestuia include un hol de acces, un living generos cu bucătărie open space, un dormitor, o baie și un balcon tip logie. Printre facilități se numără și interfonul, iar apartamentul se predă complet finisat. Dacă această ofertă vă interesează sau doriți să aflați mai multe detalii despre alte oferte disponibile, nu ezitați să ne contactați telefonic sau să ne vizitați la sediul nostru din Str. Eroilor, Nr. 25, Ap. 15 (et. 1), Florești.
ID 246297

Solicită vizionarea proprietății

Alege o zi disponibilă

07 Decembrie
08 Decembrie
09 Decembrie
10 Decembrie

Alege un interval orar

8:00 - 12:00
12:00 - 15:00
15:00 - 18:00
18:00 - 21:00

Următoarele date de contact oferite de tine vor fi accesibile proprietarului:

Locație

Contactează utilizatorul

ID: 3942148

Proiect NOU Apartament 2 camere Eroilor

2 camere | 47 m² | Cluj / Floresti

89.500 €