Vlad Leah

Consultant imobiliar

Vânzare

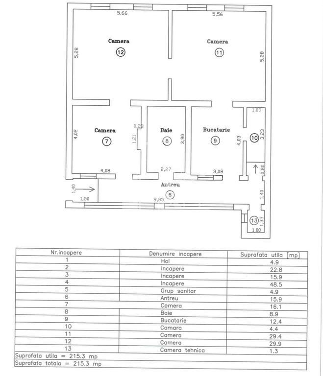
5 camere | 215 m²

SAD cu 3 camere + spatiu comercial la demisol,

Timis / Timisoara
420.000 €

Rată estimată

9.202 Lei/lună

Avans (15%)

313.110 lei

Perioada împrumutului

30 ani

Specificații

Preț negociabil Da

Suprafața utilă 215 m²

Suprafață teren 200 m²

Număr camere 5

Niveluri imobil 1

An finalizare construcție 1940

Număr Băi 3

Ansamblu Rezidențial Nu

Posibilitate parcare Nu

Stare proprietate Bună

Utilități Curent, Apă, Canalizare, Gaz, Încălzire

Tip tranzacție Vânzare

Tip vânzător Companie

APOSTU ESTATE va propune spre inchiriere o casa cu 3 camere in zona Semicentrala - Sinaia pretabila atat pentru locuit dar si pentru o afacere. Intreg imobilul este SAD. 

Suprafata utila este de 215 mp. + 200 mp curte.

Camerele sunt foarte spatioase si inalte iar compartimentarea se face astfel:

- 2 Dormitoare 

- Living

- 2 bai(una de serviciu)

- Bucatarie

Spatiu comercial la demisol cu intrare din strada are 2 incaperi + grup sanitar. 


Excelenta pentru afterschool, gradinita, salon etc. datorita pozitionarii la strada principala si spatiului generos. 


Confortul termic se realizeaza cu ajutorul centralei pe gaz. 

ID intern: 17017.

Solicită vizionarea proprietății

Alege o zi disponibilă

07 Decembrie
08 Decembrie
09 Decembrie
10 Decembrie

Alege un interval orar

8:00 - 12:00
12:00 - 15:00
15:00 - 18:00
18:00 - 21:00

Următoarele date de contact oferite de tine vor fi accesibile proprietarului:

Locație

Despre zona "Sinaia"

păreri exprimate de 13 de utilizatori, pe o scară de la 1 la 10

Află clasamentul acestui cartier
Sănătate și Siguranță

Sănătate și Siguranță

6.8

Sănătate 7.8

Siguranță 7.5

Calitate aer 6.0

Curățenie 6.9

Zone verzi 6.0

Cultură și Educație

Cultură și Educație

6.7

Cultură 7.1

Educație 7.3

Sport 5.7

Ambianță și Lifestyle

Ambianță și Lifestyle

6.9

Nivel de trai 7.1

Magazine 6.7

Localuri 6.7

Parcări 7.1

Zgomot 6.8

Transport în comun

Transport în comun

7.3

Autobuz 7.3

Tramvai 7.3

Metrou 0.0

Contactează utilizatorul

ID: 3954776

SAD cu 3 camere + spatiu comercial la demisol,

5 camere | 215 m² | Timis / Timisoara

420.000 €


Vezi și alte anunțuri imobiliare
Apartamente vânzare Timisoara-tm - Aeroport Case-vile vânzare Timisoara-tm - Aeroport Garsoniere vânzare Timisoara-tm - Aeroport Terenuri vânzare Timisoara-tm - Aeroport Apartamente vânzare Timisoara-tm - Aradului Case-vile vânzare Timisoara-tm - Aradului Garsoniere vânzare Timisoara-tm - Aradului Terenuri vânzare Timisoara-tm - Aradului Apartamente vânzare Timisoara-tm - Baba-Dochia Case-vile vânzare Timisoara-tm - Baba-Dochia Garsoniere vânzare Timisoara-tm - Baba-Dochia Terenuri vânzare Timisoara-tm - Baba-Dochia