MOȘ FLORIN

Consultant imobiliar

Vânzare

306 m²

Spațiu comercial 333 mp

Arad / Arad
420.000 €

Specificații

Suprafața utilă 306 m²

Suprafață totală 333 m

An finalizare construcție 2010

Tip imobil Alte tipuri

Stadiu construcție Finalizat

Înălțime spațiu 5_0 m

Număr încăperi 12

Acces Acces TIR

Posibilitate parcare Da

Numărul de locuri de parcare 10-20

Nu include TVA Da

Preț negociabil Nu

Tip tranzacție Vânzare

Tip vânzător Companie

Oferim spre vânzare un spațiu comercial în Parcul Industrial UTA2 ce se poate prelua cu chiriaș ce achită chirie 3000 eur/lună până în decembrie 2026.
Spațiu se poate preda liber de contractul de închiriere cel mai devreme în ianuarie 2027.

Parcul Industrial UTA2 este amplasat în partea de Nord a Municipiului Arad, cu acces direct din E68 (DN7, Centură Nord).

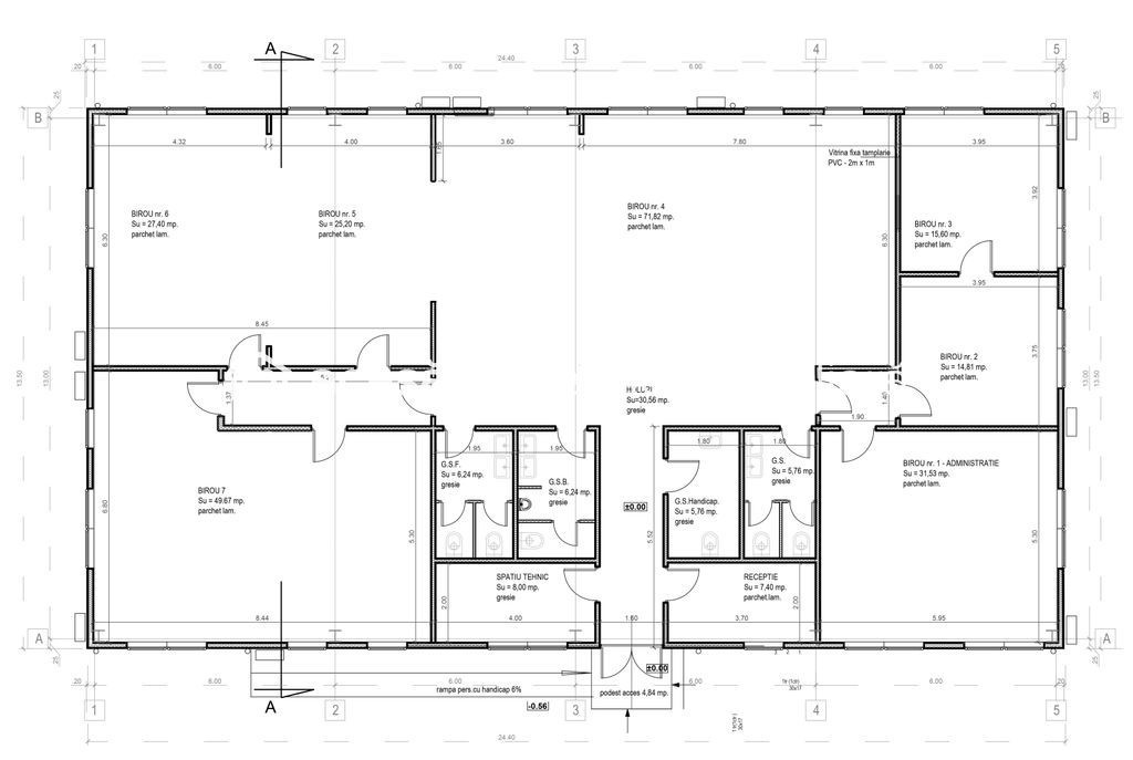
Imobilul este confecționat din panouri sandwich termoizolante și este compartimentat astfel:
– recepție
– 6 birouri
– 4 grupuri sanitare
– holuri
– spațiu tehnic


Suprafață construită: 333 mp
Suprafață teren: 2.561 mp

Prețul mai include și:
– 12 locuri de parcare (autoturisme)
– aprox 2.000 mp spațiu verde 
-  incintă împrejmuită

Caracteristicile de mai sus fac spațiul pretabil și pentru următoarele activități:
– birouri
– producție
– depozitare
– loc de joacă pentru copii

Important!
Proprietatea este scutită de impozite pe toată durata de existență a titlului de Parc industrial acordat conform ORDINULUI nr. 325 din 15 octombrie 2007.

Pentru detalii, apelați 0721356746. Florin Moș

Solicită vizionarea proprietății

Alege o zi disponibilă

27 Decembrie
28 Decembrie
29 Decembrie
30 Decembrie

Alege un interval orar

8:00 - 12:00
12:00 - 15:00
15:00 - 18:00
18:00 - 21:00

Următoarele date de contact oferite de tine vor fi accesibile proprietarului:

Locație

Contactează utilizatorul

ID: 2842362

Spațiu comercial 333 mp

306 m² | Arad / Arad

420.000 €


Vezi și alte anunțuri imobiliare
Apartamente vânzare Arad-ar - 3 Insule Case-vile vânzare Arad-ar - 3 Insule Garsoniere vânzare Arad-ar - 3 Insule Terenuri vânzare Arad-ar - 3 Insule Apartamente vânzare Arad-ar - 6 Vanatori Case-vile vânzare Arad-ar - 6 Vanatori Garsoniere vânzare Arad-ar - 6 Vanatori Terenuri vânzare Arad-ar - 6 Vanatori Apartamente vânzare Arad-ar - Alfa Case-vile vânzare Arad-ar - Alfa Garsoniere vânzare Arad-ar - Alfa Terenuri vânzare Arad-ar - Alfa