Petrut Bragea

Consultant imobiliar

Închiriere

50 m²

Spatiu de birouri | Vitan Center | Utilitati incluse | 46mp

Bucuresti-Ilfov / Bucuresti
900 €

Specificații

Suprafața utilă 50 m²

An finalizare construcție 2008

Comision cumpărător 0%

Nu include TVA Da

Tip imobil Bloc apartamente

Stadiu construcție Finalizat

Tip tranzacție Închiriere

Tip vânzător Companie

Cladirea de birouri Vitan Center se află în Piața Vitan, la doar 500m de Piața Alba Iulia și București Mall.

Accesul este facil din Calea Vitan și din Calea Dudești.

Cladirea dispune de fațadă vitrată, recepție, pază 24/24, supraveghere video, sistem antiincendiu, pardoseală flotantă, sistem de climatizare, , termopane Schuco și 3 lifturi.

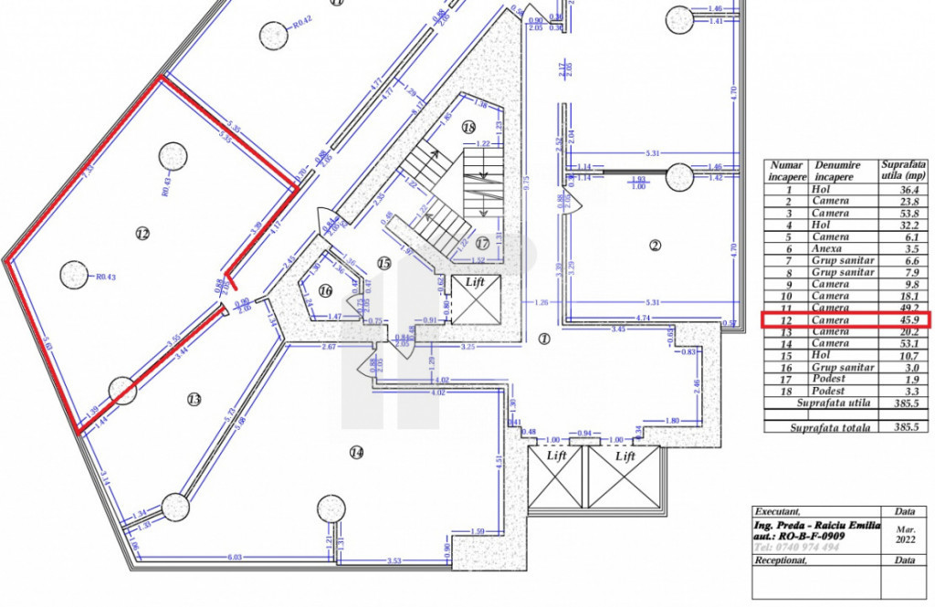
Spațiul de birouri se află la etajul 1, dispune de o cameră având suprafața utilă de 45.9 mp la care se adaugă spatiile comune (hol, grupuri sanitare). Spațiul are acces la doua grupuri sanitare comune.

În prețul chiriei sunt incluse: încălzirea și răcirea spațiului și a suprafețelor comune, apa, colectarea gunoiului, dezinsecția, deratizarea, curățenia, paza si recepția, excepție fiind doar curentul având un cost fix de 300 lei+tva.

Pretabil pentru orice tip de activitate de birou.

Id intern: PB20552

Solicită vizionarea proprietății

Alege o zi disponibilă

08 Aprilie
09 Aprilie
10 Aprilie
11 Aprilie

Alege un interval orar

8:00 - 12:00
12:00 - 15:00
15:00 - 18:00
18:00 - 21:00

Următoarele date de contact oferite de tine vor fi accesibile proprietarului:

Locație

Despre zona "Vitan"

păreri exprimate de 189 de utilizatori, pe o scară de la 1 la 10

Află clasamentul acestui cartier
Sănătate și Siguranță

Sănătate și Siguranță

7.0

Sănătate 6.7

Siguranță 7.6

Calitate aer 6.5

Curățenie 7.4

Zone verzi 6.8

Cultură și Educație

Cultură și Educație

6.9

Cultură 6.1

Educație 7.4

Sport 7.1

Ambianță și Lifestyle

Ambianță și Lifestyle

7.0

Nivel de trai 7.4

Magazine 8.0

Localuri 6.9

Parcări 5.5

Zgomot 7.0

Transport în comun

Transport în comun

7.4

Autobuz 8.0

Tramvai 7.3

Metrou 7.1

Contactează utilizatorul

ID: 4142157

Spatiu de birouri | Vitan Center | Utilitati incluse | 46mp

50 m² | Bucuresti-Ilfov / Bucuresti

900 €


Vezi anunțuri și din categoriile