Petrut Bragea

Consultant imobiliar

Închiriere

100 m²

Spațiu subsol | Vitan Center | 100 mp | Utilitati incluse

Bucuresti-Ilfov / Bucuresti
1.000 €

Specificații

Suprafața utilă 100 m²

An finalizare construcție 2009

Tip imobil Clădire de birouri

Comision cumpărător 0%

Nu include TVA Da

Clasă birouri A

Stadiu construcție Finalizat

Tip tranzacție Închiriere

Tip vânzător Companie

Suprafață totală 120 m

Cladirea de birouri Vitan Center se află în Piața Vitan, la doar 500m de Piața Alba Iulia și București Mall.Cladirea dispune de fațadă vitrată, recepție, pază 24/24, supraveghere video, sistem antiincendiu, pardoseală flotantă, sistem de climatizare, termopane Schuco și 3 lifturi.

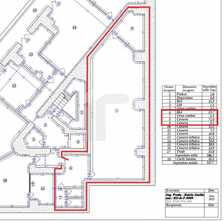
Spațiul se află la subsol, dispune de 100 mp utili si este compartimentat conform schitei atasate.

Pretabil pentru sala de dansuri, showroom, depozitare, sala de kickbox, studio de inregistrare etc.

Inaltimea spatiului in acest moment este de 232 cm dar cu posibilitate de inaltare pana la 282cm.

În prețul chiriei sunt incluse încălzirea și răcirea spațiului și a suprafețelor comune, apa, colectarea gunoiului, dezinsecția, deratizarea, curățenia, paza si recepția, excepție fiind doar curentul (consumul de la becuri și prize) care se achită separat in functie de consum.

Locurile de parcare sunt disponibile prin abonament la ADP la un cost de 20€/lună.

La pretul afisat se adauga TVA.

Pentru orice informații suplimentare mă puteți contacta!

Id intern: PB18920

Solicită vizionarea proprietății

Alege o zi disponibilă

08 Februarie
09 Februarie
10 Februarie
11 Februarie

Alege un interval orar

8:00 - 12:00
12:00 - 15:00
15:00 - 18:00
18:00 - 21:00

Următoarele date de contact oferite de tine vor fi accesibile proprietarului:

Locație

Despre zona "Vitan"

păreri exprimate de 189 de utilizatori, pe o scară de la 1 la 10

Află clasamentul acestui cartier
Sănătate și Siguranță

Sănătate și Siguranță

7.0

Sănătate 6.7

Siguranță 7.6

Calitate aer 6.5

Curățenie 7.4

Zone verzi 6.8

Cultură și Educație

Cultură și Educație

6.9

Cultură 6.1

Educație 7.4

Sport 7.1

Ambianță și Lifestyle

Ambianță și Lifestyle

7.0

Nivel de trai 7.4

Magazine 8.0

Localuri 6.9

Parcări 5.5

Zgomot 7.0

Transport în comun

Transport în comun

7.4

Autobuz 8.0

Tramvai 7.3

Metrou 7.1

Contactează utilizatorul

ID: 3990052

Spațiu subsol | Vitan Center | 100 mp | Utilitati incluse

100 m² | Bucuresti-Ilfov / Bucuresti

1.000 €


Vezi anunțuri și din categoriile