Alexandru Luca

Consultant imobiliar

Închiriere

340 m²

Spatiu pentru Birouri de inchiriat in Centrul Istoric din Si

Sibiu / Sibiu
2.000 €

Specificații

Suprafața utilă 340 m²

Suprafață totală 413 m

An finalizare construcție 1795

Tip imobil Bloc apartamente

Stadiu construcție Finalizat

Clasă birouri A

Înălțime spațiu 3 m

Număr încăperi 4

Consum total de energie primară 0

Indicele de emisii echivalent CO2 0

Consum total din surse regenerabile 0

Nu include TVA Nu

Tip tranzacție Închiriere

Tip vânzător Companie

Spatiu pentru birouri de inchiriat in Centrul Istoric al orasului Sibiu orientat Sud-Estic cu acces privat si curte.
Situat  in zona istorica a orasului spatiul beneficiaza de expunere stradala si acces imediat catre punctele de interes ceea ce il face ideala pentru sediul unei companii, call center, spatiu birouri si multe alte activitati de birou.
Imobilul a fost edificat in anul 1878 si renovat in anul 2020, beneficiaza de toate imbunatatirile si dotarile necesare activitatii de birouri (incalzire termica in pardoseala,  calorifere din otel si instalatii din cupru, aer conditionat, sistem de alarma, supraveghere video, camera server etc). Spatiul se poare recompartimenta in functie de domeniul de activitate.
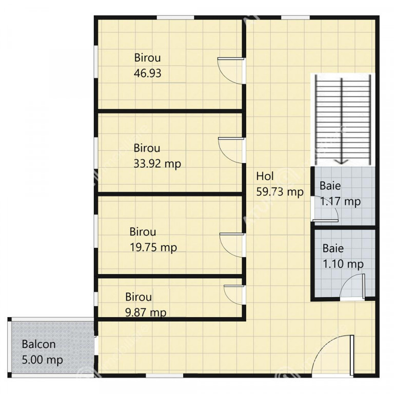
Spatiul are 340 mp utili, este amplasat intr-o cladire compusa din Parter   Mansarda fiind  compartimentat astfel: 4 birouri individuale la etajul 1 cu  2 grupuri sanitare si un balcon in suprafata de 5 mp, iar la mansarda un spatiu deschis care poate fi compartimentat, care beneficiaza de grup sanitar si bucatarie mobilata si utilata. 
Disponibil imediat, acesta se inchiriaza la  2500 euro negociabil plus o luna garantie. !D intern: 2105

Solicită vizionarea proprietății

Alege o zi disponibilă

09 Februarie
10 Februarie
11 Februarie
12 Februarie

Alege un interval orar

8:00 - 12:00
12:00 - 15:00
15:00 - 18:00
18:00 - 21:00

Următoarele date de contact oferite de tine vor fi accesibile proprietarului:

Locație

Despre zona "Orasul de Jos"

păreri exprimate de 70 de utilizatori, pe o scară de la 1 la 10

Află clasamentul acestui cartier
Sănătate și Siguranță

Sănătate și Siguranță

7.1

Sănătate 7.8

Siguranță 7.3

Calitate aer 7.1

Curățenie 6.8

Zone verzi 6.5

Cultură și Educație

Cultură și Educație

7.4

Cultură 7.4

Educație 7.8

Sport 6.9

Ambianță și Lifestyle

Ambianță și Lifestyle

7.1

Nivel de trai 7.4

Magazine 7.0

Localuri 7.4

Parcări 6.3

Zgomot 7.5

Transport în comun

Transport în comun

7.4

Autobuz 7.4

Tramvai 0.0

Metrou 0.0

Contactează utilizatorul

ID: 3565373

Spatiu pentru Birouri de inchiriat in Centrul Istoric din Si

340 m² | Sibiu / Sibiu

2.000 €


Vezi și alte anunțuri imobiliare
Apartamente închiriere Sibiu-sb - Aeroport Case-vile închiriere Sibiu-sb - Aeroport Garsoniere închiriere Sibiu-sb - Aeroport Terenuri închiriere Sibiu-sb - Aeroport Apartamente închiriere Sibiu-sb - Broscarie Case-vile închiriere Sibiu-sb - Broscarie Garsoniere închiriere Sibiu-sb - Broscarie Terenuri închiriere Sibiu-sb - Broscarie Apartamente închiriere Sibiu-sb - Calea Cisnadiei Case-vile închiriere Sibiu-sb - Calea Cisnadiei Garsoniere închiriere Sibiu-sb - Calea Cisnadiei Terenuri închiriere Sibiu-sb - Calea Cisnadiei