Ana-Maria Radu

Consultant imobiliar

Vânzare

Teren cu casa demolabila Bucurestii Noi Strada Prahova

Bucuresti-Ilfov / Bucuresti
235.000 €

Rată estimată

5.149 Lei/lună

Avans (15%)

175.193 lei

Perioada împrumutului

30 ani

Specificații

Preț negociabil Nu

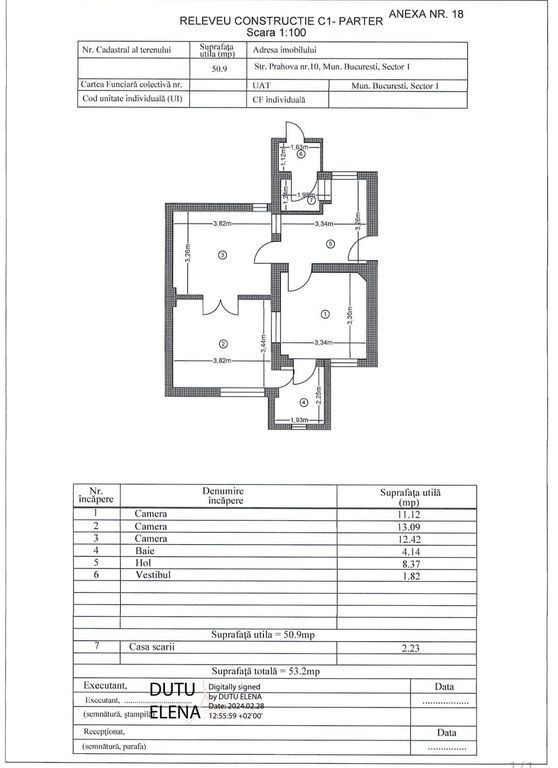
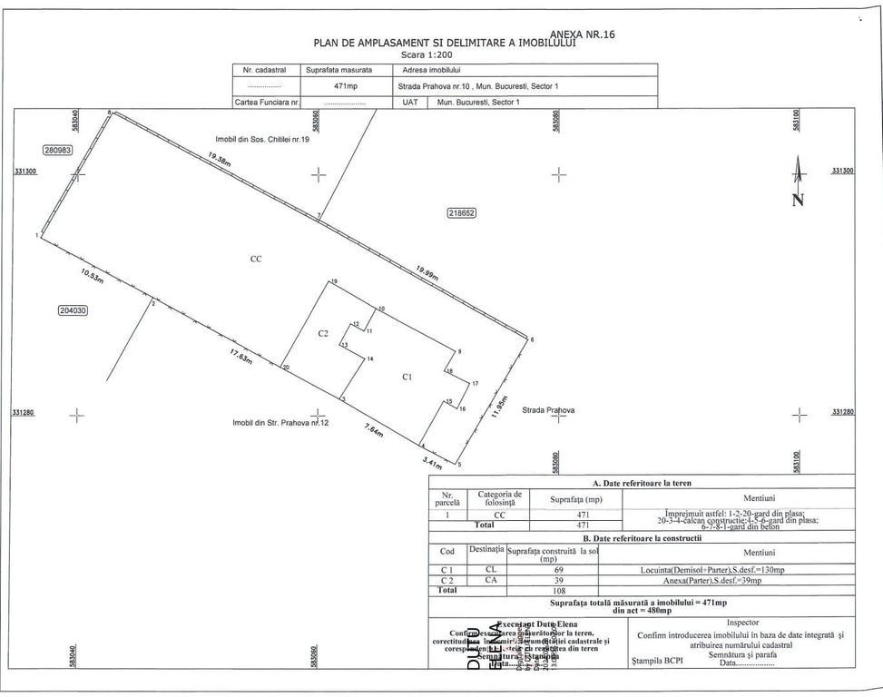
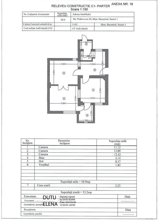
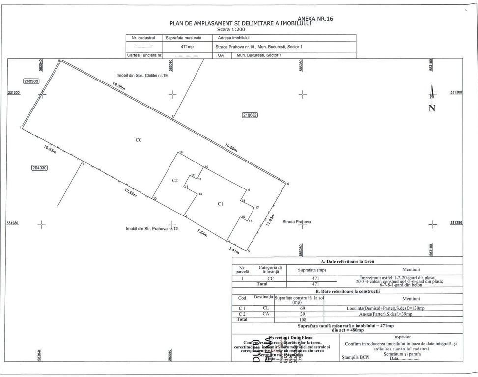
Suprafață teren 471 m²

Tip teren Construibil

Clasificare teren Intravilan

Front stradal 11 m

Construcție pe teren Da

Utilități Curent, Apă, Canalizare, Gaz

Tip tranzacție Vânzare

Tip vânzător Companie

Va oferim spre vanzare un teren in suprafata de 471 mp, cu o casa demolabila, situat pe strada Prahova la nr 10. Terenul are un front strada de 11.9  metri liniari. Casa este formata din demisol si parter si a fost construita in anul 1935 -se poate demola sau se poate consolida, in zona fiind constructii cu regim de inaltime de P+5. 
Va asteptam la vizionare.

Solicită vizionarea proprietății

Alege o zi disponibilă

08 Decembrie
09 Decembrie
10 Decembrie
11 Decembrie

Alege un interval orar

8:00 - 12:00
12:00 - 15:00
15:00 - 18:00
18:00 - 21:00

Următoarele date de contact oferite de tine vor fi accesibile proprietarului:

Locație

Despre zona "Chitila"

păreri exprimate de 168 de utilizatori, pe o scară de la 1 la 10

Află clasamentul acestui cartier
Sănătate și Siguranță

Sănătate și Siguranță

6.9

Sănătate 6.2

Siguranță 7.4

Calitate aer 6.6

Curățenie 7.3

Zone verzi 7.0

Cultură și Educație

Cultură și Educație

6.2

Cultură 4.8

Educație 7.1

Sport 6.6

Ambianță și Lifestyle

Ambianță și Lifestyle

6.6

Nivel de trai 6.7

Magazine 7.7

Localuri 5.2

Parcări 6.4

Zgomot 7.3

Transport în comun

Transport în comun

6.9

Autobuz 7.2

Tramvai 7.0

Metrou 6.4

Contactează utilizatorul

ID: 4097479

Teren cu casa demolabila Bucurestii Noi Strada Prahova

Bucuresti-Ilfov / Bucuresti

235.000 €


Vezi anunțuri și din categoriile