Jean Vlad

Consultant imobiliar

Vânzare

Teren padure Baneasa Jandarmeriei

Bucuresti-Ilfov / Bucuresti
500.000 €

Rată estimată

10.955 Lei/lună

Avans (15%)

372.750 lei

Perioada împrumutului

30 ani

Specificații

Preț negociabil Da

Suprafață teren 1250 m²

Tip teren Construibil

Clasificare teren Intravilan

Front stradal 33 m

Construcție pe teren Da

Utilități Curent, Apă, Canalizare, Gaz

Tip tranzacție Vânzare

Tip vânzător Companie

Teren de vânzare în Sector 1 – Locație exclusivistă, ideal pentru locuință! chiar in Padure
 Adresă: Str. Jandarmeriei, Sector 1, București
 Suprafață: 1.250 mp – intravilan, construibil
 Deschidere: 33 ml la strada Jandarmeriei
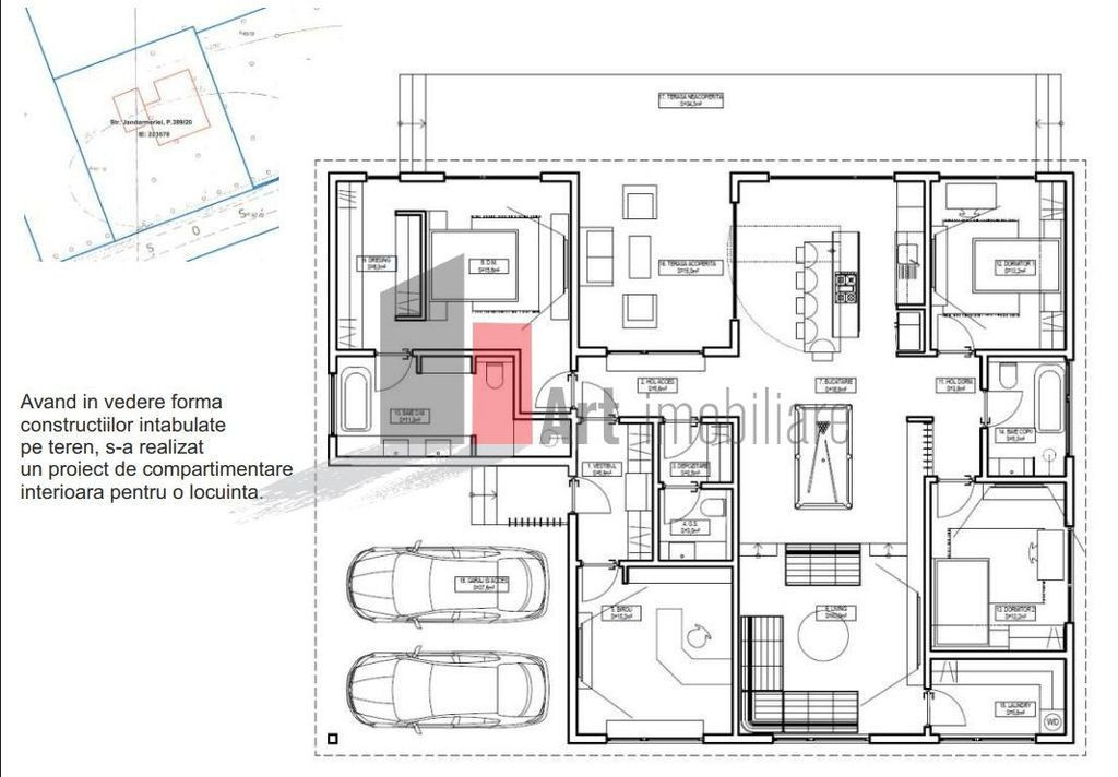
 Construcții existente: Două anexe intabulate (194 mp) La acest moment pe teren mai exista fundatia lor.
 Teren liber, fără vegetație
Caracteristici urbanistice:
POT: 15% CUT: 0.2 Regim de înălțime permis: P+1
Proiect de compartimentare interioară deja realizat pentru locuință!
 Avantaje:
Zonă premium, liniștită, cu acces rapid către DN1, Băneasa și pădurea Băneasa
Ideal pentru construcția unei vile de lux sau reconfigurarea construcțiilor existente
Investiție solidă într-o zonă în plină dezvoltare

Solicită vizionarea proprietății

Alege o zi disponibilă

19 Ianuarie
20 Ianuarie
21 Ianuarie
22 Ianuarie

Alege un interval orar

8:00 - 12:00
12:00 - 15:00
15:00 - 18:00
18:00 - 21:00

Următoarele date de contact oferite de tine vor fi accesibile proprietarului:

Locație

Despre zona "Baneasa"

păreri exprimate de 170 de utilizatori, pe o scară de la 1 la 10

Află clasamentul acestui cartier
Sănătate și Siguranță

Sănătate și Siguranță

7.7

Sănătate 7.3

Siguranță 8.3

Calitate aer 7.2

Curățenie 7.9

Zone verzi 7.8

Cultură și Educație

Cultură și Educație

6.7

Cultură 6.5

Educație 7.3

Sport 6.5

Ambianță și Lifestyle

Ambianță și Lifestyle

7.1

Nivel de trai 7.4

Magazine 7.5

Localuri 7.3

Parcări 6.4

Zgomot 7.1

Transport în comun

Transport în comun

6.0

Autobuz 7.2

Tramvai 6.0

Metrou 4.7

Contactează utilizatorul

ID: 4104647

Teren padure Baneasa Jandarmeriei

Bucuresti-Ilfov / Bucuresti

500.000 €


Vezi anunțuri și din categoriile