Viorel Nica

Consultant imobiliar

Vânzare

5+ camere | 348 m²

Vila 7camere/(348util,500teren,119ampr.)mp/5min.metrouAp....

Bucuresti-Ilfov / Bucuresti
465.000 €

Rată estimată

10.012 Lei/lună

Avans (15%)

346.658 lei

Perioada împrumutului

30 ani

Specificații

Preț negociabil Nu

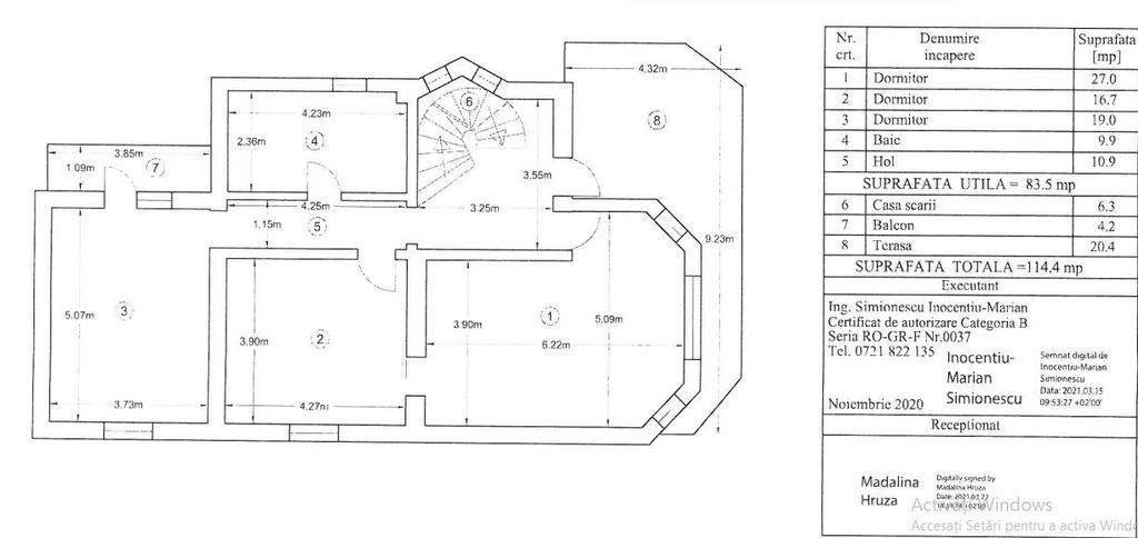
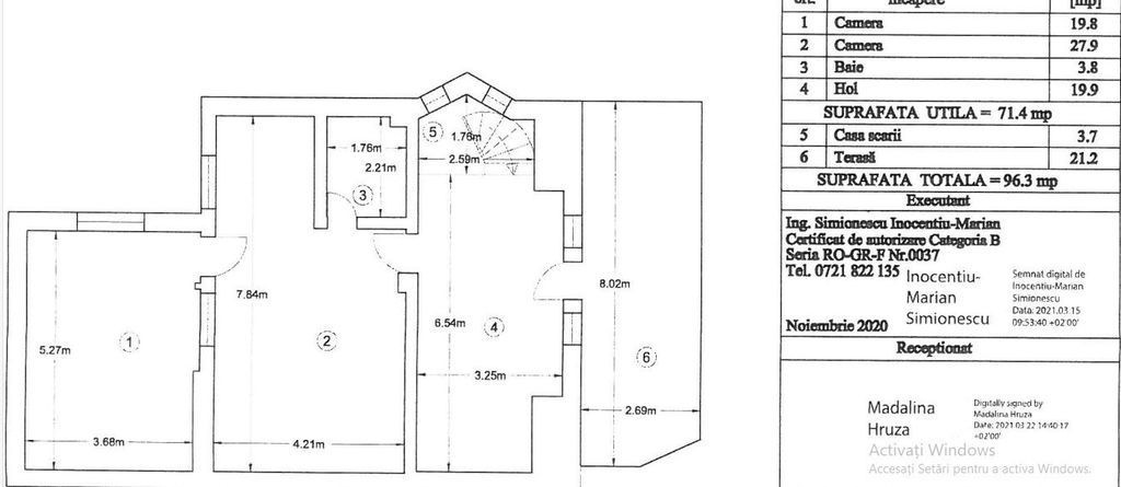
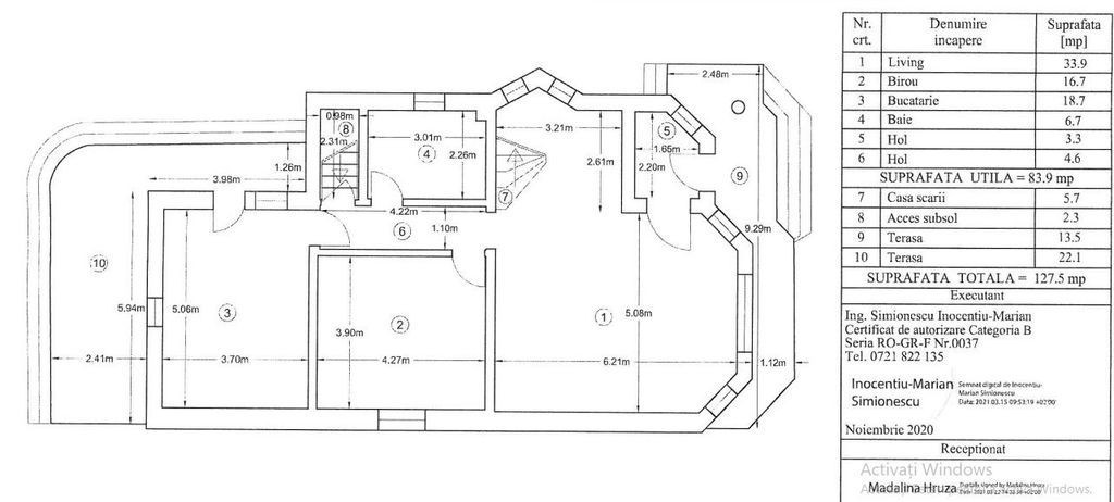
Suprafața utilă 348 m²

Suprafață teren 500 m²

Număr camere 5+

Niveluri imobil 1

An finalizare construcție 2002

Număr Băi 3

Numărul de locuri de parcare 4

Ansamblu Rezidențial Nu

Posibilitate parcare Da

Clasa energetică A

Stare proprietate Bună

Utilități Curent, Apă, Canalizare, Gaz, Sistem irigație, Încălzire, Climă

Tip tranzacție Vânzare

Tip vânzător Companie

Proprietar

Vand vila(construita in regie proprie) individuala dispusa pe parter, etaj si pod mansardat, situata la 5-7min de mers pe jos pana la statia de metrou Ap. Patriei, avand dubla deschidere, cu posibilitatea parcarii a 5 masini(2 in curte si 3 pe zona de proprietate).

Se vinde fie mobilata si utilata, cel putin cum se vede in fotografii, fie goala, dupa cum se doreste.

Arata exact ca in fotografii; este certificata energetic casa A.

Va rog sa regasiti in informatiile atasate, fotografiile si releveul corespunzator pe fiecare nivel in parte.

Mai multe detalii, pentru potentialii clienti interesati de achizitie in mod real, la tel: 0749122233

Toate actele sunt pregatite pentru vanzare.

Dispune atat de loc de joaca(amenajat deasupra piscinei exterioare) pentru copii, cat si de piscina.

Beneficiaza atat de toate utilitatile publice(apa, energie electrica, gaz, internet-cablu TV) cat si de put propriu cu hidrofor pentru alimentarea cu apa a piscinei si intretinerea spatiului verde.

Solicită vizionarea proprietății

Alege o zi disponibilă

06 Aprilie
07 Aprilie
08 Aprilie
09 Aprilie

Alege un interval orar

8:00 - 12:00
12:00 - 15:00
15:00 - 18:00
18:00 - 21:00

Următoarele date de contact oferite de tine vor fi accesibile proprietarului:

Locație

Despre zona "Aparatorii Patriei"

păreri exprimate de 276 de utilizatori, pe o scară de la 1 la 10

Află clasamentul acestui cartier
Sănătate și Siguranță

Sănătate și Siguranță

6.6

Sănătate 6.9

Siguranță 7.2

Calitate aer 6.1

Curățenie 6.6

Zone verzi 6.2

Cultură și Educație

Cultură și Educație

6.5

Cultură 5.6

Educație 7.2

Sport 6.6

Ambianță și Lifestyle

Ambianță și Lifestyle

6.7

Nivel de trai 6.7

Magazine 7.9

Localuri 6.9

Parcări 5.5

Zgomot 6.4

Transport în comun

Transport în comun

7.2

Autobuz 7.5

Tramvai 6.1

Metrou 8.1

Contactează utilizatorul

ID: 4156077

Vila 7camere/(348util,500teren,119ampr.)mp/5min.metrouAp....

5+ camere | 348 m² | Bucuresti-Ilfov / Bucuresti

465.000 €