BLITZ Romania

Consultant imobiliar

Vânzare

5+ camere | 245 m²

Vila moderna in Salicea, construita cu materiale premium, 24

Cluj / Salicea
275.000 €

Rată estimată

6.025 Lei/lună

Avans (15%)

205.013 lei

Perioada împrumutului

30 ani

Specificații

Număr camere 5+

Suprafața utilă 245 m²

An finalizare construcție 2025

Niveluri imobil 2

Suprafață teren 518 m²

Număr Băi 4

Stare proprietate Nouă

Mobilat și Utilat Nemobilat

Utilități Curent, Apă

Tip tranzacție Vânzare

Tip vânzător Companie

Blitz vă propune spre vânzare o casă cuplată prin garaj, cu regim de înălțime D+P+E+M, situată în zona centrală și urbanizată din localitatea Sălicea. Proprietatea îmbină avantajul unei zone liniștite, cu acces rapid către oraș, și este ideală pentru o familie care caută confort și spațiu generos.

Detalii proprietate:
-Suprafață construită desfășurată: 332 mp
-Suprafață utilă: 245 mp
-Teren: 518 mp / casă (1.036 mp total)
-Preț: începând cu 275.000 €
-Stadiu: finalizată – în curs de intabulare (interior la roșu, cu posibilitatea de semifinisat la cerere)

Construcție și dotări:
-Încălzire în pardoseală
-Hidroizolație la fundație și 3 sisteme de drenaj pentru întreaga curte
-Izolație exterioară premium: 15 cm la pereți și 20 cm la mansardă (densitate 100)
-Geamuri Salamander tripan (3 sticle) pentru eficiență termică și fonică
-Posibilitate de montare pompă de căldură
-Drum privat pentru acces

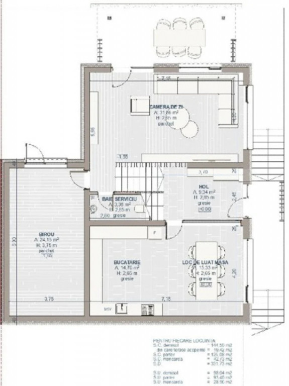
Compartimentare:
-Demisol: living spațios, bucătărie separată cu zonă de luat masa, hol, baie și birou
-Etaj: hol, 2 dormitoare, baie comună, dormitor matrimonial cu baie și dressing propriu
-Mansardă: hol, dormitor și baie

Această casă oferă un design practic și funcțional, spații generoase și un teren care permite amenajarea unei curți moderne și intime. Este soluția perfectă pentru cei care doresc să se bucure de liniște, aer curat și intimitate, fără a renunța la avantajele proximității față de oraș.

Vă invităm la o vizionare pentru a descoperi toate avantajele acestei proprietăți deosebite!
Cod ofertă / ID BLITZ: P152699
Id intern: P152699

Solicită vizionarea proprietății

Alege o zi disponibilă

27 Decembrie
28 Decembrie
29 Decembrie
30 Decembrie

Alege un interval orar

8:00 - 12:00
12:00 - 15:00
15:00 - 18:00
18:00 - 21:00

Următoarele date de contact oferite de tine vor fi accesibile proprietarului:

Locație

Contactează utilizatorul

ID: 4047223

Vila moderna in Salicea, construita cu materiale premium, 24

5+ camere | 245 m² | Cluj / Salicea

275.000 €