Georgiana Lixandru

Consultant imobiliar

Vânzare

3 camere | 67 m²

3 camere P/5, parcare, centrala, gradina, Bdul Timisoara.

Bucuresti-Ilfov / Bucuresti
195.000 €

Rată estimată

4.272 Lei/lună

Avans (15%)

145.373 lei

Perioada împrumutului

30 ani

Specificații

Număr camere 3

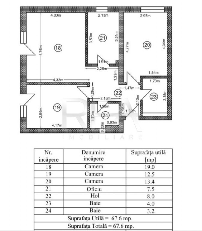
Suprafața utilă 67 m²

Compartimentare Decomandat

Confort 1

An finalizare construcție 2023

Tip imobil Bloc apartamente

Niveluri imobil 5

Număr Băi 2

Numărul de locuri de parcare 1

Nu include TVA Da

Etaj Parter

Stare proprietate Bună

Mobilat și Utilat Nemobilat

Tip tranzacție Vânzare

Tip vânzător Companie

R.E.A. Imobiliare va ofera spre vanzare un apartament cu 3 camere, decomandat situat in apropriere de  Bdul Timisoara, pe Str. Leaota langa Scoala Finlandeza.  Imobilul se afla intr-un bloc de apartamente construit in anul 2023, fara risc seismic, la etajul 1/5. Scara blocului este foarte curata și ingrijita monitorizata video. Este alcatuit din living, doua dormitoare, bucatarie, doua bai si o gradina de 110 mp. Suprafata totala este de 67,60. Apartamentul, se vinde nemobilat si neutilat, dispune si de parcare subterana la pretul de 30000e +tva, sau supraterana la pretul de 25-28000+tva cu stație electrica, iar accesul se face pe baza de telecomanda. Pretul apartamentului este 195000×tva. Confortul termic este realizat cu ajutorul centralei termice, dar si cu ajutorul aparatului de aer conditionat. In imediata apropiere se intalnesc puncte comerciale, bancare, farmaceutice, medicale, educationale si de divertisment ( Mall Plaza, Lidl, 600m, Carrefour Lujerului, Parcul Liniei 700m.) Acces facil la mijloacele de transport in comun, 3 minute pana la statia Stb, 13 minute pana la statia de metrou Romancierilor. Se accepta toate modalitatiile de plata. Informatiile tehnice au caracter orientativ, acestea fiind preluate de la proprietar. Pentru mai multe detalii si vizionari nu ezitați sa ne  contactați specificand codul P7522.
Id intern: P7522

Solicită vizionarea proprietății

Alege o zi disponibilă

07 Decembrie
08 Decembrie
09 Decembrie
10 Decembrie

Alege un interval orar

8:00 - 12:00
12:00 - 15:00
15:00 - 18:00
18:00 - 21:00

Următoarele date de contact oferite de tine vor fi accesibile proprietarului:

Locație

Despre zona "Drumul Taberei"

păreri exprimate de 945 de utilizatori, pe o scară de la 1 la 10

Află clasamentul acestui cartier
Sănătate și Siguranță

Sănătate și Siguranță

7.0

Sănătate 6.9

Siguranță 7.9

Calitate aer 6.2

Curățenie 6.7

Zone verzi 7.3

Cultură și Educație

Cultură și Educație

6.9

Cultură 5.9

Educație 7.7

Sport 7.2

Ambianță și Lifestyle

Ambianță și Lifestyle

6.9

Nivel de trai 7.0

Magazine 8.2

Localuri 7.3

Parcări 4.9

Zgomot 6.9

Transport în comun

Transport în comun

6.7

Autobuz 7.9

Tramvai 7.3

Metrou 4.7

Contactează utilizatorul

ID: 3978040

3 camere P/5, parcare, centrala, gradina, Bdul Timisoara.

3 camere | 67 m² | Bucuresti-Ilfov / Bucuresti

195.000 €