Robert Rosca

Consultant imobiliar

Vânzare

3 camere | 87 m²

3 camere Ultracentral - Unirii - Renovat la cheie

Bucuresti-Ilfov / Bucuresti
359.000 €

Rată estimată

7.729 Lei/lună

Avans (15%)

267.635 lei

Perioada împrumutului

30 ani

Specificații

Număr camere 3

Suprafața utilă 87 m²

Compartimentare Decomandat

Confort 1

An finalizare construcție 1994

Tip imobil Bloc apartamente

Niveluri imobil 8

Număr Băi 2

Etaj 1

Stare proprietate Bună

Tip tranzacție Vânzare

Tip vânzător Companie

Mobilat și Utilat Complet

R.E.A. Imobiliare va propune spre vanzare un apartament decomandat cu 3 camere situat in zona Unirii pe bvd Corneliu Coposu. 

Imobilul se afla situat la etajul 1 din 8 al unui bloc de apartamente, construit in 1994, pe structura de beton, fara risc seismic. Vedere pe spate si lateral. 

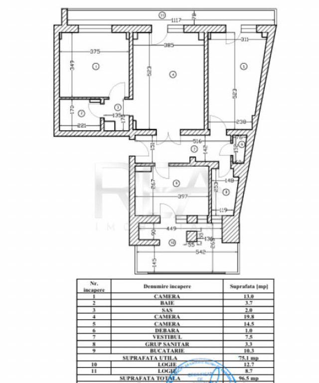
Locuinta este compusa din: dormitor - 13,00mp, baie - 3,70mp, sas - 2,00mp, living - 19,80mp, camera - 14,50mp. debara - 1,0mp, vestibul - 7,50mp, grup sanitar - 3,30mp, bucatarie - 10,30mp. 
Bucataria a fost mutata in logie, iar spatiul din schita mentionat bucatarie deserveste pe post de dining room. 

Suprafata utila obtinuta astfel este de 87,80mp.
Suprafata totala este de 96,50mp din care 8,70mp reprezinta balconul deschis tip terasa.

Se vinde precum in poze, a fost complet renovat/mobilat si utilat in 2025, au fost schimbate toate instalatiile si toate finisajele.  

Confortul termic este realizat prin intermediul RADET.  Incalzirea apei se face si cu ajutorul boilerului electric. 

Potrivit pentru investitie si inchiriere de termen lung, dispune de o crestere de pret constanta in ultimii 10 ani. 

La cateva minute distanta de mers pe jos intram in centrul vechi al Bucurestiului, Mall Unirii, metrou Piata Unirii, bancomate, farmacii, si altele; 

Pentru alte detalii si vizionari ne puteti contacta mentionand codul proprietatii: P10978. 


Id intern: P10978

Solicită vizionarea proprietății

Alege o zi disponibilă

14 Mai
15 Mai
16 Mai
17 Mai

Alege un interval orar

8:00 - 12:00
12:00 - 15:00
15:00 - 18:00
18:00 - 21:00

Următoarele date de contact oferite de tine vor fi accesibile proprietarului:

Locație

Despre zona "Unirii"

păreri exprimate de 76 de utilizatori, pe o scară de la 1 la 10

Află clasamentul acestui cartier
Sănătate și Siguranță

Sănătate și Siguranță

6.7

Sănătate 7.3

Siguranță 7.9

Calitate aer 5.4

Curățenie 6.5

Zone verzi 6.6

Cultură și Educație

Cultură și Educație

7.2

Cultură 7.3

Educație 7.1

Sport 7.1

Ambianță și Lifestyle

Ambianță și Lifestyle

7.3

Nivel de trai 7.4

Magazine 7.8

Localuri 8.6

Parcări 6.0

Zgomot 6.4

Transport în comun

Transport în comun

8.4

Autobuz 8.5

Tramvai 8.2

Metrou 8.4

Contactează utilizatorul

ID: 4163516

3 camere Ultracentral - Unirii - Renovat la cheie

3 camere | 87 m² | Bucuresti-Ilfov / Bucuresti

359.000 €