O.B.A. Different by Luxury

Consultant imobiliar

Vânzare

2 camere | 66 m²

Apartament Mamaia Nord - 2 camere - O.B.A Urban Residence -Finalizat.

Constanta / Constanta
86.112 €

Rată estimată

1.887 Lei/lună

Avans (15%)

64.196 lei

Perioada împrumutului

30 ani

Specificații

Număr camere 2

Suprafața utilă 66 m²

Compartimentare Decomandat

Confort Lux

Etaj 5

An finalizare construcție 2024

Tip imobil Bloc apartamente

Stare proprietate Nouă

Tip tranzacție Vânzare

Tip vânzător Companie

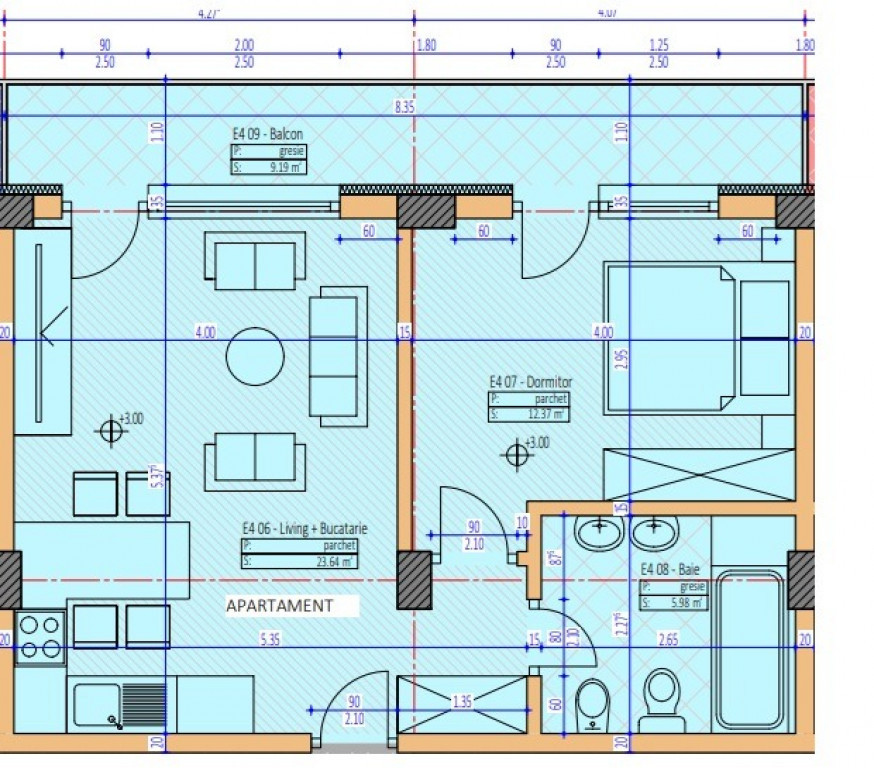
O.B.A Different by Luxury vă propune spre vânzare apartamentul nr.32, etaj 5, compus dintr-un dormitor, living+ bucătărie , baie si balcon

Apartamentul se preda la gata,cu corpuri de iluminat cadou.

Ai oraşul la doar câteva minute distanţă, iar natura este peste tot în jurul tău.

Din dorinţa de a crea locuinţe la un preţ accesibil pentru familiile ce sunt în căutarea primei locuinţe sau a celor care îşi doresc să investească într-un apartament situat într-o zonă exclusivistă din Mamaia Nord, am dat naştere proiectului nostru, situat pe strada T2. Acesta cuprinde apartamente cu 2 şi 3 camere, cu suprafeţe cuprinse intre 61,65 m² - 88,44 m²

Pentru a oferi clienților noștri o cât mai bună experiență, apartamentele se predau complet finisate cu materialele și finisaje la cele mai înalte standarde de calitate.

• Fundație tip radier și structură din cadre de beton

• BCA, fațadă decorativa mixta, izolație termică

• Balustradă cu sticlă securizată

• Stație de încărcare auto electrică

• Parcare cu bariera de acces

• Loc pentru Barbeque-grill

• Spații verzi si loc de joaca pentru copii

• Supraveghere video parcare și imobil 24h/24

• Instalație de încălzire prin pardoseală

• Tavane extensibile lucioase sau mate, de tip barissol, în diferite nuanțe

• Finisaje interioare: marmură, plăci ceramice, parchet, granit

• Spații comune și casa scării placate cu marmura, granit, tavane tip barissol, iluminare cu spoturi

• Lift de ultimă generație

A oferi clienților O.B.A. different by luxury servicii imobiliare complete înseamnă să evoluăm împreună! Astfel, în urma colaborării noastre cu MOBEXPERT, vă oferim următoarele beneficii:

- Consiliere și servicii de design personalizat oferite gratuit de partenerul nostru, Mobexpert Constanța.

- Voucher cadou de 10 % la achiziții de mobilier și decorațiuni interioare din magazinul Mobexpert Constanța.

Oferim servicii diversificate de plata:

- plata în rate la dezvoltator;

- plata integrală cu discount;

Pretul nu include TVA

Solicită vizionarea proprietății

Alege o zi disponibilă

28 Decembrie
29 Decembrie
30 Decembrie
31 Decembrie

Alege un interval orar

8:00 - 12:00
12:00 - 15:00
15:00 - 18:00
18:00 - 21:00

Următoarele date de contact oferite de tine vor fi accesibile proprietarului:

Locație

Contactează utilizatorul

ID: 4014593

Apartament Mamaia Nord - 2 camere - O.B.A Urban Residence -Finalizat.

2 camere | 66 m² | Constanta / Constanta

86.112 €


Vezi și alte anunțuri imobiliare
Apartamente vânzare Constanta-ct - Abator Case-vile vânzare Constanta-ct - Abator Garsoniere vânzare Constanta-ct - Abator Terenuri vânzare Constanta-ct - Abator Apartamente vânzare Constanta-ct - Anadolchioi Case-vile vânzare Constanta-ct - Anadolchioi Garsoniere vânzare Constanta-ct - Anadolchioi Terenuri vânzare Constanta-ct - Anadolchioi Apartamente vânzare Constanta-ct - Ancora Case-vile vânzare Constanta-ct - Ancora Garsoniere vânzare Constanta-ct - Ancora Terenuri vânzare Constanta-ct - Ancora