Experti Imobiliari

Consultant imobiliar

Vânzare

3 camere | 60 m²

Casa 3 camere de vanzare, in zona Dacia

Constanta / Constanta
220.000 €

Rată estimată

4.737 Lei/lună

Avans (15%)

164.010 lei

Perioada împrumutului

30 ani

Specificații

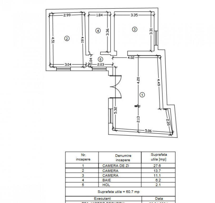
Număr camere 3

Suprafața utilă 60 m²

An finalizare construcție 1972

Suprafață teren 108 m²

Număr Băi 1

Mobilat și Utilat Nemobilat

Utilități Curent, Apă, Canalizare, Gaz

Stare proprietate Bună

Tip tranzacție Vânzare

Tip vânzător Companie

Agentia Experti Imobiliari va propune spre achizitionare casa situata in zona DACIA, compusa din Living cu bucatarie open-space (cu posibilitate de inchidere), 2 dormitoare si baie, suprafata totala de teren 108 mp, suprafata construita 60,70 mp utili, deschidere la 2 strazi, constructie de caramida, reconditionata integral in 2024, instalatii noi, centrala gaze si incalzire pardoseala, PVC Salamander Gri Antracit exterior-interior, pod circulabil si beci cu scari glisante,  totul nou.

Proprietatea este situata intre B-dul Lapusneanu si B-dul Tomis, aproape de scoli si gradinite, aproape de mijloace de transport in comun. 

Pentru mai multe informații despre acest anunț imobiliar sau pentru a programa o vizionare, nu ezitați să ne contactați. Suntem aici pentru a vă ajuta să găsiți locuința perfectă pentru stilul dumneavoastră de viață!

E.6 (117065)


Id intern: P27256

Solicită vizionarea proprietății

Alege o zi disponibilă

10 Aprilie
11 Aprilie
12 Aprilie
13 Aprilie

Alege un interval orar

8:00 - 12:00
12:00 - 15:00
15:00 - 18:00
18:00 - 21:00

Următoarele date de contact oferite de tine vor fi accesibile proprietarului:

Locație

Despre zona "Dacia"

păreri exprimate de 70 de utilizatori, pe o scară de la 1 la 10

Află clasamentul acestui cartier
Sănătate și Siguranță

Sănătate și Siguranță

7.0

Sănătate 7.8

Siguranță 7.6

Calitate aer 6.0

Curățenie 6.9

Zone verzi 6.8

Cultură și Educație

Cultură și Educație

7.3

Cultură 6.9

Educație 8.0

Sport 7.2

Ambianță și Lifestyle

Ambianță și Lifestyle

6.9

Nivel de trai 6.6

Magazine 7.8

Localuri 7.5

Parcări 6.5

Zgomot 6.0

Transport în comun

Transport în comun

8.5

Autobuz 8.5

Tramvai 0.0

Metrou 0.0

Contactează utilizatorul

ID: 3713373

Casa 3 camere de vanzare, in zona Dacia

3 camere | 60 m² | Constanta / Constanta

220.000 €


Vezi și alte anunțuri imobiliare
Apartamente vânzare Constanta-ct - Abator Case-vile vânzare Constanta-ct - Abator Garsoniere vânzare Constanta-ct - Abator Terenuri vânzare Constanta-ct - Abator Apartamente vânzare Constanta-ct - Anadolchioi Case-vile vânzare Constanta-ct - Anadolchioi Garsoniere vânzare Constanta-ct - Anadolchioi Terenuri vânzare Constanta-ct - Anadolchioi Apartamente vânzare Constanta-ct - Ancora Case-vile vânzare Constanta-ct - Ancora Garsoniere vânzare Constanta-ct - Ancora Terenuri vânzare Constanta-ct - Ancora