Laurentiu Flamind

Consultant imobiliar

Vânzare

4 camere | 105 m²

Duplex nou, semifinisat, în ansamblu rezidențial cu parc privat

Cluj / Floresti
225.000 €

Rată estimată

4.867 Lei/lună

Avans (15%)

167.738 lei

Perioada împrumutului

30 ani

Specificații

Număr camere 4

Suprafața utilă 105 m²

Suprafață teren 286 m²

An finalizare construcție 2025

Stare proprietate Nouă

Niveluri imobil 2

Număr Băi 3

Mobilat și Utilat Nemobilat

Comision cumpărător 2%

Posibilitate parcare Da

Numărul de locuri de parcare 2

Utilități Curent, Apă, Canalizare, Gaz, Încălzire

Tip tranzacție Vânzare

Tip vânzător Companie

ID intern CACJ246363
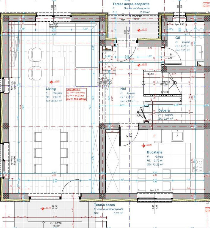
EDIL Florești Imobiliare vă propune spre vânzare un duplex nou, amplasat într-o zonă verde și liniștită din Florești, în apropiere de Mănăstire. Proprietatea face parte dintr-un ansamblu rezidențial modern, cu un avantaj unic: acces direct la un parc privat de 1.000 mp, amenajat cu loc de joacă și zone de relaxare, perfect pentru familii cu copii sau pentru cei care își doresc confort și natură în imediata apropiere a casei.

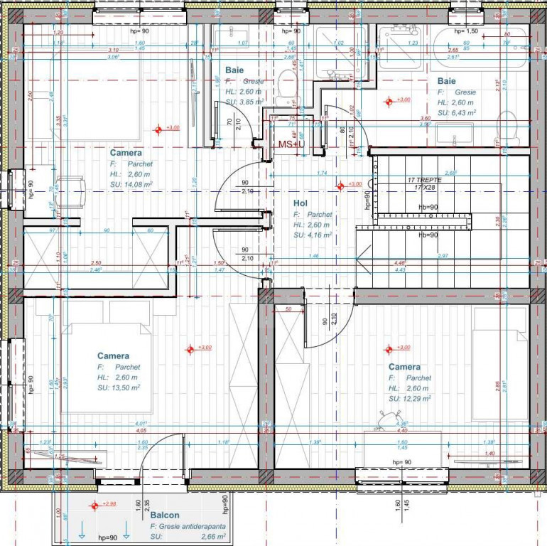
Casa are o suprafață utilă de 105 mp și este construită pe un teren de 286 mp, fiind compartimentată eficient pe două niveluri. Parterul oferă un living generos, bucătărie separată, baie, spațiu de depozitare și două terase (față și spate), ideale pentru relaxare sau socializare. Etajul cuprinde trei dormitoare, dintre care dormitorul matrimonial beneficiază de baie proprie și dressing, plus un al doilea grup sanitar și un balcon.

Construcția este solidă, realizată din cărămidă, cu acoperiș din țiglă și izolație exterioară. Casa dispune de centrală termică proprie, geamuri termopan tripan, grădină amenajată și acces auto în curte.

Accesul facil la mijloacele de transport și facilitățile zonei contribuie la confortul vieții de zi cu zi, însă elementul definitoriu al acestui ansamblu rămâne parcul privat, un beneficiu rar întâlnit care adaugă un plus semnificativ de valoare proprietății.

Pentru detalii suplimentare sau programarea unei vizionări, vă așteptăm la sediul EDIL Florești, Str. Eroilor, nr. 25, ap. 15 (etaj 1).

Solicită vizionarea proprietății

Alege o zi disponibilă

02 Aprilie
03 Aprilie
04 Aprilie
05 Aprilie

Alege un interval orar

8:00 - 12:00
12:00 - 15:00
15:00 - 18:00
18:00 - 21:00

Următoarele date de contact oferite de tine vor fi accesibile proprietarului:

Locație

Contactează utilizatorul

ID: 3982352

Duplex nou, semifinisat, în ansamblu rezidențial cu parc privat

4 camere | 105 m² | Cluj / Floresti

225.000 €