Vladislav Chirev

Consultant imobiliar

Vânzare

4 camere | 301 m²

Penthouse pe două niveluri 372 mp - ONE Herastrau Towers

Bucuresti-Ilfov / Bucuresti
1.999.990 €

Rată estimată

43.819 Lei/lună

Avans (15%)

1.490.993 lei

Perioada împrumutului

30 ani

Specificații

Număr camere 4

Suprafața utilă 301 m²

Compartimentare Decomandat

Confort 1

An finalizare construcție 2021

Tip imobil Bloc apartamente

Niveluri imobil 12

Număr Băi 3

Numărul de locuri de parcare 3

Nu include TVA Da

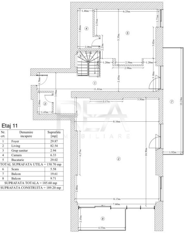
Etaj 11

Stare proprietate Bună

Mobilat și Utilat Nemobilat

Tip tranzacție Vânzare

Tip vânzător Companie

R.E.A. Imobiliare 
Duplex 4 camere, decomandat, orientat SUD – EST, la etajele 10 si 11 din 12, în ONE Herăstrău Towers - proiect 2021, amplasat pe Strada Nicolae G. Caranfil, la doar câțiva pași de Parcul Herastrau, Sky Tower si Promenada Mall, cu acces rapid la Aeroportul Internațional Henri Coandă, restaurante, cluburi exclusive, școli internaționale si gradinite.
Prețul afișat este + TVA, cu opțiunea de taxare inversă la achiziție.

- Suprafata totala de 372,84 mp: 301,21 mp utili+ 19,61 mp balcon+ 9,71 mp balcon+ 20,15 mp balcon+ 15,05 mp terasa+ 7,11 mp scara.
- Configuratie:
Nivel superior: foyer, living, grup sanitar, camara, bucatarie, scara si 2 balcoane;
Nivel inferior: intrare secundara, hol, spalatorie, 2 bai, 3 dormitoare, walk-in closet, depozitare, scara, balcon si terasa. 
- Incălzire în pardoseală asigurată de centrala de imobil și climatizare prin ventiloconvectoare.
- 3 locuri de parcare subterană disponibile spre achizitie.
- Servicii de concierge și pază 24/7.

Acces rapid la transport public: 2 minute pana la statiile STB, 13 minute pana la metrou Aurel Vlaicu.
Contactează-ne pentru detalii suplimentare și programarea unei vizionări private. Cod proprietate P8798

Id intern: P8798

Solicită vizionarea proprietății

Alege o zi disponibilă

07 Decembrie
08 Decembrie
09 Decembrie
10 Decembrie

Alege un interval orar

8:00 - 12:00
12:00 - 15:00
15:00 - 18:00
18:00 - 21:00

Următoarele date de contact oferite de tine vor fi accesibile proprietarului:

Locație

Despre zona "Herastrau"

păreri exprimate de 5 de utilizatori, pe o scară de la 1 la 10

Află clasamentul acestui cartier
Sănătate și Siguranță

Sănătate și Siguranță

7.6

Sănătate 8.0

Siguranță 7.5

Calitate aer 7.0

Curățenie 6.5

Zone verzi 9.0

Cultură și Educație

Cultură și Educație

7.4

Cultură 7.5

Educație 7.5

Sport 7.3

Ambianță și Lifestyle

Ambianță și Lifestyle

6.8

Nivel de trai 6.5

Magazine 6.3

Localuri 7.5

Parcări 6.0

Zgomot 7.5

Transport în comun

Transport în comun

6.2

Autobuz 6.5

Tramvai 5.5

Metrou 6.5

Contactează utilizatorul

ID: 4069312

Penthouse pe două niveluri 372 mp - ONE Herastrau Towers

4 camere | 301 m² | Bucuresti-Ilfov / Bucuresti

1.999.990 €